NEU im Quartier Beelitz-Heilstätten: Parkvilla "Amalia" im Stil des Art déco in exponierter Lage am ehemaligen Männersanatorium: Geräumige Gartenwohnung mit 4 Zimmer, Terrasse und zwei Bädern!
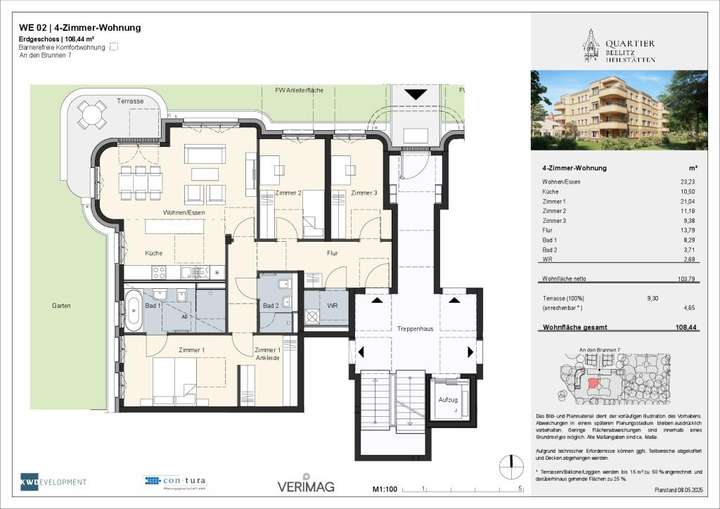
Das helle, sehr großzügige Wohn-/Esszimmer mit integriertem Küchenbereich stellt das Herzstück dieser Gartenwohnung dar. Von der angrenzenden Terrasse hat man direkten Zugang in den eigenen Garten. Die 4-Zimmer-Wohnung überzeugt mit zwei schönen Kinderzimmern bzw. Büros, separatem Duschbad und einem Hauswirtschaftsraum mit Waschmaschinenanschluss. Das großzügige Elternschlafzimmer begeistert durch einen Ankleidebereich und ein tagesbelichtetes Bad en Suite, ausgestattet mit Badewanne und großer, bodengleicher Dusche.
Auf dem weitläufigen Terrain der historischen Heilstätten entsteht der ideale Ort, um sich neu zu verwurzeln: Das QUARTIER BEELITZ-HEILSTÄTTEN. Das Ensemble fügt sich auf rund 64 Hektar behutsam in die bestehende Waldlandschaft ein und umfasst insgesamt etwa 800 Häuser und rund 500 Wohnungen. Es entstehen verschiedene Einfamilienhaustypologien auf großen real geteilten Grundstücken sowie komfortable Eigentumswohnungen mit 2, 3 oder 4 Zimmern. Die gelungene Architektur spiegelt den besonderen Charme des Ortes in ihrer facettenreichen Gestaltung wider und setzt dabei eigene, moderne Akzente.
Projektdetails im Überblick:
- Hervorragende Infrastruktur durch Bahnhof und Busanbindung auf dem Gelände
- Schule und Kindergarten
- Einrichtungen des täglichen Bedarfs (Café, Bäckerei, Supermarkt, Friseur und Ärztehaus)
- Einrichtungen für betreutes Wohnen und Tagespflege
- Ladesäulen für E-Fahrzeuge
- Glasfaseranschluss
- Idyllischer Waldsee und weitläufige Parkanlagen auf dem Gelände
Finanzierungszertifikat
In nur zwei Minuten zu Ihrem persönlichen Finanzierungszertifkat.
Infos
| Wohnungskategorie | Erdgeschosswohnung |
|---|---|
| Etagenzahl | 3 |
| Wohnfläche ca. | 108 m2 |
| Bezugsfrei ab | Herbst 2026 |
| Zimmer | 4 |
| Schlafzimmer | 3 |
| Badezimmer | 2 |
Kosten
| Kaufpreis |
517.000 € |
|---|---|
| Provision | Nein |
Finanzierungsrechner:
Kaufpreis:
600.000 €
Eigenkapital:
600.000 €
Monatliche Rate
0 €
Effektiver Jahreszins
0 %
Sollzinsbindung
10 Jahre
Bausubstanz & Energieausweis
| Baujahr | 2026 |
|---|---|
| Qualität der Austattung | Gehoben |
| Heizungsart | Blockheizkraftwerk |
Beschreibung des Objekts
Ausstattung
- 3 bis 4 Zimmer mit 73 bis 113 m²
- Echtholzparkett in Wohn- und Schlafräumen
- Energiesparende Fußbodenheizung
- Feinsteinzeug in den Bädern und Hauswirtschaftsräumen
- Sanitärobjekte und Armaturen von Markenherstellern
- Elektrische Rollläden an allen Fenstern
- 3-Fach-Verglasung der Fenster
- Jede Wohnung mit Balkon oder Terrasse
- Gartenwohnungen mit Privatgarten, barrierefrei
- Aufzug in alle Etagen
- Fahrradabstellplatz und Abstellraum für jede Wohnung im Untergeschoss
- Tiefgaragenstellplätze (teilweise mit E-Lademanagement)
Lage
Das QUARTIER BEELITZ-HEILSTÄTTEN ist der ideale Ort für alle, die Nähe zur Natur suchen und den Anschluss an die Großstadt nicht verlieren möchten. Der historische Bahnhof nahe des neuen Wohnquartiers macht es besonders für Pendler attraktiv, die beispielsweise in Potsdam oder Berlin arbeiten. Die Zugverbindungen führen schnell und bequem ohne Umsteigen in die beiden Hauptstädte. Zum Stadtzentrum von Beelitz gelangt man in drei Kilometern.
- Alles fürs tägliche Leben: gleich um die Ecke
- Beelitz Stadt: 8 min mit dem Auto oder Bus
- Potsdam: 20 min mit dem ÖPNV oder Auto
- Berlin Hauptbahnhof: 38 min mit dem ÖPNV
- Berlin Alexanderplatz: 45 min mit dem Auto
- Flughafen BER: 30 min mit dem Auto
Sonstige Angaben
Der Verkauf erfolgt ohne Käuferprovision!
Willkommen im Showroom:
Straße am Bahnhof 3
14547 Beelitz-Heilstätten
Öffnungszeiten:
Sonntags 13 - 15 Uhr
oder nach individueller Vereinbarung!
Angaben nach EnEV: Energieausweis befindet sich in der Erstellung.
Änderungen und Irrtümer vorbehalten. Das Bild- und Planmaterial dient zum Teil der vorläufigen Illustration des Vorhabens. Insbesondere die Visualisierungen o. ä. sind unverbindlich und zeigen teilweise Sonderausstattungen und Einrichtungen, die als Möblierungsvorschläge zu verstehen sind.
Weitere Dokumente
WE 02_GrundrissGrundriss
WE 02_Grundriss
>
>
WE 02_Grundriss
>
>
Adresse
An den Brunnen 7, 14547 Beelitz
Interessante Orte
Preis- und Lageinformationen
Preistrend für Bestandsimmobilien in Beelitz