Dieses große Ein- / Zweifamilienhaus - auf einem ca. 550 m² großen Grundstück - bietet auf einer Fläche von ca. 250 m² insgesamt 8 Zimmer, 2 Küchen, 2 Bäder und ein Gäste-WC., also viel Platz und vielseitige Nutzungsmöglichkeiten.: so zum Beispiel als Einfamilienhaus für eine große Familie oder als Mehrgenerationenhaus sowie auch als Zweifamilienhaus mit folgender Aufteilung:
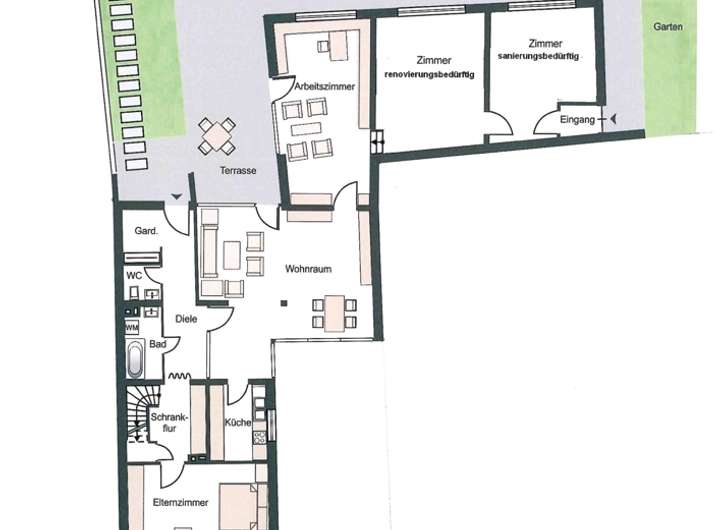
a) eine 77 m² große 3-Zimmer-Wohnung im Erdgeschoss mit Küche, Diele, Bad und Terrasse, Keller, Kfz-Stellplatz (WE 1)
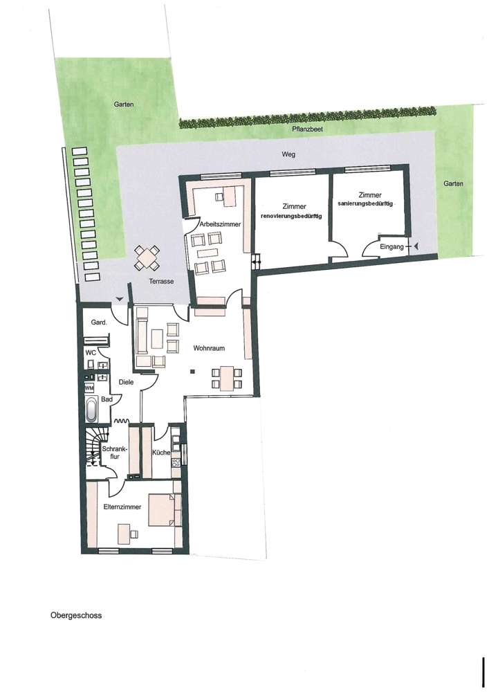
b) eine großzügige 5 -Zimmer-Wohnung in dem darüberliegenden Geschoss (OG) und Dachgeschoss (DG) mit großem Wohn-/Essbereich und Zugang zur Terrasse und ebenerdigem Garten, Arbeitszimmer, 2 Schlafzimmern, Ankleide, einem Bad mit Wanne, einem Gäste-WC sowie einem ausbaufähigen Bad im Dachgeschoss; in dieser Wohneinheit befinden sich zusätzlich noch 2 zum Ausbau vorgesehene Zimmer, so dass dann eine Wohneinheit mit 7 Zimmern zur Verfügung steht (WE 2).
Zur Ihrer Orientierung liegen Pläne bei.
Großes Ein-/Zweifamilien-Haus
53424 Remagen
Die vollständige Adresse der Immobilie erhalten Sie vom Anbieter.
Auf Karte anzeigen
Die vollständige Adresse der Immobilie erhalten Sie vom Anbieter.
Finanzierungszertifikat
In nur zwei Minuten zu Ihrem persönlichen Finanzierungszertifkat.
Infos
| Haustyp | Einfamilienhaus |
|---|---|
| Wohnfläche ca. | 252 m2 |
| Grundstücksfläche | 550 m2 |
| Zimmer | 10 |
| Badezimmer | 2 |
Kosten
| Kaufpreis |
345.000 € |
|---|---|
| Provision |
3,57 % |
Finanzierungsrechner:
Kaufpreis:
600.000 €
Eigenkapital:
600.000 €
Monatliche Rate
0 €
Effektiver Jahreszins
0 %
Sollzinsbindung
10 Jahre
Bausubstanz & Energieausweis
| Baujahr | 1972 |
|---|---|
| Heizungsart | Zentralheizung |
| Wesentliche Energieträger | Gas |
| Energieausweis | liegt vor |
| Energieausweistyp | Bedarfsausweis |
| Energieverbrauchskennwert | 237,2 kWh/(m²*a) |
| Energieeffizienzklasse | G |
237,2
kWh/(m²*a)
Energieeffizienzklasse G
- A+
- A
- B
- C
- D
- E
- F
- G
- H
- 0
- 25
- 50
- 75
- 100
- 125
- 150
- 175
- 200
- 225
- >250
Beschreibung des Objekts
Ausstattung
Die Ausstattung des Hauses entspricht dem Zeitgeist der 70er/80er Jahre, sodass einige Renovierungen und Modernisierungen notwendig sind, um dem heutigen Wohnstandard gerecht zu werden.
Die Ausstattung im Einzelnen:
- Vaillant-Gaszentralheizung
- Zentrale Warmwasserversorgung über die Heizung
- Doppelverglaste Holzfenster, teilweise mit Rollläden
- Bodenbeläge: überwiegend Holz-Parkett, in den Schlafzimmern Teppichboden bzw. PVC, in den Bädern/WC Fliesen, in den Küchen PVC-Belag
- Historische Holztreppe mit gedrechselten Geländestäben vom Obergeschoss ins Dachgeschoss
- Zwei innenliegende Bäder + Gäste-WC
- Ausbau der Ankleide im Dachgeschoss als Bad möglich
- 2 Zimmer sind in der Wohnung 2 als Wohnräume vorbereitet
Lage
Das Haus liegt in einer zentralen Lage von Remagen; fußläufig ist man in wenigen Minuten in der Innenstadt und am Bahnhof; sehr gut sind die Zugverbindungen - teilweise mit dem IC - nach Bonn (ca. 20 Minuten), nach Köln (ca. 45 Minuten), nach Koblenz (ca. 25 Minuten und ins Ahrtal, Bad Neuenahr - Ahrweiler (ca. 12 Minuten). Die Bundesstraße B9 liegt in unmittelbarer Nähe mit Verbindung nach Bonn/Köln, Koblenz und ins Ahrtal; die Autobahn A61 ist in ca. 15 Minuten zu erreichen.
Die Stadt Remagen bietet: alle Einkaufsmöglichkeiten des täglichen Bedarfs, Supermärkte, Baumarkt, Krankenhaus, Ärzte aller Fachrichtungen, Apotheken, Kita (kostenlos), Grund- und Gesamtschule, Fachhochschule "Rhein-Ahr-Campus" sowie viele Freizeiteinrichtungen wie z. B. ein großes Freibad, Tennishalle und -plätze, Reiterhöfe, Fußball- und Sportplätze und zahlreiche Sportvereine mit ihren Einrichtungen. Der Golfplatz Bad Neuenahr ist mit dem Auto in ca. 10 Minuten erreichbar.
Remagen besticht durch die wunderschöne Rheinpromenade mit diversen Restaurants, Café und Eiscafé.
Die Stadt bietet auch eine Fülle an kulturellen und historischen Sehenswürdigkeiten, darunter die berühmte Brücke von Remagen und die Apollinariskirche.
Sonstige Angaben
Der Preis von 345.000,00 € ist als Verhandlungsbasis zu verstehen.
Grundriss
Grundriss EG (WE 1)
>
>
Grundriss OG (WE 2)
>
>
Grundriss DG (WE 2)
>
>
Adresse
53424 Remagen
Interessante Orte
Preis- und Lageinformationen
Preistrend für Bestandsimmobilien in Remagen