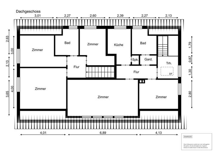
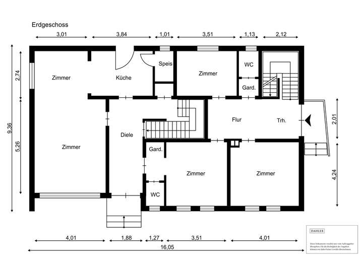
Das klassische Einfamilienhaus mit Satteldach und zwei Dachgauben wurde 1969 in massiver Bauweise errichtet und im Laufe der Jahre modernisiert. Es bietet mit ca. 196 m² Wohnfläche ein großes Raumangebot und steht auf dem ca. 653 m² großen Grundstück. Insgesamt verfügt das Haus über 9 Zimmer, die sich auf bis zu drei Wohneinheiten verteilen lassen. Momentan ist die größere Wohnung 1 frei lieferbar und das Mietverhältnis der kleineren Wohnung bereits bestätigt gekündigt.
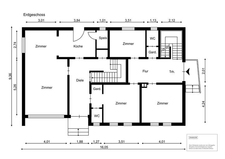
Die Wohnung 1 hat Ihren Zugang auf der Südseite des Gebäudes und erstreckt sich über zwei Etagen mit einer Wohnfläche von ca. 110 m². Im Erdgeschoss befinden sich der große Wohn- und Essbereich, die offene Küche, ein weiteres Zimmer und das Gäste-WC. Im Obergeschoss sind drei Schlafräume und das Badezimmer untergebracht. Insgesamt verfügt die Wohnung also über fünf Zimmer. Zu der Wohnung gehört die Fertiggarage. Die Wohneinheit ist mit einer offenen Einbauküche ausgestattet und verfügt über einen Gartenanteil.
Die Wohnung 2 erstreckt sich ebenfalls über zwei Etagen und hat insgesamt vier Zimmer, die Küche, das Badezimmer und das Gäste-WC. Der Zugang zur Wohnung erfolgt über die Ostseite des Hauses. Die momentan zu zahlende monatliche Nettokaltmiete beträgt EUR 474,-.
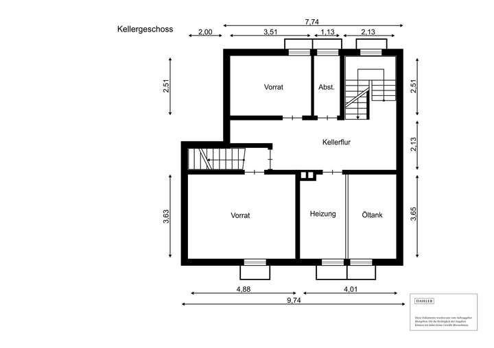
Das Haus ist zu zwei Dritteln unterkellert, so dass jeder Wohnung ein Kellerraum zugeordnet werden kann.
Solides Rotklinkerhaus mit einer frei lieferbaren und einer bereits gekündigten Mietwohnung
21522 Hohnstorf (Elbe)
Die vollständige Adresse der Immobilie erhalten Sie vom Anbieter.
Auf Karte anzeigen
Die vollständige Adresse der Immobilie erhalten Sie vom Anbieter.
Finanzierungszertifikat
In nur zwei Minuten zu Ihrem persönlichen Finanzierungszertifkat.
Infos
| Haustyp | Einfamilienhaus |
|---|---|
| Etagenzahl | 3 |
| Wohnfläche ca. | 196 m2 |
| Grundstücksfläche | 653 m2 |
| Zimmer | 9 |
| Schlafzimmer | 7 |
| Badezimmer | 2 |
| Garage/Stellplatz | Garage |
| Anzahl Garage/Stellplatz | 1 |
Kosten
| Kaufpreis |
282.000 € |
|---|---|
| Provision |
3,57 % inkl. MwSt. bezogen auf den beurkundeten Kaufpreis |
Finanzierungsrechner:
Kaufpreis:
600.000 €
Eigenkapital:
600.000 €
Monatliche Rate
0 €
Effektiver Jahreszins
0 %
Sollzinsbindung
10 Jahre
Bausubstanz & Energieausweis
| Baujahr | 1969 |
|---|---|
| Heizungsart | Zentralheizung |
| Wesentliche Energieträger | Gas |
| Energieausweis | liegt vor |
| Energieausweistyp | Bedarfsausweis |
| Energieverbrauchskennwert | 252,9 kWh/(m²*a) |
| Energieeffizienzklasse | H |
252,9
kWh/(m²*a)
Energieeffizienzklasse H
- A+
- A
- B
- C
- D
- E
- F
- G
- H
- 0
- 25
- 50
- 75
- 100
- 125
- 150
- 175
- 200
- 225
- >250
Beschreibung des Objekts
Ausstattung
_bis zu drei Wohneinheiten sind möglich
_die Fenster sind teilweise erneuert worden
_Viessmann Wärmeerzeuger aus 2005
_zwei Einbauküchen
_Teilkeller
_Fertiggarage
Lage
_Hohnstorf liegt an der Elbe gegenüber der alten Elbschifferstadt Lauenburg und ist ein Ort mit ca. 2.400 Einwohnern
_der Ort gehört zur Samtgemeinde Scharnebeck im Landkreis Lüneburg und liegt am Eingang des Biosphärenreservates Elbtalaue
_die Nahversorgung in Hohnstorf ist gut: es existiert ein EDEKA Supermarkt, eine Apotheke, eine Tankstelle, ein Allgemeinarzt und ein Zahnarzt
_in Hohnstorf gibt es eine Kindertagesstätte und eine Grundschule
_Hohnstorf verfügt über ein aktives Vereinsleben (DRK, Turn- und Sportverein mit Tennisabteilung, Freiwilliger Feuerwehr, Kirchengemeinde, Landfrauen, Musikkreis)
_die "Alte Sägerei" bietet zahlreiche kulturelle Veranstaltungen
_mehrere gastronomische und Übernachtungsbetriebe sind vorhanden
_Tennishalle mit drei Feldern und Gastronomie
_der Bahnhof von Lauenburg ist mit dem Pkw in ca. 5 Minuten zu erreichen, in die Hansestadt Lüneburg benötigen Sie ca. 20 Minuten und nach Hamburg ca. 60 Minuten
_in der Metropolregion Hamburg
Grundriss
Grundriss Erdgeschoss
>
>
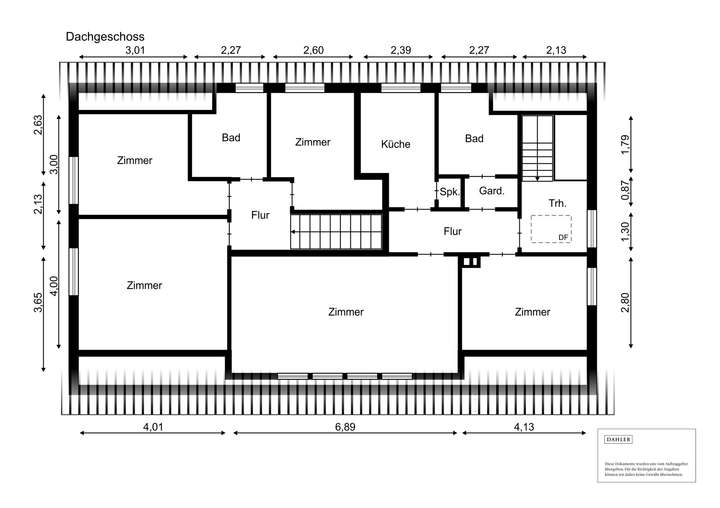
Grundriss Obergeschoss
>
>
Grundriss Kellergeschoss
>
>
Adresse
21522 Hohnstorf (Elbe)
Interessante Orte
Preis- und Lageinformationen
Preistrend für Bestandsimmobilien in Hohnstorf (Elbe)