Willkommen zu einem zukunftssicheren Neubauprojekt im idyllischen Malsch, Landkreis Karlsruhe. Dieses Bauvorhaben bietet eine einzigartige Gelegenheit für Kapitalanleger und Privatpersonen, die den Traum vom modernen und naturverbundenen Wohnen in einer begehrten Wohnlage verwirklichen möchten. Das Baugrundstück umfasst ca. 862 m² und liegt in einer familienfreundlichen, ruhigen Umgebung, die den Charme des Landlebens mit der Nähe zur Stadt Karlsruhe vereint.
Geplant ist die Errichtung eines modernen Mehrfamilienhauses mit insgesamt 8 Wohneinheiten, verteilt auf zwei verbundene Gebäude. Die Baugenehmigung für den reinen Wohnhausbau liegt bereits vor und bietet Ihnen Flexibilität und Planungssicherheit. Das innovative Wohnkonzept umfasst durchdachte Grundrisse für unterschiedlich große Wohneinheiten, die sich ideal für Familien, Paare und Einzelpersonen eignen.
+ Gebäudeklasse: 3
+ Nutzbare Grundstücksfläche: ca. 862 m²
+ Gesamte Wohnfläche: 673,63 m²
+ Gesamtanzahl der Einheiten: 8
+ Zimmeranzahl insgesamt: 18 (davon 11 Schlafzimmer)
+ Badezimmer insgesamt: 8
Wohnungseinheiten und Ausstattung:
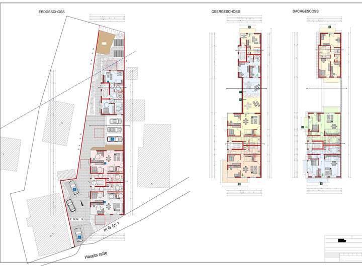
Die Raumaufteilung erstreckt sich über Keller, Erdgeschoss, Obergeschoss und Dachgeschoss und bietet großzügige Wohnflächen mit hoher Wohnqualität. Die Wohnungen sind hell und freundlich gestaltet und profitieren von Balkonen und Terrassen für entspannte Stunden im Freien.
Details zu den Wohneinheiten:
WE 1: 3 Zimmer, Erdgeschoss, 90,81 m², Terrasse
WE 2: 3 Zimmer, Erdgeschoss, 86,04 m², Terrasse
WE 3: 2 Zimmer, Erdgeschoss, 52,89 m², Terrasse
WE 4: 3 Zimmer, 1. Obergeschoss, 93,17 m², Balkon
WE 5: 3 Zimmer, 1. Obergeschoss, 84,84 m², Dachterrasse
WE 6: 2 Zimmer, 1. Obergeschoss, 69,25 m², Balkon und Dachterrasse
WE 7: 2 Zimmer, Dachgeschoss, 40,16 m², Balkon
WE 8: 5 Zimmer, Dachgeschoss, 156,47 m², 2 Balkone
Diese vielseitigen Wohnungen bieten Platz für jeden Lebensentwurf und sind bestens für ein komfortables Leben im Grünen ausgelegt. Ergänzend stehen den Bewohnern Gemeinschaftsflächen und ein 34 m² großer Spielplatz zur Verfügung – ideal für Familien mit Kindern.
Bauweise und Energieeffizienz:
Das Gebäude wird in Massivbauweise mit Kalksandsteinwänden und Betondecken errichtet. Die solide Bauweise entspricht den aktuellen Bau- und Brandschutzanforderungen und verspricht eine langlebige Wohnqualität. Die Gas-Brennwertheizung sorgt für eine effiziente und kostengünstige Wärmeversorgung, während eine optionale Luftwärmepumpe für noch mehr Nachhaltigkeit und ein gesundes Raumklima sorgt.
Stellplätze und Parkmöglichkeiten:
Für die zukünftigen Bewohner sind insgesamt 6 Stellplätze, bestehend aus Garagen- und Außenstellplätzen, geplant. Damit ist die Parkplatzsituation innerhalb der Wohnanlage optimal gelöst.
Lage und Infrastruktur:
Die naturnahe und ruhige Wohnlage in Malsch kombiniert das Beste aus ländlichem Wohngefühl und Stadtnähe. Die Karlsruher Innenstadt ist in etwa 15 Minuten erreichbar und bietet umfassende Einkaufs-, Freizeit- und Bildungseinrichtungen. Die direkte Umgebung überzeugt mit einer gesicherten Nahversorgung und einem wachsenden Wohnumfeld, das hohen Wohnkomfort garantiert.
Investment und Verwirklichung:
Jetzt zugreifen und die Chance auf eine attraktive Wohnimmobilie nutzen! Verwirklichen Sie Ihre Wohnträume in einer der begehrtesten Lagen in der Region und sichern Sie sich dieses einmalige Neubauprojekt mit Baugenehmigung.
Dieses Grundstück mit einem Abrissobjekt wird zum Kaufpreis von 500.000 EUR angeboten. Nutzen Sie die Gelegenheit, ein modernes und nachhaltiges Wohnprojekt in einem wachstumsstarken Umfeld zu realisieren.
Objekt-ID: 1750
Exklusiver Projektverkauf | Baugrundstück für Neubau MFH mit 8 Wohneinheiten inkl. Baugenehmigung
76316 Malsch
Die vollständige Adresse der Immobilie erhalten Sie vom Anbieter.
Auf Karte anzeigen
Die vollständige Adresse der Immobilie erhalten Sie vom Anbieter.
Finanzierungszertifikat
In nur zwei Minuten zu Ihrem persönlichen Finanzierungszertifkat.
Infos
| Vermarktungsart | Kaufen |
|---|---|
| Grundstücksfläche | 862 m2 |
| Erschließung | Teilerschlossen |
| Empfohlene Nutzung | Mehrfamilienhaus |
| Bebaubar nach | wie Nachbarbebauung |
| Verfügbar ab | sofort |
Kosten
| Miete pro Jahr |
500.000 € |
|---|---|
| Provision |
4,76 % Die Maklercourtage beträgt 4,76 % vom Kaufpreis inkl. gesetzlicher MwSt. |
Finanzierungsrechner:
Kaufpreis:
600.000 €
Eigenkapital:
600.000 €
Monatliche Rate
0 €
Effektiver Jahreszins
0 %
Sollzinsbindung
10 Jahre
Beschreibung des Objekts
Lage
Dieses Grundstück in Malsch, im Landkreis Karlsruhe, bietet eine hervorragende Ausgangsbasis für Wohnbauprojekte. Die Lage ist für Bauträger und institutionelle Investoren besonders attraktiv, da sie sowohl eine hohe Nachfrage für Miet- und Eigentumswohnungen als auch eine stabile Wertentwicklung im Großraum Karlsruhe unterstützt.
Makrolage:
Malsch profitiert von seiner strategisch günstigen Lage in der Metropolregion Rhein-Neckar, zwischen Karlsruhe und Rastatt, was diesen Standort für Pendler und Arbeitgeber attraktiv macht. Die Autobahnen A5 und A8 sowie die Bundesstraße B3 gewährleisten eine sehr gute Anbindung an die Wirtschaftsstandorte Karlsruhe, Mannheim, und Stuttgart sowie an das europäische Autobahnnetz. Die Nähe zu Flughäfen wie Karlsruhe/Baden-Baden und Stuttgart sorgt für eine schnelle Erreichbarkeit internationaler Ziele.
Mit einer stabilen Wirtschaftsstruktur und einer dynamisch wachsenden Bevölkerung ist die Region zunehmend gefragt, vor allem für Neubauprojekte im Wohn- und Mischsektor. Malsch profitiert von der Nähe zur Innovationsstadt Karlsruhe, die durch ihre Universitäten, das KIT und zahlreiche Forschungszentren eine hohe Nachfrage nach Wohnraum erzeugt. Die wirtschaftsstarke Umgebung, insbesondere in den Bereichen Maschinenbau, IT und Medizintechnik, macht die Region für Fachkräfte attraktiv, was zu einem stabilen Bedarf an qualitativem Wohnraum führt. Investoren können auf eine fortwährende Nachfrage nach modernen und energieeffizienten Wohneinheiten zählen.
Mikrolage:
Das Grundstück selbst befindet sich in einer ruhigen und etablierten Wohngegend, die geprägt ist von Ein- und Mehrfamilienhäusern sowie gepflegten Grünflächen. Diese Lage bietet Potenzial für hochwertige Wohnbauprojekte, die auf eine breite Zielgruppe ausgerichtet sind, darunter Berufspendler, junge Familien und Senioren, die in ruhiger, aber gut angebundener Umgebung leben möchten.
Direkt vor Ort befinden sich diverse infrastrukturelle Einrichtungen, die eine hohe Lebensqualität gewährleisten. Schulen, Kindergärten, Arztpraxen und Apotheken sind in wenigen Minuten erreichbar und schaffen attraktive Wohnbedingungen, die auch bei zukünftigen Mietern und Käufern gut ankommen werden. Ein umfassendes Einzelhandelsangebot und der Wochenmarkt bieten zudem alle nötigen Einkaufsmöglichkeiten, was den Standort für Bewohner aller Altersgruppen bequem und attraktiv macht.
Freizeit- und Erholungsgebiete wie der Naturpark Schwarzwald-Mitte/Nord sowie die umliegenden Wälder und Wiesen bieten vielfältige Möglichkeiten für Outdoor-Aktivitäten, die zunehmend nachgefragt werden. Diese Naherholungsgebiete steigern die Standortattraktivität weiter und sprechen insbesondere Käufer und Mieter an, die Wert auf eine grüne und gesunde Wohnumgebung legen.
Investmentperspektive:
Durch die günstige Marktlage und den konstanten Bedarf an hochwertigem Wohnraum sind die wirtschaftlichen Rahmenbedingungen für Bauträger und Investoren in Malsch attraktiv. Mit einem gut durchdachten Projekt lassen sich hier sowohl Miet- als auch Kaufinteressenten ansprechen, was die Rentabilität erhöht und langfristige Wertstabilität verspricht. Die kontinuierliche Entwicklung der Infrastruktur in der Region sowie die demografischen Trends hin zu stärkerer Urbanisierung und vermehrtem Bedarf an Wohnraum machen den Standort zu einer zukunftssicheren Investition.
Sonstige Angaben
Basierend auf der aktuellen Marktlage und typischen Baukosten in Deutschland lässt sich für dieses Projekt in Malsch eine Kostenschätzung für den Abriss des bestehenden Gebäudes und die anschließende Errichtung eines neuen Mehrfamilienhauses mit 8 Wohneinheiten wie folgt formulieren:
1. Abriss und Entsorgung:
Der Abriss der vorhandenen Bausubstanz ist der erste Schritt im Projekt. Typische Kosten für den Abriss inklusive Entsorgung belaufen sich auf etwa 50–80 EUR pro m² BGF (Bruttogrundfläche) des abzureißenden Gebäudes, abhängig von der Gebäudestruktur und der Materialart. Einschließlich aller notwendigen Vorbereitungen und Sicherungen sind in dieser Position auch Entsorgungskosten für Bauschutt und gegebenenfalls Schadstoffbehandlungen kalkuliert.
Geschätzte Kosten: ca. 30.000–50.000 EUR
2. Erdarbeiten und Bodenaufbereitung:
Erdarbeiten umfassen das Entfernen von überschüssigem Bodenmaterial, die Bodenverdichtung und die Vorbereitung des Fundaments. Die Kosten können aufgrund der Bodenbeschaffenheit variieren. Unter Annahme üblicher Bedingungen in der Region betragen die Erdarbeiten rund 30–60 EUR pro m² Grundstücksfläche.
Geschätzte Kosten: ca. 40.000–60.000 EUR
3. Rohbau:
Der Rohbau bildet den größten Anteil an den Baukosten und beinhaltet die Erstellung der Fundamente, Bodenplatte, Außen- und Innenwände sowie die Geschossdecken. Basierend auf einer Bauweise in Massivbau mit Beton- und Kalksandsteinwänden liegen die Kosten im Durchschnitt zwischen 800 und 1.000 EUR pro m² BGF.
Geschätzte Kosten für den Rohbau: ca. 700.000–900.000 EUR
4. Dachkonstruktion und -eindeckung:
Für die Konstruktion und Eindeckung des Daches, einschließlich der Wärmedämmung und Abdichtung, kalkuliert man durchschnittlich mit ca. 100–150 EUR pro m² Dachfläche.
Geschätzte Kosten: ca. 50.000–80.000 EUR
5. Fenster, Türen und Fassade:
Diese Position umfasst die Installation von Fenstern, Türen und die Außenfassadengestaltung inklusive Wärmedämmverbundsystem (WDVS). Die Kosten belaufen sich üblicherweise auf 200–300 EUR pro m² Fassade, abhängig von der gewählten Fassade und Dämmstärke.
Geschätzte Kosten: ca. 80.000–120.000 EUR
6. Haustechnik (Heizung, Sanitär, Elektro):
Die Installationen für Heizung, Sanitär und Elektro fallen typischerweise mit 300–400 EUR pro m² Wohnfläche an. Hierzu gehört auch die Installation einer energieeffizienten Gas-Brennwertheizung und weiterer technischer Systeme.
Geschätzte Kosten: ca. 100.000–150.000 EUR
7. Innenausbau:
Zum Innenausbau zählen der Trockenbau, Estrich, Bodenbeläge, Wand- und Deckenverkleidungen sowie Fliesen und Sanitärausstattung in den Bädern. Je nach Qualitätsstandard können die Kosten zwischen 400 und 600 EUR pro m² Wohnfläche variieren.
Geschätzte Kosten: ca. 140.000–260.000 EUR
8. Außenanlagen und Erschließung:
Die Erschließungskosten für das Grundstück sowie die Gestaltung der Außenanlagen wie Parkflächen, Wege, Grünflächen und den Spielplatz betragen meist etwa 5–10 % der Gesamtbaukosten. Unter Berücksichtigung der notwendigen Anschlüsse für Wasser, Abwasser, Strom und Internet ergeben sich folgende geschätzte Gesamtkosten:
Geschätzte Kosten: ca. 60.000–100.000 EUR
9. Nebenkosten:
Zu den Baunebenkosten zählen Architektur- und Ingenieurhonorare, Genehmigungsgebühren, Prüfkosten sowie Kosten für die Bauüberwachung. Diese betragen in der Regel 15–20 % der Baukosten.
Geschätzte Kosten: ca. 100.000–150.000 EUR
Gesamtkostenübersicht:
Auf Basis der oben genannten Posten ergibt sich eine Gesamtbaukostenschätzung zwischen 1.300.000 und 1.870.000 EUR. Diese Schätzung berücksichtigt alle wesentlichen Kostenpositionen für den Abriss und Neubau, einschließlich Erschließung, Innenausbau und Außenanlagen.
Hinweis: Die tatsächlichen Kosten können je nach Bauweise, Ausstattungsstandard und Marktentwicklung variieren. Eine detaillierte Kostenaufstellung und Planung s