Dieses Einfamilienhaus erstreckt sich über drei Etagen und verfügt über eine Wohnfläche von 105 m² auf einem Grundstück von insgesamt 318 m². Das Gebäude wurde im Jahr 2024 zuletzt modernisiert und befindet sich in einem erstklassigen Zustand nach der Sanierung. Die Immobilie bietet Platz für zwei Parkplätze und verfügt über einen schönen Garten mit einer Fläche von 100 m². Eine Zentralheizung sorgt für wohlige Wärme in allen Räumen. Ein Keller mit einer Fläche von 28 m² ist ebenfalls vorhanden. Die Küche wurde vor 2 Jahren eingebaut und ist im Mietpreis enthalten.
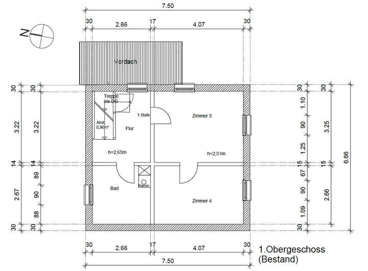
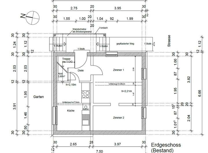
Das Einfamilienhaus verfügt über insgesamt fünf Zimmer, darunter Schlafzimmer und ein Badezimmer. Die Räumlichkeiten sind hell und großzügig gestaltet, und bieten genügend Platz für eine Familie. Dank der Modernisierung im Jahr 2024 sind alle Räume in einem zeitgemäßen und ansprechenden Design gehalten. Die Zimmer sind optimal geschnitten und bieten viel Potenzial für individuelle Gestaltungsmöglichkeiten.
Dank der zentralen Lage und der guten Anbindung an öffentliche Verkehrsmittel und Einkaufsmöglichkeiten, ist das Einfamilienhaus ideal für Familien geeignet. Eine Besichtigung lohnt sich, um den Charme und die Qualität dieses Hauses selbst zu erleben.
In der monatlichen Betriebskostenvorauszahlung sind die Kosten für die Grundsteuer, Wohngebäude- und Haftpflichtversicherung enthalten. Die weiteren anfallenden Kosten können von der Mietpartei in eigener Verantwortung übernommen werden und nach den eigenen Bedürfnissen angepasst werden. Dies bezieht besonders auf die freie Auswahl des Energielieferanten, Müllentsorgung, Wasser- und Abwasserversorgung, Wartungsarbeiten sowie Garten- und Reinigungsarbeiten und der Winterdienst.
Modernes Einfamilienhaus in ruhiger Lage
63579 Freigericht
Die vollständige Adresse der Immobilie erhalten Sie vom Anbieter.
Auf Karte anzeigen
Die vollständige Adresse der Immobilie erhalten Sie vom Anbieter.
Infos
| Haustyp | Einfamilienhaus |
|---|---|
| Etagenzahl | 3 |
| Wohnfläche ca. | 105 m2 |
| Nutzfläche | 28 m2 |
| Grundstücksfläche | 318 m2 |
| Bezugsfrei ab | 01.08.2025 |
| Zimmer | 5 |
| Schlafzimmer | 3 |
| Badezimmer | 1 |
| Haustiere | Ja |
| Garage/Stellplatz | Außenstellplatz |
| Anzahl Garage/Stellplatz | 2 |
Kosten
| Kaltmiete |
1.250 € |
|---|---|
| Nebenkosten | + 150 € |
| Heizkosten | keine Angabe |
| Gesamtmiete | 1.400 € |
| Kaution o. Genossenschaftsanteile | 3750,- |
Weiter mieten oder doch kaufen?
Wer in Miete wohnt, überweist dem Vermieter im Laufe der Jahre hohe Summen, die sich
auch in die eigenen vier Wände investieren lassen könnten.
Bausubstanz & Energieausweis
| Letzte Sanierung | 2024 |
|---|---|
| Objektzustand | Erstbezug nach Sanierung |
| Qualität der Austattung | Gehoben |
| Heizungsart | Gas-Heizung |
| Wesentliche Energieträger | Gas |
| Energieausweis | liegt vor |
| Energieausweistyp | Verbrauchsausweis |
|
Energieverbrauchskennwert
Energieverbrauch für Warmwasser enthalten |
168,0 kWh/(m²*a) |
Beschreibung des Objekts
Lage
Freigericht ist eine malerische Gemeinde im Bundesland Hessen, Deutschland, die sich im Main-Kinzig-Kreis befindet. Die Gemeinde liegt etwa 30 Kilometer östlich von Frankfurt am Main und ist gut an das Verkehrsnetz angebunden, was sie zu einem attraktiven Wohnort für Pendler macht.
Freigericht erstreckt sich über eine idyllische Landschaft, die von Wiesen, Wäldern und landwirtschaftlich genutzten Flächen geprägt ist. Die Umgebung bietet zahlreiche Möglichkeiten für Outdoor-Aktivitäten wie Wandern und Radfahren. Die Gemeinde selbst hat eine charmante, ländliche Atmosphäre und zeichnet sich durch eine freundliche Gemeinschaft aus.
In Freigericht finden sich verschiedene Einrichtungen des täglichen Bedarfs, darunter Einkaufsmöglichkeiten, Schulen und Freizeitangebote. Die gute Anbindung an die Autobahn A66 ermöglicht es den Bewohnern, schnell in die nahegelegenen Städte zu gelangen.
Insgesamt ist Freigericht ein ruhiger und lebenswerter Ort, der sowohl für Familien als auch für Einzelpersonen eine hohe Lebensqualität bietet.
Adresse
63579 Freigericht
Interessante Orte
Preis- und Lageinformationen
Preistrend für Bestandsimmobilien in Freigericht