Entdecken Sie ein erstklassiges, sehr werthaltiges Grundstück zur Verwirklichung Ihres individuellen Wohntraumes in der Alt-Stadt Unterschleißheims.
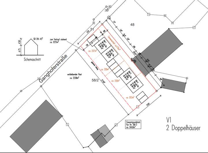
Mit einer großzügigen Fläche von ca. 1.239 m² bietet dieses Grundstück, welches auch in unterschiedlichen Parzellen (z.B. 2 x 600 m“ oder 3 x 400 m²) teilbar wäre , großzügig Platz für die Top-Realisierung Ihres Wohnparadieses in Form einer Villa, eines großen Doppelhauses, oder eines Einfamilienhauses.
Bei möglicher Realteilung könnten zwei unabhängige Bauräume entstehen.
Dieses Grundstück ist nach der Nachbarbebauung §34BauGB zu bebauen.
Bitte keine Bauträgeranfragen.
Stadtvillengrundstück in Unterschleißheim zu kaufen: Im Ganzen 1.239 m² oder einzelne Parzellen
85716 Unterschleißheim
Die vollständige Adresse der Immobilie erhalten Sie vom Anbieter.
Auf Karte anzeigen
Die vollständige Adresse der Immobilie erhalten Sie vom Anbieter.
Finanzierungszertifikat
In nur zwei Minuten zu Ihrem persönlichen Finanzierungszertifkat.
Infos
| Vermarktungsart | Kaufen |
|---|---|
| Grundstücksfläche | 1.239 m2 |
| Geschossflächenzahl (GFZ) | 0.45 |
| Bebaubar nach | wie Nachbarbebauung |
| Verfügbar ab | Sofort |
Kosten
| Miete pro Jahr |
2.849.700 € |
|---|---|
| Provision |
3,57 % inkl. ges. MwSt. |
Finanzierungsrechner:
Kaufpreis:
600.000 €
Eigenkapital:
600.000 €
Monatliche Rate
0 €
Effektiver Jahreszins
0 %
Sollzinsbindung
10 Jahre
Beschreibung des Objekts
Lage
Unterschleißheim, eine aufstrebende Stadt im Norden von München, bietet mit ihrer hervorragenden Infrastruktur und der Nähe zur bayerischen Landeshauptstadt einen attraktiven Standort für Wohnprojekte.
Die zum Verkauf stehende Wohnbaufläche befindet sich in einer ruhigen und dennoch zentralen Lage in der Alt-Stadt, die sowohl eine hohe Lebensqualität als auch eine perfekte Anbindung an die städtischen Annehmlichkeiten garantiert.
Unterschleißheim ist bekannt für seine grünen Erholungsgebiete, darunter zahlreiche Parks und Naturpfade, die zu Freizeitaktivitäten im Freien einladen.
Dank einer optimalen Verkehrsanbindung gelangt man nach München bequem über die Autobahn A92 oder mit den öffentlichen Verkehrsmitteln wie S-Bahn und Bus. Der nahegelegene Flughafen München ist ebenfalls in kurzer Zeit erreichbar, was die Lage ideal für Berufspendler macht.
Sonstige Angaben
Wir freuen uns auf Ihre Anfrage. Gerne lassen wir Ihnen weitere Informationen zu dieser Immobilie zukommen. Füllen Sie hierzu bitte das Kontaktformular vollständig aus. Herr Johann Goss, zertifizierter Sachverständiger und Makler für Luxusimmobilien, setzt sich gerne mit Ihnen in Verbindung.
Damit wir Ihnen sofort das Exposé zuschicken können, benötigen wir nach der Neuregelung im Verbraucherrecht Ihre Zustimmung.
Sie erhalten daher vorab eine E-Mail mit der Belehrung über Ihr Widerrufsrecht, Hinweise zum Datenschutz und Provisionshinweise.
Bitte bestätigen Sie über den enthaltenen LINK, dass Sie die Belehrung erhalten haben und wir sofort für Sie tätig werden dürfen. Sobald Ihre Bestätigung vorliegt, erhalten Sie automatisch detaillierte Informationen zur Immobilie.
Da die Maklerprovision selbstverständlich nur dann anfällt, wenn Sie die Immobilie auch tatsächlich kaufen, bleibt Ihre Anfrage insoweit unverbindlich und kostenfrei.
Sie möchten auch Ihre Immobilie verkaufen oder vermieten? Wir sind Ihr kompetenter Immobilienmakler im Raum Schwabmünchen, Augsburg, Landsberg und München.
Sie haben Fragen? Wir beraten Sie gerne!
Alle Angaben sind ohne Gewähr und basieren ausschließlich auf Angaben des Auftraggebers. Eine Haftung für Vollständigkeit, Richtigkeit und Aktualität kann nicht übernommen werden. Zwischenverkauf/-vermietung vorbehalten.
Grundriss
0855f680-a04c-4356-b4bf-78d09e
>
>
Unser Service für Sie!
>
>
Heute eine Immobilie kaufen!
>
>