Dieses charmante Mehrparteienhaus befindet sich auf einem nach Süden ausgerichteten Grundstück und wurde im Jahr 1966 erbaut. Vor dem Haus erstreckt sich ein kleiner Kiesgarten, während sich neben dem Haus eine geräumige Garage für zwei Fahrzeuge befindet.
Der weitläufige Garten hinter dem Haus, optimal nach Süd-Westen ausgerichtet, bietet zahlreiche Sonnenstunden und verfügt über ein Gewächshaus sowie einen Geräteschuppen.
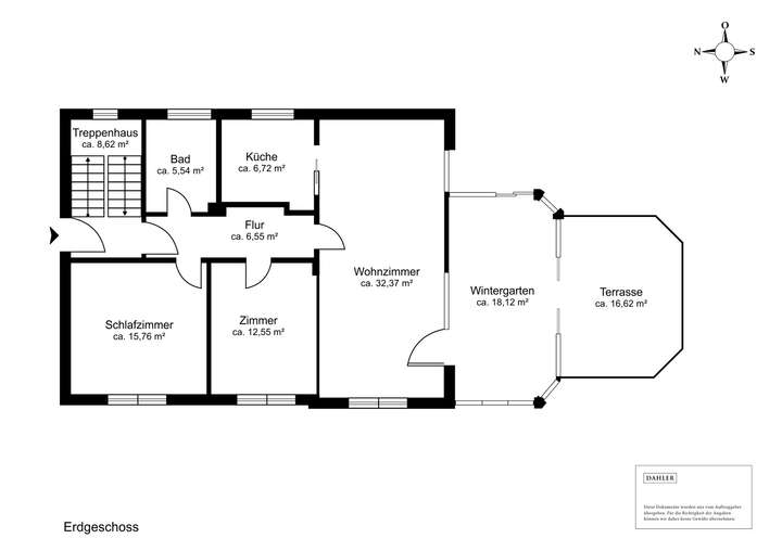
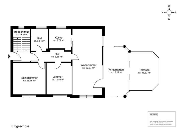
Das Gebäude umfasst zwei Vollgeschosse mit jeweils ca. 100 m² Wohnfläche, ein wohnlich ausgebautes Dachgeschoss und einen Vollkeller. Im Erdgeschoss befinden sich zwei Schlafzimmer, eine Küche sowie ein Wannenbad. Der großzügige Wohn- und Essbereich in Süd-West-Ausrichtung bildet das Herzstück dieser Ebene. Große Fenster sorgen für eine hervorragende Belichtung und bieten Zugang zu einem vollverglasten Wintergarten, der einen ungestörten Blick auf die angrenzende Terrasse und den Garten ermöglicht. Breite Schiebetüren schaffen einen nahtlosen Übergang zwischen Innen- und Außenbereich, während eine Markise und Außenjalousien Schutz vor der Sonne bieten.
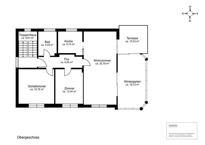
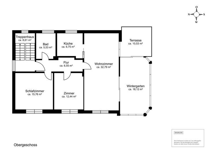
Das Obergeschoss verfügt über den gleichen Grundriss wie das Erdgeschoss und bietet ebenfalls einen sonnigen Wintergarten sowie einen Balkon. Der Wintergarten lässt sich vollständig zum Balkon öffnen, wodurch eine harmonische Verbindung zwischen beiden Bereichen entsteht.
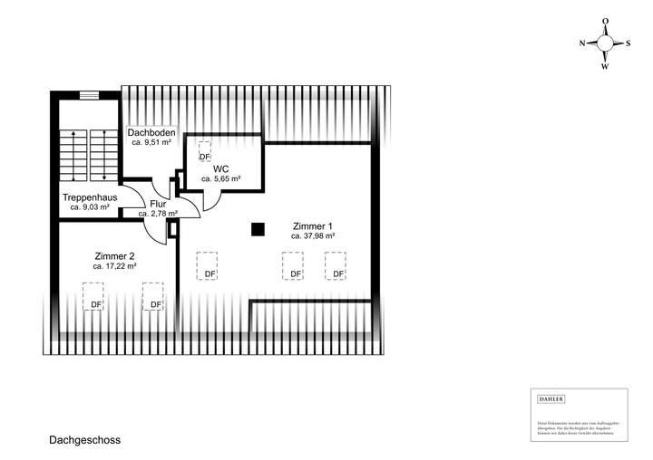
Im wohnlich ausgebauten Dachgeschoss befinden sich zwei Räume sowie ein WC. Mit geringem Aufwand könnte diese Fläche in zusätzliche Wohnfläche umgewandelt werden. Hierfür wären der Einbau von zwei Gauben sowie die Umwandlung des WCs in ein vollwertiges Badezimmer und die Einrichtung einer Küche erforderlich.
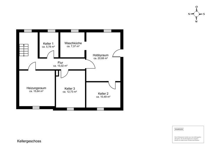
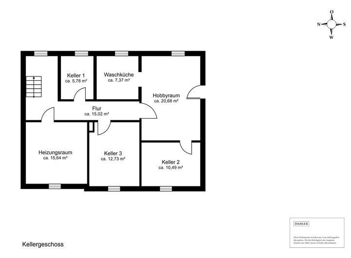
Das Untergeschoss beherbergt drei Kellerräume, einen Hobbyraum mit Waschküche sowie den Heizungsraum. Die Immobilie wird durch eine Gaszentralheizung aus dem Jahr 2013 beheizt. Doppelt verglaste Aluminiumfenster aus dem Jahr 1979 mit Außenrollläden sorgen für gute Isolierung und Komfort. Ein Kaminschacht ermöglicht das Nachrüsten eines Kamins, und die Stromleitungen wurden 1980 erneuert, was die Immobilie auch technisch auf einem guten Stand hält.
Dieses vielseitige Mehrparteienhaus bietet nicht nur eine hervorragende Wohnqualität, sondern auch zahlreiche Möglichkeiten zur individuellen Nutzung und Anpassung an die Bedürfnisse seiner Bewohner. Es ist ein ideales Zuhause für Familien oder als Anlageobjekt mit Potenzial zur Wertsteigerung.
Exklusives Südgrundstück: Stilvolles Mehrparteienhaus mit Wintergarten und ausgebautem Dachgeschoss
63796 Kahl am Main
Die vollständige Adresse der Immobilie erhalten Sie vom Anbieter.
Auf Karte anzeigen
Die vollständige Adresse der Immobilie erhalten Sie vom Anbieter.
Finanzierungszertifikat
In nur zwei Minuten zu Ihrem persönlichen Finanzierungszertifkat.
Infos
| Haustyp | Mehrfamilienhaus |
|---|---|
| Etagenzahl | 3 |
| Wohnfläche ca. | 211 m2 |
| Nutzfläche | 124 m2 |
| Grundstücksfläche | 535 m2 |
| Bezugsfrei ab | Nach Vereinbarung |
| Zimmer | 8 |
| Schlafzimmer | 4 |
| Badezimmer | 3 |
| Garage/Stellplatz | Garage |
| Anzahl Garage/Stellplatz | 2 |
Kosten
| Kaufpreis |
735.000 € |
|---|---|
| Provision |
5,95 % inkl. der gesetzl. MwSt., bezogen auf den beurkundeten Kaufpreis |
Finanzierungsrechner:
Kaufpreis:
600.000 €
Eigenkapital:
600.000 €
Monatliche Rate
0 €
Effektiver Jahreszins
0 %
Sollzinsbindung
10 Jahre
Bausubstanz & Energieausweis
| Baujahr | 1966 |
|---|---|
| Objektzustand | Gepflegt |
| Heizungsart | Zentralheizung |
| Wesentliche Energieträger | Gas |
| Energieausweis | liegt vor |
| Energieausweistyp | Bedarfsausweis |
| Energieverbrauchskennwert | 176,0 kWh/(m²*a) |
| Energieeffizienzklasse | F |
176,0
kWh/(m²*a)
Energieeffizienzklasse F
- A+
- A
- B
- C
- D
- E
- F
- G
- H
- 0
- 25
- 50
- 75
- 100
- 125
- 150
- 175
- 200
- 225
- >250
Beschreibung des Objekts
Ausstattung
* 64 m² wohnlich ausgebaute Fläche im DG
* Bad im Erdgeschoss teilweise saniert
* Erdgeschoss ohne Einbauküche
* Obergeschoss mit Einbauküche sowie Wannenbad
* Ober- und Dachgeschoss mit Fliesen belegt
* Garage (2 Stellplätze)
* Wintergarten im Erdgeschoss und Obergeschoss
Lage
Im malerischen Regierungsbezirk Unterfranken, eingebettet an der Grenze zu Hessen, liegt der Landkreis Aschaffenburg. Eine seiner Perlen ist die Gemeinde Kahl am Main, Heimat für knapp 8.500 Einwohner und idyllisch am nordöstlichen Ufer des Mains gelegen.
Diese zauberhafte Immobilie erfreut sich einer ruhigen Lage in einer Seitenstraße der Gemeinde. Die Umgebung prägt ein harmonisches Wohnviertel, geprägt von charmanten Mehrfamilien- und Einfamilienhäusern.
Ein wahrer Schatz an Freizeitmöglichkeiten offenbart sich durch die Vielzahl von Seen in der Region, die mit ihren malerischen Stränden und Naturbädern locken. Der Kahler Badesee ist beispielsweise in nur 5 Gehminuten zu erreichen. Für Angelfreunde ist das Mainufer nur 2,5 Kilometer entfernt und zahlreiche nahegelegene Wälder laden zu ausgedehnten Spaziergängen oder Radtouren ein. Alles Weitere findet sich in den benachbarten Städten Seligenstadt, Aschaffenburg oder Hanau, die in weniger als 20 Minuten erreichbar sind.
Alle Besorgungen des täglichen Bedarfs lassen sich bequem zu Fuß erledigen, da Supermärkte, Bäcker, Apotheken, Restaurants und Cafés direkt vor Ort in Kahl am Main zu finden sind.
Eine Privatschule, Grundschule bis zur gymnasialen Oberstufe, befinden sich nur zwei Gehminuten entfernt, während das nächste öffentliche Schulzentrum in Alzenau etwa vier Kilometer entfernt liegt und bequem mit dem Fahrrad erreichbar ist.
Für alles, was nicht zu Fuß oder mit dem Fahrrad erreichbar ist, bietet der nächste Bahnhof eine optimale Lösung, der nur einen Kilometer entfernt liegt. Von dort aus bestehen ausgezeichnete Verbindungen nach Hanau in nur zehn Minuten und nach Aschaffenburg in etwa 13 Minuten. Das Zentrum von Frankfurt ist mit dem Auto in ungefähr 45 Minuten und der Flughafen Frankfurt am Main in etwa 30 Minuten erreichbar.
Grundriss
Erdgeschoss
>
>
Obergeschoss
>
>
Dachgeschoss
>
>
Untergeschoss
>
>
Adresse
63796 Kahl am Main
Interessante Orte
Preis- und Lageinformationen
Preistrend für Bestandsimmobilien in Kahl am Main