Das Haupthaus wurde in den 1940er Jahren als Einfamilienhaus errichtet und 1980/81 durch einen Anbau sowie eine freistehende Garage erweitert. Das exakte Baujahr lässt sich der uns vorliegenden Bauakte vom Bauamt nicht entnehmen.
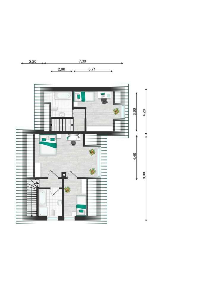
Im Erdgeschoss des Haupthauses befinden sich ein großzügiges Wohnzimmer mit Kamin und Zugang zur Terrasse, eine Küche mit angrenzendem Essbereich sowie ein Gäste-WC. Das Obergeschoss umfasst zwei Schlafzimmer und ein modernes Duschbad. Der nach Südwesten ausgerichtete Garten bietet optimale Sonnenverhältnisse und lädt zu entspannten Stunden im Freien ein.
Der Anbau bietet im Erdgeschoss ein gemütliches Wohnzimmer mit einem halboffenen Bereich für eine Küchenzeile sowie Zugang zur sonnigen Süd-Terrasse. Ein zusätzlicher Raum und ein Gäste-WC runden das Erdgeschoss ab. Im Obergeschoss des Anbaus befinden sich ein Schlafzimmer mit kleinem Balkon sowie ein Duschbad.
Das Grundstück liegt im Außenbereich des Bebauungsplanes. Ein Neubau müsste sich gemäß §34 BauGB in die umliegende Bebauung einfügen und kann im Rahmen einer Bauvoranfrage geprüft werden.
Die bereits von einem renommierten Architekturbüro erstellten Entwürfe für den Neubau berücksichtigen diese Anforderungen, müssen jedoch vor einer Umsetzung in Abstimmung mit dem Bauamt geprüft werden. Bei Interesse stellen wir Ihnen die Entwurfspläne gerne zur Verfügung.
Einzelhaus mit Potenzial auf schönem Eckgrundstück in ruhiger Lage von Alt-Westerland
25980 Sylt (Gemeinde)
Die vollständige Adresse der Immobilie erhalten Sie vom Anbieter.
Auf Karte anzeigen
Die vollständige Adresse der Immobilie erhalten Sie vom Anbieter.
Finanzierungszertifikat
In nur zwei Minuten zu Ihrem persönlichen Finanzierungszertifkat.
Infos
| Haustyp | Einfamilienhaus |
|---|---|
| Wohnfläche ca. | 140 m2 |
| Grundstücksfläche | 565 m2 |
| Zimmer | 5 |
| Schlafzimmer | 4 |
| Garage/Stellplatz | Garage |
| Anzahl Garage/Stellplatz | 2 |
Kosten
| Kaufpreis |
899.000 € |
|---|---|
| Provision |
3,57 % inkl. MwSt. für Verbraucher gemäß § 656c BGB, andernfalls 6,5 % inkl. MwSt. 3,57 % inkl. MwSt. für Verbraucher gemäß § 656c BGB, andernfalls 6,5 % inkl. MwSt. |
Finanzierungsrechner:
Kaufpreis:
600.000 €
Eigenkapital:
600.000 €
Monatliche Rate
0 €
Effektiver Jahreszins
0 %
Sollzinsbindung
10 Jahre
Bausubstanz & Energieausweis
| Baujahr | 1946 |
|---|---|
| Qualität der Austattung | Einfach |
| Heizungsart | Gas-Heizung |
| Wesentliche Energieträger | Gas |
| Energieausweis | liegt zur Besichtigung vor |
Beschreibung des Objekts
Lage
Alt-Westerland liegt im Herzen der Insel Sylt und bieten eine herausragende Lage, die städtisches Flair und ländliche Idylle harmonisch verbindet. Das beliebte Wohnareal grenzt direkt an das belebte Zentrum von Westerland, wodurch sich zahlreiche Einkaufsmöglichkeiten, Gastronomieangebote sowie kulturelle Einrichtungen in unmittelbarer Nähe befinden. Die Fußgängerzone von Westerland, mit ihren Boutiquen, Restaurants und Cafés, ist schnell erreichbar und lädt zum Bummeln und Verweilen ein.
Trotz der Nähe zum geschäftigen Zentrum bietet Alt-Westerland eine ruhige Wohnatmosphäre mit charmanten, reetgedeckten Häusern und kleinen Alleen.
Zusätzlich zur attraktiven Infrastruktur bietet sich hier eine ausgezeichnete Verkehrsanbindung. Der Bahnhof in Westerland ist in wenigen Minuten erreichbar, ebenso der Flughafen Sylt, der schnelle Verbindungen zum Festland ermöglicht.
Die Nähe zur Westküste und den Sandstränden macht diese Lage besonders reizvoll für Naturliebhaber und Strandbesucher, die sowohl die Vorzüge des Stadtlebens als auch die Ruhe der Natur genießen möchten.
Grundriss
Erdgeschoss
>
>
Dachgeschoss
>
>
Adresse
25980 Sylt (Gemeinde)
Interessante Orte
Preis- und Lageinformationen
Preistrend für Bestandsimmobilien in Sylt