Diese im Bau befindlichen Doppelhaushälften ermöglichen jungen Familien den einfachen Einstieg in die eigenen vier Wände. Auf diesem 202 qm großem Grundstück entstehen zwei Doppelhäuser mit Wohnflächen von 145 m² bis 158 m² . Ihre individuellen Wünsche können noch berücksichtigt werden.
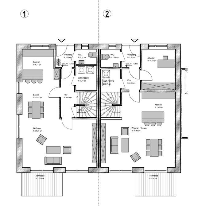
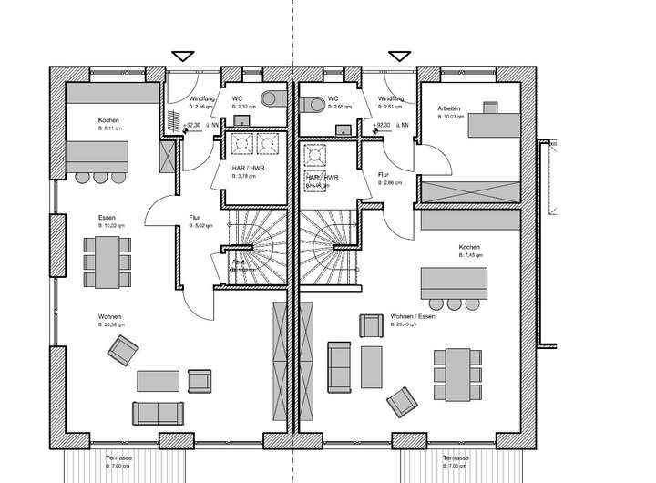
Im Erdgeschoss befinden sich der großzügige Wohn-und Essbereich mit Küche, ein Gäste-WC sowie ein Hauswirtschaftsraum.
Im Obergeschoss erwarten Sie zwei helle Zimmer und ein modernes Schlafzimmer und ein modernes Badezimmer mit bodengleicher Dusche.
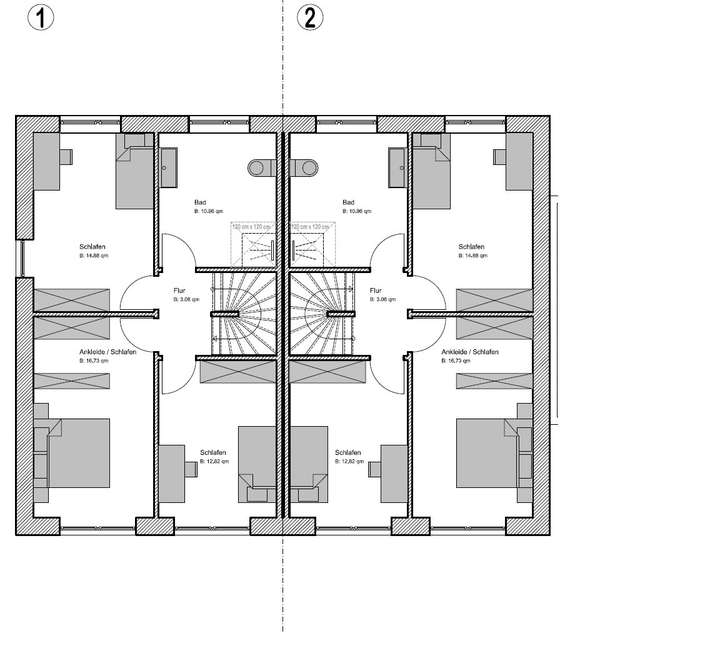
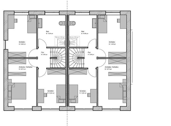
Das Dachgeschoss kann als Studio oder Büro ausgebaut werden.
Ein sonniger Garten, eine Terrasse sowie eine Garage runden das Angebot ab.
Gerne informieren wir Sie über Ihre individuellen Möglichkeiten. Rufen Sie uns einfach an und vereinbaren ein Beratungsgespräch.
Finanzierungszertifikat
In nur zwei Minuten zu Ihrem persönlichen Finanzierungszertifkat.
Infos
| Haustyp | Doppelhaushaelfte |
|---|---|
| Etagenzahl | 2 |
| Wohnfläche ca. | 158 m2 |
| Grundstücksfläche | 202 m2 |
| Bezugsfrei ab | nach Absprache |
| Zimmer | 4 |
| Schlafzimmer | 3 |
| Badezimmer | 1 |
Kosten
| Kaufpreis |
549.000 € |
|---|---|
| Provision | Nein |
Finanzierungsrechner:
Kaufpreis:
600.000 €
Eigenkapital:
600.000 €
Monatliche Rate
0 €
Effektiver Jahreszins
0 %
Sollzinsbindung
10 Jahre
Bausubstanz & Energieausweis
| Baujahr | 2025 |
|---|---|
| Heizungsart | Fußbodenheizung |
| Wesentliche Energieträger | Strom |
| Energieausweis | liegt vor |
| Energieausweistyp | Bedarfsausweis |
| Energieverbrauchskennwert | 35,0 kWh/(m²*a) |
| Energieeffizienzklasse | A |
35,0
kWh/(m²*a)
Energieeffizienzklasse A
- A+
- A
- B
- C
- D
- E
- F
- G
- H
- 0
- 25
- 50
- 75
- 100
- 125
- 150
- 175
- 200
- 225
- >250
Beschreibung des Objekts
Lage
Die Gemeinde Nottuln, mit ihren rund 20.000 Einwohnern, liegt am Süd-Westrand der Baumberge, eines der Naherholungsgebiete im Münsterland. Doch nicht nur die Nähe zur Natur, sondern auch die verkehrsgünstige Lage zwischen Münster und Coesfeld zeichnet die Gemeinde aus.
Über die Autobahn A43 ist sowohl eine optimale Anbindung an das Ruhrgebiet, als auch in das nahe gelegene Münster gewährleistet.
Die Bahnlinie Bremen – Münster – Essen – Köln wird über den Bahnhof Nottuln-Appelhülsen bedient. Daneben existiert eine gut getaktete Schnellbusverbindung (S60) über die A43 nach Münster. Der Flughafen Münster/Osnabrück ist rund 45 km entfernt.
Grundriss
Erdgeschoss
>
>
Obergeschoss
>
>
Adresse
Antonistraße 29, 48301 Nottuln
Interessante Orte
Preis- und Lageinformationen
Preistrend für Bestandsimmobilien in Nottuln