Dieses exklusive Manufaktur-Haus, ausgezeichnet mit dem Plus X Award 2023, besticht durch seine hochwertige Ausstattung und architektonischen Bauteilen. In Kombination mit unseren Design-Paketen wird dieses Einfamilienhaus garantiert einzigartig in Ihrer Nachbarschaft sein!
Exklusives Architektenhaus, innovative Technik und niedriger Energiebedarf
26160 Bad Zwischenahn
Die vollständige Adresse der Immobilie erhalten Sie vom Anbieter.
Auf Karte anzeigen
Die vollständige Adresse der Immobilie erhalten Sie vom Anbieter.
Finanzierungszertifikat
In nur zwei Minuten zu Ihrem persönlichen Finanzierungszertifkat.
Infos
| Haustyp | Einfamilienhaus |
|---|---|
| Wohnfläche ca. | 170 m2 |
| Nutzfläche | 0 m2 |
| Grundstücksfläche | 1.032 m2 |
| Zimmer | 6 |
| Schlafzimmer | 3 |
| Badezimmer | 1 |
| Anzahl Garage/Stellplatz | 1 |
Kosten
| Kaufpreis |
969.267 € |
|---|---|
| Provision | Nein |
Finanzierungsrechner:
Kaufpreis:
600.000 €
Eigenkapital:
600.000 €
Monatliche Rate
0 €
Effektiver Jahreszins
0 %
Sollzinsbindung
10 Jahre
Bausubstanz & Energieausweis
| Baujahr | 2025 |
|---|---|
| Bauphase | Haus in Planung (projektiert) |
| Qualität der Austattung | Gehoben |
| Heizungsart | Wärmepumpe |
Beschreibung des Objekts
Ausstattung
Hochwertig
Lage
Objektbeschreibung
Wir bauen unsere Häuser in traditioneller Fertigbauweise, ganz nach Ihren persönlichen Vorstellungen und Wünschen. Sie bestimmen die Architektur des Hauses sowie den gewünschten Leistungsumfang.
Jedes unserer Häuser entspricht aufgrund unserer hoch gedämmten Außenwand in Kombination mit unseren nachhaltigen Materialien jenach Wunsch, dem Kfw-55 oder KfW-40 KFN QNG Standard.
Lage:
Das Grundstück liegt in unmittelbarer Nähe zum "Zwischenahner Meer." Dieses garantiert eine hervorragende Wohnqualität in einem ruhigen und Naturnahen Umfeld.
In fußläufiger Nähe befindet sich der Kurpark, welcher zu Spaziergängen, sportlichen Aktivitäten und Erholung einlädt. Das grüne Umfeld bietet zahlreiche Möglichkeiten zur Freizeitgestaltung in der Natur und dient als Erholungsoase im Alltag. Die angrenzenden Grünflächen machen dieses Grundstück besonders attraktiv für Familien, Paare und alle, die das Stadtleben mit Naturnähe kombinieren möchten.
Die Lage zeichnet sich durch hervorragende Nahversorgungsmöglichkeiten aus. Supermärkte, Bäckereien, Apotheken und andere Geschäfte des täglichen Bedarfs sind bequem erreichbar und bieten alles, was Sie für ein komfortables Leben benötigen. Schulen, Kitas und ärztliche Versorgungen sind ebenfalls in der Umgebung angesiedelt, wodurch das Grundstück besonders familienfreundlich ist. Zudem ist die Anbindung an den öffentlichen Nahverkehr sehr gut, sodass Sie Oldenburg und Umgebung bequem erreichen können.
Das Grundstück wird in Kommission angeboten bzw. direkt von Dritten verkauft. Daher kann der o.g. Preis aufgrund aktueller Marktsituationen schwanken. Auf das Grundstück kann ggf. eine zusätzliche Maklercourtage anfallen.
Sonstige Angaben
Das Haus ist projektiert inkl. Grundstück. Das Grundstück wird in Kommission angeboten bzw. direkt von Dritten verkauft. Daher kann der o.g. Preis aufgrund aktueller Marktsituationen schwanken.
Die Bauabwicklung kann kurzfristig nach Grundstückserwerb begonnen werden. Bilder zeigen möglicherweise Sonderausstattungen, die auf Wunsch gegen Preiskorrektur zusätzlich angeboten werden können.
Fragen Sie nach unserem kostenlosen Beratungs-Service und erhalten Sie in einem persönlichen Gespräch kostenlos alle wichtigen Informationen zu diesem Projekt, insbesondere: Lage und Bebauungsmöglichkeiten des Baugrundstücks, Baukosten-Kalkulation, Finanzierungs- u. Förderungs-Möglichkeiten, detaillierte Architektur- u. Grundrissplanung, etc.
Wir freuen uns, Sie ausführlich beraten zu dürfen!
Anbauteile, Carport, Garage und Keller können Extras sein, die als Sonderausstattung angeboten werden. Abbildungen, Grundrisse und Flächenangaben sind beispielhaft und können Extras zeigen. Flächenangaben nach DIN 277.
Profitieren Sie jetzt von der Schwabenhaus Online Beratung und verwirklichen Sie Ihr Traumhaus https://www.schwabenhaus.de/anmeldung-hausbau-beratung-online/
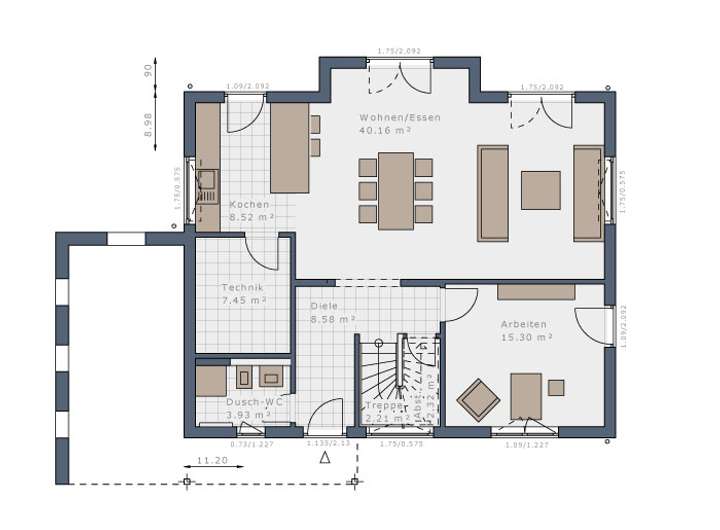
Grundriss
Erdgeschoss
>
>
Obergeschoss
>
>
Adresse
26160 Bad Zwischenahn
Interessante Orte
Preis- und Lageinformationen
Preistrend für Bestandsimmobilien in Bad Zwischenahn