Nachhaltigkeit leben und von Fördermöglichkeiten profitieren – das ist mit der familienfreundlich geschnittenen 3-Zimmer-Wohnung im Neubauprojekt FROHNHOFSQUARTIER möglich. Dank energiesparender Bauweise und der Nutzung erneuerbarer Energie ist das im Effizienzhaus-40-Standard errichtete Wohnhaus für 60% weniger Energieverbrauch bei höchstem Wohnkomfort.
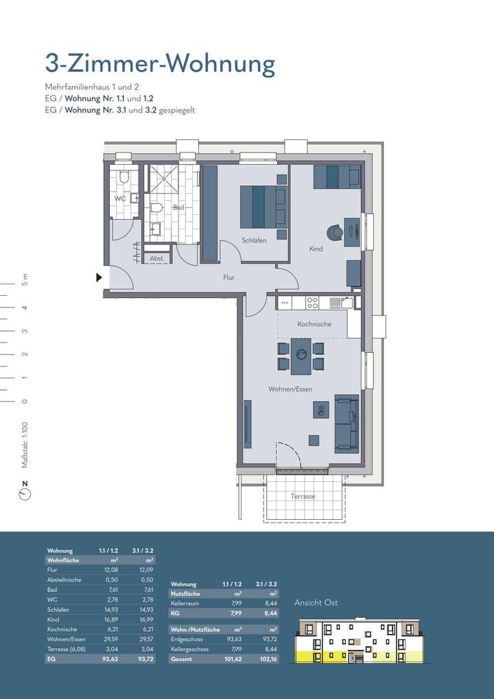
Die Erdgeschosswohnung überzeugt mit einer optimalen Raumaufteilung, die sich auf knapp 94 m² auf 2 Schlafräume und einen großzügigen Wohn-Ess-Bereich verteilt. Ein Tageslichtbad und separates Gäste-WC – ebenfalls mit Fenster – finden sich gleich am Eingang der Wohneinheit. Daran anschließend eröffnen sich vom Flur abgehend 2 Schlafzimmer – freundlich und hell dank bodentiefer Fensterelemente. Zur anderen Seite gelegen präsentiert der lichtdurchflutete Wohn-Ess-Bereich mit Kochnische Freiraum und Perspektiven für gemütliche Stunden. Und die Terrasse mit Garten verspricht zusätzlichen Lebensraum, der die Natur und Ruhe in dem kleinen Wohnquartier noch besser erlebbar macht.
Nutzen Sie die Fördermöglichkeiten für den Kauf von Wohneigentum in einem nach Effizienzhaus-40-Standard errichteten Wohngebäude. Dank emissionsfreier Wärmeversorgung können Sie hier auf ein zukunftssicheres Eigenheim und nachhaltiges Investment setzen.
Optimal geschnittene 3-Zimmer-Garten-Wohnung im Effizienzhaus-40
52353 Düren
Die vollständige Adresse der Immobilie erhalten Sie vom Anbieter.
Auf Karte anzeigen
Die vollständige Adresse der Immobilie erhalten Sie vom Anbieter.
Finanzierungszertifikat
In nur zwei Minuten zu Ihrem persönlichen Finanzierungszertifkat.
Infos
| Wohnungskategorie | Erdgeschosswohnung |
|---|---|
| Etage | 0 von 3 |
| Wohnfläche ca. | 93 m2 |
| Nutzfläche | 7,99 m2 |
| Bezugsfrei ab | Winter 2026 |
| Zimmer | 3 |
| Schlafzimmer | 2 |
| Badezimmer | 1 |
| Garage/Stellplatz | Außenstellplatz |
| Anzahl Garage/Stellplatz | 2 |
Kosten
| Kaufpreis |
387.400 € |
|---|---|
| Preis für Garage/Stellplatz | 17.000 € |
| Provision | Nein |
Finanzierungsrechner:
Kaufpreis:
600.000 €
Eigenkapital:
600.000 €
Monatliche Rate
0 €
Effektiver Jahreszins
0 %
Sollzinsbindung
10 Jahre
Bausubstanz & Energieausweis
| Baujahr | 2025 |
|---|---|
| Objektzustand | Erstbezug |
| Qualität der Austattung | Gehoben |
| Heizungsart | Wärmepumpe |
| Wesentliche Energieträger | Umweltwärme |
| Energieausweis | liegt vor |
| Energieausweistyp | Bedarfsausweis |
| Energieeffizienzklasse | A+ |
Energieeffizienzklasse A+
- A+
- A
- B
- C
- D
- E
- F
- G
- H
- 0
- 25
- 50
- 75
- 100
- 125
- 150
- 175
- 200
- 225
- >250
Beschreibung des Objekts
Ausstattung
- 3 Zimmer auf ca. 94 m² Wohnfläche
- Barrierefreies Wohnen mit Aufzug
- Durchgehender Wohn-Ess-Bereich mit offener Kochnische
- Wärmeversorgung für Warmwasser und Heizung über Luft-Wärmepumpe mit Photovoltaik-Anlage zur Energiegewinnung
- Behagliche Fußbodenheizung
- Bad mit Fenster sowie bodengleicher Dusche + zusätzlichem Heizkörper
- Garten und eigene Terrasse
- Kellergeschoss mit Fahrradraum, Wasch- und Trockenraum und eigenem Keller
Lage
Wohnen mit Weitblick! Am Ortsrand von Arnoldsweiler finden sich Erholung und Naturnähe direkt vor der Haustür. Denn mit dem FROHNHOFSQUARTIER entsteht ein neues Wohnquartier umgeben von Wiesen und Feldern. Das neue Wohnquartier bietet modernes Wohnen in beschaulicher Umgebung und verkehrsberuhigter Erschließung.
Der Ort ist bestens an die Autobahn zwischen Aachen und Köln angeschlossen Eine S-Bahn-Station befindet sich im Nachbarort Merzenich, und vom Bahnhof Düren ist der Anschluss an die Regionalbahnen gesichert. Die Kreisstadt ebenso wie die Nachbarorte können mit Busverbindungen von Arnoldsweiler aus erreicht werden. Ein gut ausgebautes Radwegenetz ist ebenfalls Teil der Infrastruktur, denn der Rurradweg verbindet Freiezit mit Mobilität
In der Umgebung befinden sich gut erreichbare Nahversorgungsangebote und eine ausgebaute soziale Infrastruktur. Direkt am neuen Wohnquartier gibt es zwei Kindergärten, dahinter eine Grundschule und zahlreiche Sportstätten im Ort wie in der Kreisstadt.
Kulturelle Angebote wie Museen, das Stadttheater und ein Kino oder die Arena Kreis Düren findet man in der nahen gelegenen Kreisstadt.
Mit seiner Anbindung an die Eifel und dem Flüsschen Rur bieten Düren und Arnoldsweiler eine gute Mischung an Naherholung und Freizeitaktivitäten.
Sonstige Angaben
Haben wir Ihr Interesse geweckt?
Gerne stehen wir Ihnen für einen persönlichen, unverbindlichen Beratungstermin zur Verfügung. Schreiben Sie uns eine E-Mail unter wohnen.nrw@wilma.de und wir übersenden Ihnen kostenlos und unverbindlich ausführliche Unterlagen und benennen Ihnen im Anschreiben unsere Beraterinnen bzw. Berater für Ihren individuellen Beratungstermin. Wir freuen uns auch auf Ihren Anruf unter 0173 1835392 oder unter 02102 156-177.
Die WILMA Bau- und Entwicklungsgesellschaft NRW mbH ist Anbieterin von Wohneinheiten der WILMA Wohnen Köln-Bonn Projekte GmbH. Hierbei handelt es sich um ein Unternehmen der WILMA Immobilien Gruppe.
Weitere Dokumente
LageplanAdresse
52353 Düren
Interessante Orte
Preis- und Lageinformationen
Preistrend für Bestandsimmobilien in Düren
>
>