Willkommen in unserem Wohnprojekt JAHN ELEVEN, welches modernen Komfort und naturnahe Erholung vereint. Hier entsteht ein Ort, an dem sich Familien, Paare und Senioren gleichermaßen wohlfühlen können.
Die Planung umfasst insgesamt 4 Wohngebäude mit je 6 Wohneinheiten.
Neben den Gebäuden inkludiert die Planung einen Garagenhof, einen Spielplatz und Grünflächen. Es stehen zahlreiche Stellplätze im Freien zur Verfügung, aber auch Carport-Stellplätze und Garagen.
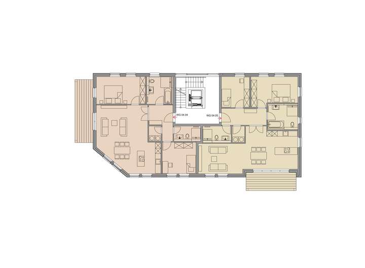
Die Wohngebäude sind alle ähnlich aufgebaut. Über den Aufzug oder die Treppe können Sie Ihre Wohnung erreichen. Im Erdgeschoss befinden sich jeweils 3 Wohneinheiten mit eigener Terrasse, im 1. OG jeweils 2 Wohneinheiten inkl. eigenem Balkon, im Staffelgeschoss befindet sich jeweils eine Wohneinheit. Die Wohnungsgrößen variieren zwischen 48 - 132 m² und weisen 2-4 Zimmer auf. Sämtliche Wohnungen sind barrierefrei und jeweils eine Wohnung pro Wohnhaus ist rollstuhlgerecht.
Im Kellergeschoss steht für jede Partei ein eigener Kellerraum zur Verfügung, zur gemeinsamen Nutzung ein Fahrradabstellraum sowie ein Raum für Kinderwagen und Mobilitätshilfen.
Dies könnte Ihr neues Zuhause sein - ein Ort, der Ihre Erwartungen übertreffen wird.
Finanzierungszertifikat
In nur zwei Minuten zu Ihrem persönlichen Finanzierungszertifkat.
Infos
| Wohnungskategorie | Etagenwohnung |
|---|---|
| Etage | 1 von 3 |
| Wohnfläche ca. | 98 m2 |
| Nutzfläche | 107,3 m2 |
| Bezugsfrei ab | Dezember 2026 |
| Zimmer | 3 |
| Schlafzimmer | 2 |
| Badezimmer | 1 |
| Garage/Stellplatz | Außenstellplatz |
| Anzahl Garage/Stellplatz | 1 |
Kosten
| Kaufpreis |
388.088 € |
|---|---|
| Preis für Garage/Stellplatz | 6.500 € |
| Provision | Nein |
Finanzierungsrechner:
Kaufpreis:
600.000 €
Eigenkapital:
600.000 €
Monatliche Rate
0 €
Effektiver Jahreszins
0 %
Sollzinsbindung
10 Jahre
Bausubstanz & Energieausweis
| Baujahr | 2026 |
|---|---|
| Objektzustand | Erstbezug |
| Qualität der Austattung | Gehoben |
| Heizungsart | Fußbodenheizung |
| Wesentliche Energieträger | Umweltwärme |
| Energieausweis | liegt zur Besichtigung vor |
Beschreibung des Objekts
Ausstattung
Willkommen in unserem Wohnprojekt JAHN ELEVEN, welches modernen Komfort und naturnahe Erholung vereint. Hier entsteht ein Ort, an dem sich Familien, Paare und Senioren gleichermaßen wohlfühlen können.
Die Planung umfasst insgesamt 4 Wohngebäude mit je 6 Wohneinheiten.
Neben den Gebäuden inkludiert die Planung einen Garagenhof, einen Spielplatz und Grünflächen. Es stehen zahlreiche Stellplätze im Freien zur Verfügung, aber auch Carport-Stellplätze und Garagen.
Die Wohngebäude sind alle ähnlich aufgebaut. Über den Aufzug oder die Treppe können Sie Ihre Wohnung erreichen. Im Erdgeschoss befinden sich jeweils 3 Wohneinheiten mit eigener Terrasse, im 1. OG jeweils 2 Wohneinheiten inkl. eigenem Balkon, im Staffelgeschoss befindet sich jeweils eine Wohneinheit. Die Wohnungsgrößen variieren zwischen 48 - 132 m² und weisen 2-4 Zimmer auf. Sämtliche Wohnungen sind barrierefrei und jeweils eine Wohnung pro Wohnhaus ist rollstuhlgerecht.
Im Kellergeschoss steht für jede Partei ein eigener Kellerraum zur Verfügung, zur gemeinsamen Nutzung ein Fahrradabstellraum sowie ein Raum für Kinderwagen und Mobilitätshilfen.
Dies könnte Ihr neues Zuhause sein - ein Ort, der Ihre Erwartungen übertreffen wird.
Lage
Das Bauprojekt wird im Herzen von Mendig entstehen. Ein Ort mit ca. 9100 Einwohnern in der vulkanischen Osteifel. Der Ort verfügt über eine sehr gute Verkehrsanbindung, sowie einer breit gefächerten Infastruktur mit zahlreichen Einkaufsmöglichkeiten.
Eine Bushaltestelle ist ca. 50 m vom Grundstück entfernt und der Wochenmarkt ist fußläufig erreichbar.
Auch Kindergärten, Schulen, Ärzte und Apotheken befinden sich in unmittelbarer Umgebung.
Sonstige Angaben
Dies könnte Ihr neues Zuhause sein - ein Ort, der Ihre Erwartungen übertreffen wird.
Weitere Dokumente
250128_Exposé JAHN ELEVEN_MendGrundriss
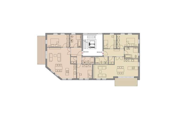
Grundriss HAUS 4_1. OG
>
>
Adresse
Jahnstraße 11, 56743 Mendig
Interessante Orte
Preis- und Lageinformationen
Preistrend für Bestandsimmobilien in Mendig