Diese Immobilie wurde 1967 in baujahrestypisch solider Bauweise, auf einem insgesamt ca. 612 m² großen Grundstück errichtet. Sie besteht aus einem Reihenendhaus nebst angebauter Ladenzeile und zwei angrenzenden Garagen auf vier Flurstücken.
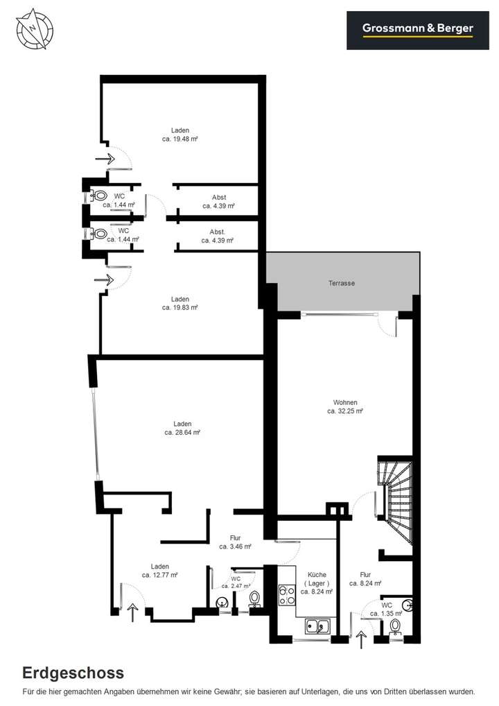
Während das Wohnhaus durch seine insgesamt ca. 141 m² Wohnfläche, die durchdachte Raumaufteilung sowie den vorhandenen Vollkeller überzeugt, besteht die Ladenzeile aus drei gut vermieteten Gewerbeeinheiten, die eine Fläche von insgesamt ca. 98 m² aufweisen. Zurzeit ist die Küche des Erdgeschosses zu Lagerzwecken an die angrenzende Gewerbeeinheit mit vermietet. Die aktuell erzielten Nettomieterträge belaufen sich kumuliert auf 1.522,00 € / monatlich.
Hier wohnen Sie in unmittelbarer Nähe zu Ihrem Renditeobjekt und genießen neben Wohnkomfort auch das wirtschaftliche Potenzial Ihrer Immobilie. Der attraktiven Möglichkeit zur zusätzlichen Einkommensgenerierung wohnt in dieser Konstellation selbstverständlich auch ein hohes Maß an Flexibilität in Bezug auf eigene Geschäftsideen bei.
Wenn Sie sich einen 360-Grad-Blick von der Immobilie verschaffen möchten, nutzen Sie bitte den folgenden Link: https://tour.ogulo.com/Nvd4
Leben und investieren unter einem Dach
25469 Halstenbek
Die vollständige Adresse der Immobilie erhalten Sie vom Anbieter.
Auf Karte anzeigen
Die vollständige Adresse der Immobilie erhalten Sie vom Anbieter.
Finanzierungszertifikat
In nur zwei Minuten zu Ihrem persönlichen Finanzierungszertifkat.
Infos
| Haustyp | Reiheneckhaus |
|---|---|
| Wohnfläche ca. | 141 m2 |
| Nutzfläche | 146 m2 |
| Grundstücksfläche | 612 m2 |
| Bezugsfrei ab | nach Vereinbarung |
| Zimmer | 3 |
| Schlafzimmer | 3 |
| Badezimmer | 2 |
| Garage/Stellplatz | Garage |
| Anzahl Garage/Stellplatz | 2 |
Kosten
| Kaufpreis |
495.000 € |
|---|---|
| Provision |
3,57 % inkl. MwSt. |
Finanzierungsrechner:
Kaufpreis:
600.000 €
Eigenkapital:
600.000 €
Monatliche Rate
0 €
Effektiver Jahreszins
0 %
Sollzinsbindung
10 Jahre
Bausubstanz & Energieausweis
| Baujahr | 1967 |
|---|---|
| Objektzustand | Renovierungsbedürftig |
| Heizungsart | Zentralheizung |
| Wesentliche Energieträger | Gas |
| Energieausweis | liegt vor |
| Energieausweistyp | Bedarfsausweis |
| Energieverbrauchskennwert | 217,1 kWh/(m²*a) |
| Energieeffizienzklasse | G |
217,1
kWh/(m²*a)
Energieeffizienzklasse G
- A+
- A
- B
- C
- D
- E
- F
- G
- H
- 0
- 25
- 50
- 75
- 100
- 125
- 150
- 175
- 200
- 225
- >250
Beschreibung des Objekts
Ausstattung
Ihr neues Zuhause punktet mit praktischen Details: Die wohnlichen Räume im Erdgeschoss sind mit Stäbchenparkett und Fliesen ausgestattet. Bodentiefe, isolierverglaste Fenster im Wohn- und Essbereich vermitteln ein helles Raumgefühl und bieten einen schönen Blick in den nach Süden ausgerichteten Garten.
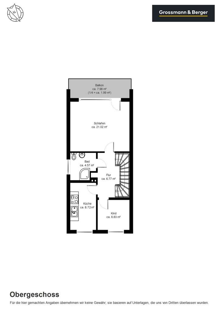
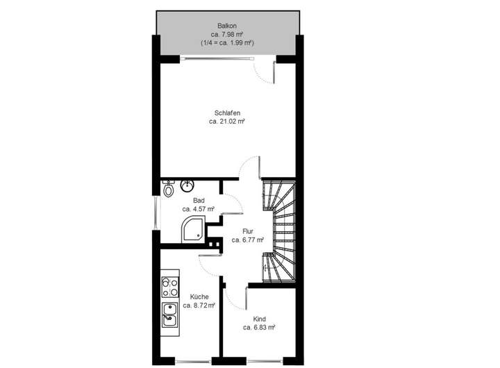
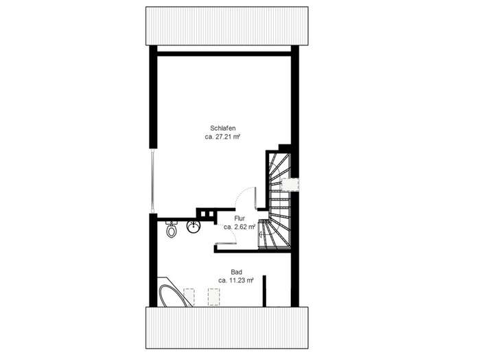
Im Obergeschoss genießen Sie die Mittagssonne von Ihrem Balkon aus. Insgesamt verfügt das Reihenendhaus über zwei Vollbäder sowie ein Gäste-WC.
Im Zuge einer vollumfänglichen Dachsanierung inklusive Wärmedämmung wurde das Badezimmer im Dachgeschoss 2003 modernisiert.
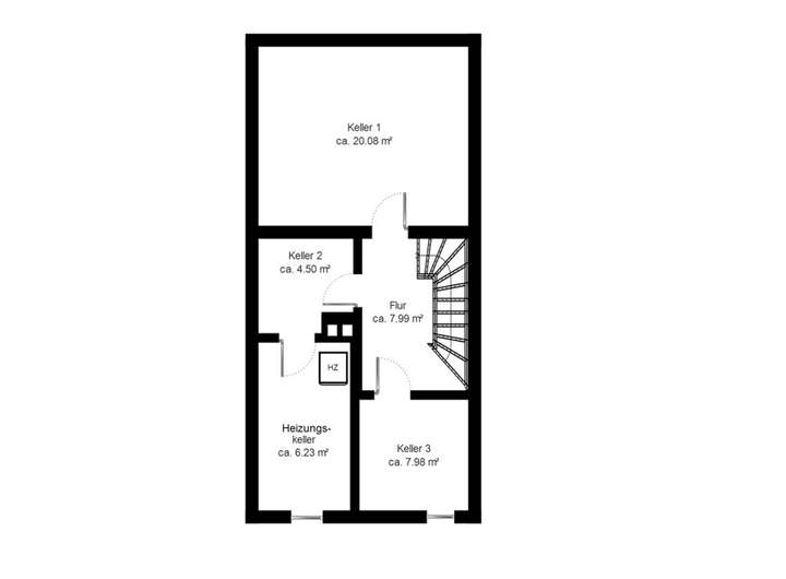
Das Wohnhaus ist voll unterkellert und bietet mit drei Abstellräumen sowie dem Spitzboden ausreichend Stellfläche.
Beheizt wird die Immobilie durch eine Gaszentralheizung aus dem Jahr 1993. Die Warmwasseraufbereitung der Ladenzeile erfolgt über Durchlauferhitzer.
Lage
Halstenbek ist für seine idyllische Wohnatmosphäre bekannt. Naturnahe Lage und ländlicher Charme treffen auf perfekte Anbindung und urbane Nähe. Die Gemeinde ist Heimat für rund 18.000 Menschen und erfreut sich immer größerer Beliebtheit bei Familien und aktiven Menschen. Halstenbek punktet mit seinen vielfältigen Freizeitmöglichkeiten. Ortsansässige Sporteinrichtungen laden zu dynamischen Tagen ein. Der malerische Krupunder See ist Anlaufziel für Naturliebhaber.
Das angebotene Reihenendhaus befindet sich in ruhiger Wohnlage von Halstenbek. Umgeben von gepflegten Einfamilienhäusern und grünen Flächen, bietet Ihr neues Zuhause eine ausgezeichnete Verkehrsanbindung. Die unmittelbare Nähe zur Autobahn 23, dem nahe gelegenen S-Bahnhof Krupunder sowie mehreren Buslinien sorgen für eine optimale Erreichbarkeit des Gemeindezentrums und der Hamburger Innenstadt.
Geschäfte des täglichen Bedarfs sowie Schulen und Ärzte liegen nur wenigen Fahrminuten entfernt.
Grundriss
Erdgeschoss
>
>
OG
>
>
DG
>
>
KG
>
>
Adresse
25469 Halstenbek
Interessante Orte
Preis- und Lageinformationen
Preistrend für Bestandsimmobilien in Halstenbek