Das Haus wurde 1964 in Massivbauweise errichtet und ist voll unterkellert und besteht aus 3 Wohneinheiten. Alle Einheiten sind in etwa gleich groß und verfügen insgesamt über eine Wohnfläche von 286 m². Die Erdgeschosswohnung hat eine Terrasse, die freie Wohnung im 1. OG ein Balkon. Das Dachgeschoss wurde 1992 ausgebaut, der Spitzboden hat eine Standhöhe von ca. 2 m. Die zentrale Ölheizung ist ebenfalls von 1992.
Im Garten des Gebäudes befinden sich ein Pool, ein Gartenhaus aus Holz, ein Garagenanbau sowie ein weiteres Nebengebäude.
"Kleines MFH mit 3 WE und grünem Grundstück in Rudow, 1 OG leer / kompletter Eigenbedarf möglich"
12355 Berlin
Die vollständige Adresse der Immobilie erhalten Sie vom Anbieter.
Auf Karte anzeigen
Die vollständige Adresse der Immobilie erhalten Sie vom Anbieter.
Finanzierungszertifikat
In nur zwei Minuten zu Ihrem persönlichen Finanzierungszertifkat.
Infos
| Haustyp | Mehrfamilienhaus |
|---|---|
| Etagenzahl | 3 |
| Wohnfläche ca. | 286 m2 |
| Grundstücksfläche | 869 m2 |
| Bezugsfrei ab | sofort |
| Zimmer | 11 |
| Badezimmer | 3 |
Kosten
| Kaufpreis |
859.000 € |
|---|---|
| Provision |
7,14% |
Finanzierungsrechner:
Kaufpreis:
600.000 €
Eigenkapital:
600.000 €
Monatliche Rate
0 €
Effektiver Jahreszins
0 %
Sollzinsbindung
10 Jahre
Bausubstanz & Energieausweis
| Baujahr | 1964 |
|---|---|
| Objektzustand | Renovierungsbedürftig |
| Qualität der Austattung | Einfach |
| Heizungsart | Zentralheizung |
| Wesentliche Energieträger | Öl |
| Energieausweis | liegt vor |
| Energieausweistyp | Verbrauchsausweis |
| Energieverbrauchskennwert | 129,6 kWh/(m²*a) |
Beschreibung des Objekts
Ausstattung
Das Objekt kann aufgeteilt werden, ein Aufteilungsplan liegt vor. Die Grundrisse sind variabel gestaltbar und können individuell angepasst werden.
Bei einem geplanten Eigenbedarf kann z.B. das EG und OG zusammengelegt und das DG als separate Einliegerwohnung vermietet werden.
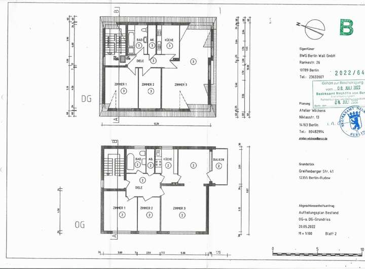
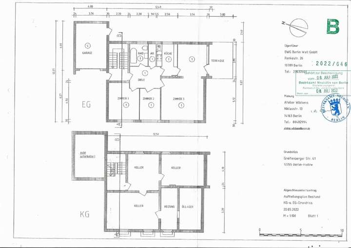
EG 4 Zimmer auf 98 m² mit Terrasse / vermietet zu 600,74 € (netto kalt)
1 OG 4 Zimmer auf 98 m² mit Balkon / leer
2 OG 3 Zimmer auf 90 m² / vermietet zu 598,50 € (netto kalt)
Garage 20 m² / leer
Lage
Die Greifenberger Straße grenzt an den Nordpark von Rudow, das Haus befindet sich in einer sehr ruhigen und grünen Umgebung an der Stadtgrenze Berlin / Brandenburg.
Rudow überzeugt mit hervorragendem Anschluss an die Berliner City und den nahegelegenen Flughafen BER. Die U7 „Alt-Rudow“ ist fußläufig erreichbar.
Ein beliebtes Ausflugsziel ist die Rudower Höhe am Glashütter Weg mit einer großen Rodelbahn. Vom alten Dorfkern zur Stadtgrenze am Klein-Ziethener Weg verläuft das renaturierte Rudower Fließ.
Sonstige Angaben
Der Verkauf erfolgt im IST - Zustand, sämtliche Um- und Ausbauaufwendungen trägt der Erwerber.
Es gilt ein vom Käufer und Verkäufer an uns zu entrichtendes Vermittlungs- bzw. Nachweishonorar (Maklercourtage) bei Abschluss des Kaufvertrages in Höhe von jeweils 3,57% (inkl.19% MwSt.) auf den tatsächlichen Kaufpreis als vereinbart. Unsere Angebote sind nur für den Empfänger selbst bestimmt. Bei einer Weitergabe an Dritte haftet der Angebotsempfänger für unsere Courtage. Die Inhalte unserer Angebote beruhen auf den Angaben des Verkäufers bzw. anderer fremder Dritter und nicht auf unseren Ermittlungen und erfolgen deshalb ohne Gewähr für deren Richtigkeit. Unsere Angebote erfolgen freibleibend und unverbindlich. Zwischenverkauf bleibt vorbehalten.
Grundriss
Grundriss KG_EG
>
>
Grundriss 1OG_DG
>
>
Adresse
12355 Berlin
Interessante Orte
Preis- und Lageinformationen
Preistrend für Bestandsimmobilien in Rudow (Neukölln)