Der Gesundheitscampus mit voraussichtlichem Baubeginn / Spatenstich Anfang 2026 unterteilt sich in:
• Mehrgenerationenhaus / Wohnen für Jung und Alt
• Kurzzeit-, Tages- und Nachtpflege
• Seniorengerechtes Wohnen (auf Wunsch mit Betreuung)
Wohnen auf dem Rechberg
Das Bauvorhaben befindet sich in einer besonders attraktiven und ruhigen Lage in unmittelbarer Nähe zum Landschaftsschutzgebiet mit schönem Panoramablick über Bretten und den südlichen Kraichgau.
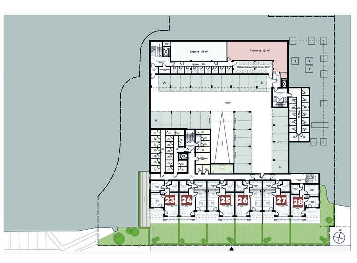
Die beiden L-förmig zueinanderstehenden Baukörper mit ihrer hochwertigen Architektur bilden mit der Rechbergklinik und dem neuen Ärztehaus, alles in direkter Nachbarschaft, als Gebäudeassembler den Mittelpunkt des Rechbergareals.
Der Gesundheitscampus auf dem Rechberg wurde mit seiner integrierten Kurzzeitpflege als besondere Auszeichnung vom Sozialministerium des Landes Baden-Württemberg in das „Innovationsprogramm Pflege 2024“ aufgenommen. In der Begründung für die Auswahl in das Förderprogramm wurde das Alleinstellungsmerkmal hervorgehoben, welches dieses Projekt in ganz Baden-Württemberg besitzt.
50 Pflegeplätze und 66 Wohnungen
Die Wohnungen haben eine Größe von ca. 44 bis ca. 107 Quadratmeter und können auf Grund unserer modularer Plankonzeption bei großem Platzbedarf je nach Lebenssituation zusammengelegt und wieder geteilt werden. Mit dem geräumigen Veranstaltungsraum im Erdgeschoss und dem begrünten Innenhof sind Kommunikationsplätze als Begegnungsstätten vorgesehen. Als energiesparende und sinnvolle Maßnahme haben wir zusätzlich von den Stadtwerken Bretten eine Nahwärmeversorgung auf dieses Areal verlegen lassen. Zum Abstellen von Fahrzeugen stehen die Tiefgarage mit breiten Stellplätzen und Außenstellplätze zur Verfügung. Ein großer Fahrradabstellraum ist ebenfalls geplant. Auch ist die Bushaltestelle „gleich hinter dem Haus“ sowie die Stadtbahn-Haltestellen „Rechberg“ und „Stadtmitte“ fußläufig zu erreichen.
Für den Innenausbau Ihrer Wohnung können Sie auf Wunsch die Firma Rostan aus Oberderdingen sowie die Firma Kablan aus Bretten beauftragen. Zu diesen Leistungen haben die beiden Firmen Ihre Auskunftsbroschüre beilegen lassen.
Finanzierungszertifikat
In nur zwei Minuten zu Ihrem persönlichen Finanzierungszertifkat.
Infos
| Wohnungskategorie | Etagenwohnung |
|---|---|
| Wohnfläche ca. | 87 m2 |
| Zimmer | 3 |
Kosten
| Kaufpreis |
435.800 € |
|---|---|
| Provision | Nein |
Finanzierungsrechner:
Kaufpreis:
600.000 €
Eigenkapital:
600.000 €
Monatliche Rate
0 €
Effektiver Jahreszins
0 %
Sollzinsbindung
10 Jahre
Bausubstanz & Energieausweis
| Objektzustand | Erstbezug |
|---|---|
| Qualität der Austattung | Gehoben |
| Heizungsart | Fernwärme |
| Wesentliche Energieträger | Fernwärme |
Beschreibung des Objekts
Sonstige Angaben
*Preisliste siehe Dokument*
Typ D im EG, 2.OG und 4.OG:
- Wohnung Nr. 29, 45, 61
Weitere Dokumente
ExposéPreisliste Innenausbau
Preisliste
Adresse
Edisonstraße 10, 75015 Bretten
Interessante Orte
Preis- und Lageinformationen
Preistrend für Bestandsimmobilien in Bretten