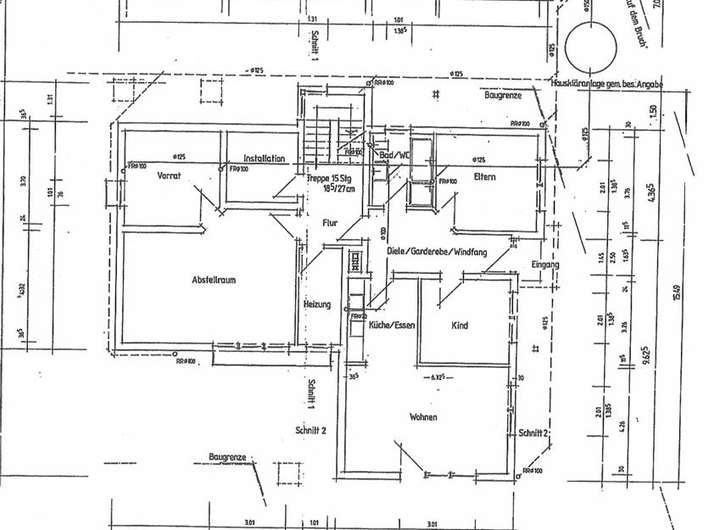
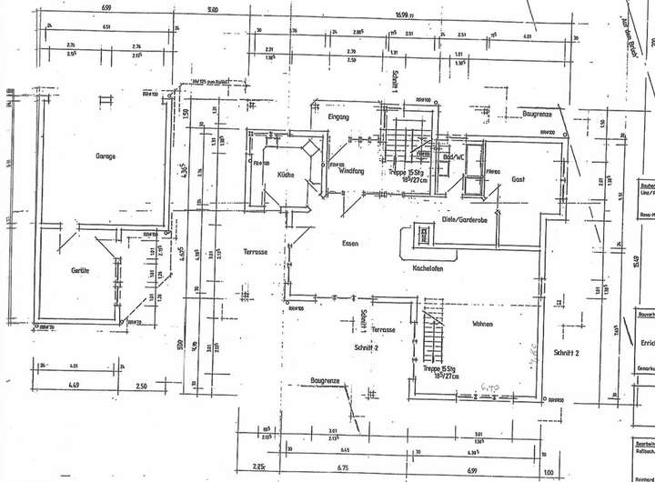
Zum Verkauf steht ein möbliertes, schickes Zweifamilienhaus in hochwertiger Bauausführung mit toller Ausstattung und Doppelgarage in Neustadt/Wied in bevorzugter, Ruhiglage direkt am Wald. Das großzügige Landhaus wurde 1996 in massiver Bauweise mit Keller errichtet, später modernisiert und in den heutigen, hochwertigen, stylischen Zustand versetzt. Das Gebäude verfügt über hochwertige Fußböden, nahezu luxuriöse Bäder - inklusive Badmöbel, ist modern, stylisch und hochwertig eingerichtet. Das große Wohnzimmer - mit Kamin - ist mit bodentiefen Fenstern ausgestattet und verfügt über eine Galerie. Die Küche in einem der beiden Gebäude ist mit einer hochwertigen, voll ausgestatteten Einbauküche eingerichtet (Großgeräte von Liebherr, Siemens und Bosch). Das Gebäude verfügt über eine große, teilweise überdachte Terrasse. Zum Anwesen gehört ein Garagenhaus (Doppelgarage) mit dahinterliegender Werkstatt/Hobbyraum. Außerdem gibt es Platz für weitere PKWs. Beheizt werden beide Gebäudeteile über eine moderne Gasheizung mit Warmwasseraufbereitung. Die Wohn- und Nutzfläche beträgt insgesamt 447,31 m². Auf die Wohnflächen der beiden Gebäudeteile entfallen 321,78 m². Die Nutzflächen betragen 125,53 m². Die genaue Aufteilung können Sie den Grundrissen entnehmen. Auf Wunsch können wir Ihnen die Grundrisse in guter Auflösung und bemaßt zur Verfügung stellen - ebenso die Baubeschreibung und die offizielle Wohnflächenberechnung. Das Grundstück des großzügigen Zweifamilienhauses ist ca. 1330 m² groß und wurde mit Hecken und Sträuchern bepflanzt. Die gepflegte Grünanlage besteht aus einem Vorgarten und dem dahinterliegenden Hauptgrundstück mit Rasenflächen. Das Haus ist frei und kann kurzfristig bezogen werden.
Der Kaufpreis ist im gewissen Rahmen verhandelbar.
Modernisiertes Zweifamilienhaus in Ruhiglage am Waldrand 446 m² Wohn-u.Nutzfläche Topausstattung EBK
53577 Neustadt (Wied)
Die vollständige Adresse der Immobilie erhalten Sie vom Anbieter.
Auf Karte anzeigen
Die vollständige Adresse der Immobilie erhalten Sie vom Anbieter.
Finanzierungszertifikat
In nur zwei Minuten zu Ihrem persönlichen Finanzierungszertifkat.
Infos
| Haustyp | Mehrfamilienhaus |
|---|---|
| Etagenzahl | 1 |
| Wohnfläche ca. | 322 m2 |
| Nutzfläche | 125 m2 |
| Grundstücksfläche | 1.330 m2 |
| Bezugsfrei ab | nach Vereinbarung |
| Zimmer | 10 |
| Schlafzimmer | 6 |
| Garage/Stellplatz | Garage |
| Anzahl Garage/Stellplatz | 2 |
Kosten
| Kaufpreis |
550.000 € |
|---|---|
| Provision |
3,57% inklusive gesetzlicher MwSt. |
Finanzierungsrechner:
Kaufpreis:
600.000 €
Eigenkapital:
600.000 €
Monatliche Rate
0 €
Effektiver Jahreszins
0 %
Sollzinsbindung
10 Jahre
Bausubstanz & Energieausweis
| Baujahr | 1996 |
|---|---|
| Objektzustand | Modernisiert |
| Qualität der Austattung | Gehoben |
| Heizungsart | Gas-Heizung |
| Wesentliche Energieträger | Gas |
| Energieausweis | liegt vor |
| Energieausweistyp | Verbrauchsausweis |
| Energieverbrauchskennwert | 195,0 kWh/(m²*a) |
| Energieeffizienzklasse | F |
195,0
kWh/(m²*a)
Energieeffizienzklasse F
- A+
- A
- B
- C
- D
- E
- F
- G
- H
- 0
- 25
- 50
- 75
- 100
- 125
- 150
- 175
- 200
- 225
- >250
Beschreibung des Objekts
Ausstattung
- Zweifamilienhaus
- Wohnen und Arbeiten unter einem Dach
- Mehrgenerationenhaus
- Isolierglasfenster in Holz
- Kamin
- zwei hochwertige Badezimmer
- zwei Gäste-WCs
- Türen und Türzargen in Buche Landhausoptik
- hochwertige Fußböden Fliesen, Marmor, Granit,
- Galerie
- auf Wunsch möbliert oder teilmöbliert
- hochwertige Einbauküche mit allen Haushaltsgeräten
- Terrasse
- großer, gepflegter, parkähnlicher Garten
- Granit im Treppenhaus
- Parkettfußböden
- Keller
- Doppelgarage mit Werkstatt/Hobbyraum und vieles mehr
Lage
Neustadt (Wied) liegt im Naturpark Rhein-Westerwald, direkt an der Wied, einem Nebenfluss des Rheins.
Die Gemeinde befindet sich mit jeweils rund 35 Straßenkilometern Entfernung zwischen der Kreisstadt Neuwied und Bonn nahe der Grenze zu Nordrhein-Westfalen. Die umliegenden Städte Linz am Rhein, Bad Honnef, Bad Hönningen, Königswinter und Hennef (Sieg) können in 15 bis 25 km erreicht werden, der Hauptort Asbach innerhalb der Verbandsgemeinde in 7 km.
Der Ortsteil Fernthal wird vom Fernthaltunnel, einem 1555 m langen Eisenbahn-Tunnel der Schnellfahrstrecke Köln–Rhein/Main unterquert, der Ortsteil Ammerich durch den Ammerichtunnel.
Neustadt verfügt über drei Schulen und drei kirchlich getragene Kindergärten. Die Grundschule „In der Au“ versorgt in erster Linie die Ortsgemeinde Neustadt, während das Einzugsgebiet der Staatlichen Realschule und des Wiedtal-Gymnasiums über die Verbandsgemeinde hinausreicht. urch die unmittelbare Nähe zur Staatlichen Realschule kommen die Schüler in den Genuss der Vorteile eines Schulzentrums mit gemeinsamen Einrichtungen wie z. B. Zentralbibliothek und Fachräume. Zwischen den Schulen des Schulzentrums besteht vor allem in der Orientierungsstufe (Klassen 5 und 6) eine enge Zusammenarbeit (z. B. in einigen Fächern gleiche Lernmittel, Lehreraustausch). Dadurch kann am Ende der Orientierungsstufe eine fundierte Laufbahnempfehlung gegeben werden. Die neuen Klassen 5 sind so zusammengesetzt, dass Kinder aus derselben Grundschule möglichst auch dieselbe Klasse besuchen können. Am Ort gibt es eine kommunale Gemeindebücherei. Außerdem sind in Neustadt eine katholische und eine evangelische Kirchengemeinde mit eigenen Kirchen vorhanden sowie das Alten- und Pflegeheim St. Josefshaus. Der Ort verfügt über ein Sportzentrum, ein Bürgerhaus mit Sport- und Mehrzweckhalle und die im Januar 2004 offiziell eingeweihte Wiedparkhalle, die kulturellen und geselligen Veranstaltungen dient.
Verkehr:
Straßen: Bundesautobahn 3 – zwei Anschlussstellen: Bad Honnef/Linz/Asbach und Neustadt (Wied)/Fernthal
Die nächstgelegenen Bahnhöfe ca. 20 km entfernt im Rheintal (Linz/Rhein, Bad Honnef), und im Siegtal (Hennef/Sieg, Eitorf).
Personennahverkehr: Direkte Busverbindungen im Netz des Verkehrsverbund Rhein-Mosel (VRM) bestehen nach Horhausen, Neuwied, Linz am Rhein und Asbach. Fernwanderwege: Westerwald-Steig führt nach Strauscheid, einem Ortsteil von Neustadt (Wied)
Quelle: Wikipedia
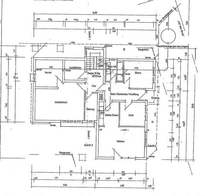
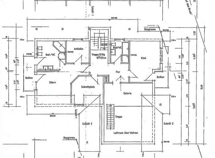
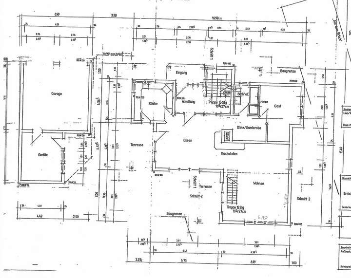
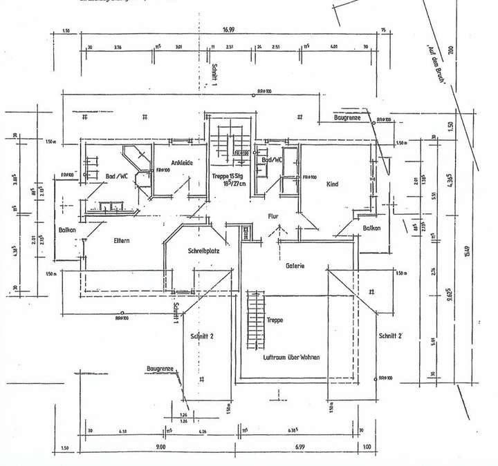
Grundriss
1
>
>
2
>
>
3
>
>
EG
>
>
OG
>
>
DG
>
>
Adresse
53577 Neustadt (Wied)
Interessante Orte
Preis- und Lageinformationen
Preistrend für Bestandsimmobilien in Neustadt (Wied)