Vielseitig nutzbares Landhaus – als Landsitz, Hotel oder Investment.
Das denkmalgeschützte Gutshaus im Stil der Neo-Renaissance liegt auf einer Anhöhe in Papendorf, nur 3 km vom Hafen Lassan und 30 Autominuten von den Ostseestränden Usedoms entfernt.
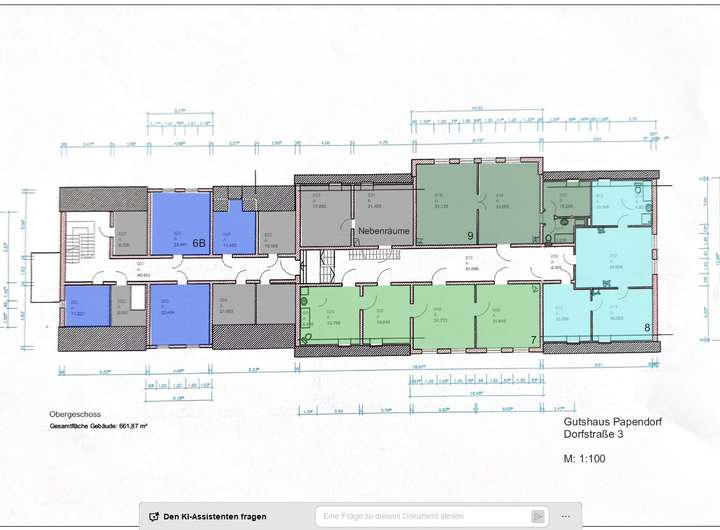
Auf einem 14.235 m² großen Grundstück bietet das Anwesen mit 43 Räumen – darunter zur Zeit sechs Wohnungen, zwei Ferienzimmer, ein Festsaal und ein Kaminzimmer – vielfältige Nutzungsmöglichkeiten: Wohnen, Vermieten, Veranstaltungen oder Hotelbetrieb.
Der parkähnliche Garten mit altem Baumbestand und Waldanteil bietet Ruhe und Naturverbundenheit.
Historisches Gutshaus mit Weitblick – Nähe Usedom & Achterwasser
Dorfplatz 3,
17440 Lassan
Auf Karte anzeigen
Finanzierungszertifikat
In nur zwei Minuten zu Ihrem persönlichen Finanzierungszertifkat.
Infos
| Haustyp | Besondere Immobilie |
|---|---|
| Etagenzahl | 2 |
| Wohnfläche ca. | 850 m2 |
| Nutzfläche | 850 m2 |
| Grundstücksfläche | 14.235 m2 |
| Zimmer | 43 |
Kosten
| Kaufpreis |
580.000 € |
|---|---|
| Provision | Nein |
Finanzierungsrechner:
Kaufpreis:
600.000 €
Eigenkapital:
600.000 €
Monatliche Rate
0 €
Effektiver Jahreszins
0 %
Sollzinsbindung
10 Jahre
Bausubstanz & Energieausweis
| Baujahr | 1900 |
|---|---|
| Letzte Sanierung | 2024 |
| Denkmalschutzobjekt | Ja |
| Objektzustand | Gepflegt |
| Qualität der Austattung | Einfach |
| Heizungsart | Gas-Heizung |
| Wesentliche Energieträger | Gas |
| Energieausweis | laut Gesetz nicht erforderlich |
Beschreibung des Objekts
Ausstattung
Ausstattung mit Charme und Funktion
Beheizung über Kachelöfen und Gasthermen
Isolierglasfenster, Solarstromanlage, die einen Teil des Hauses mit Strom versorgt, Wallbox für E-Fahrzeuge
Telefon- und Internetanschlüsse
Eigene Kläranlage, öffentliche Wasserversorgung
Teilunterkellerung und unausgebaute Dachböden
Sanierungsarbeiten 2010–2024:
Dach, Fassade, Heiztechnik
Lage
Lage im Naturparadies Lassaner Winkel.
Papendorf ist ein charmantes Dorf mit ca. 80 Einwohnern, zentral im ruhigen Lassaner Winkel gelegen, zwischen Wäldern, Badeseen und der Insel Usedom – ideal für naturnahen Tourismus abseits des Massentrubels.
Weitere Dokumente
2025 KÄUFER - Selbstauskunft MAdresse
Dorfplatz 3, 17440 Lassan
Interessante Orte
Preis- und Lageinformationen
Preistrend für Bestandsimmobilien in Pulow
>
>