Diese Villa wurde 1961 auf einem ca. 1.174 m² großen Grundstück errichtet. Sie bietet Wohnen in Münsters Bestlage.
Die Großzügigkeit dieser Villa in dieser einmaligen Lage wird durch die vielseitige Grundrissgestaltung unterstrichen. 9 Zimmer, davon 4-5 Schlafräume, 3 Bäder, Gäste-WC und Küche, sowie ein Schwimmbad mit Sauna und ein separates Teehaus
bieten ausreichend Platz.
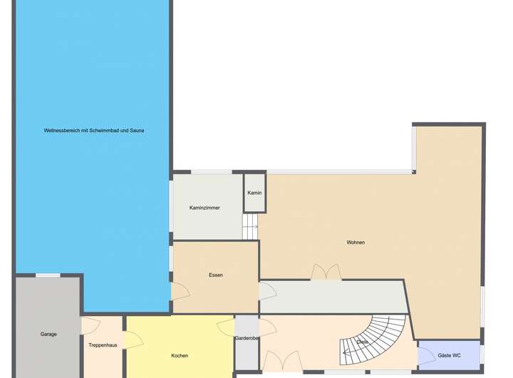
Im Erdgeschoss gelangt man über die mit Marmor ausgelegte Diele mit stylischem Marmor Gäste-WC zum einen, in die großzügige Küche zum anderen in den eleganten Wohn- / EssTrakt. Der von drei Seiten verglaste Kamin dient hier ebenso wie Splitt Level als Raumteiler. Durch bodentiefe Fenster und große Fensterflächen wird für eine angenehme Wohnatmosphäre
gesorgt.
Die Fensterfronten öffnen sich zur großen Terrasse und einem
parkähnlichen Südgarten hin. Die Großzügigkeit dieser Villa in dieser einmaligen Lage wird hierdurch nochmals unterstrichen.
Das separate Teehaus bietet verschiedene Nutzungsmöglichkeiten.
Fazit: Eine Villa mit Geschichte in Bestlage. Eine Kernsanierung ist
erforderlich.
Das Obergeschoss erreichen Sie von der Diele im Erdgeschoss
über eine großzügige Wendeltreppe mit Massivsteinstufen, es gliedert sich funktionell in zwei Hauptbereiche. Zum einen in einen Kinder-/Gästebereich mit zwei Zimmern und einem hellen
Bad sowie einem separaten WC, zum anderen in den Elternbereich. Dieser besteht aus einem Vorraum mit
Einbauschränken, einem Schlafzimmer mit Zugang auf einen großzügigen Balkon, einem Ankleidezimmer, ebenfalls mit hochwertigsten Einbauten sowie einem großen Badezimmer mit
Dusche, Badewanne und zwei Waschbecken.
Im Keller liegen neben dem HZR und der Haustechnik weitere vier Räume, davon u.a. ein Weinkeller und ein
Hauswirtschaftsraum mit Waschmaschine und Trockner sowie
einem großen Waschbecken.
Der Schwimmbadtrakt verfügt neben einer Sauna und Wärmekabine über eine Duschanlage und ein WC, beides in
Marmor.
Die Grundstücksgröße zum Kaufeigentum beträgt 1.174 m². Der
Boden- Richtwert liegt bei 1.200 €/m² (Stand 2024).
Zwei Garagen, davon eine mit direktem Zugang ins Haus, mit gepflasterter Vorfläche als weitere Stellplätze runden dieses einmalige Angebot ab.
St. Mauritz - Villa mit großem Entwicklungspotential
48155 Münster
Die vollständige Adresse der Immobilie erhalten Sie vom Anbieter.
Auf Karte anzeigen
Die vollständige Adresse der Immobilie erhalten Sie vom Anbieter.
Finanzierungszertifikat
In nur zwei Minuten zu Ihrem persönlichen Finanzierungszertifkat.
Infos
| Haustyp | Villa |
|---|---|
| Etagenzahl | 2 |
| Wohnfläche ca. | 427 m2 |
| Nutzfläche | 90 m2 |
| Grundstücksfläche | 1.174 m2 |
| Bezugsfrei ab | 01.05.2025 |
| Zimmer | 9 |
| Schlafzimmer | 5 |
| Badezimmer | 3 |
| Garage/Stellplatz | Garage |
| Anzahl Garage/Stellplatz | 3 |
Kosten
| Kaufpreis |
1.850.000 € |
|---|---|
| Preis für Garage/Stellplatz | 0 € |
| Provision |
3,57 % des Kaufpreises (inklusive der zurzeit gültigen Mehrwertsteuer) |
Finanzierungsrechner:
Kaufpreis:
600.000 €
Eigenkapital:
600.000 €
Monatliche Rate
0 €
Effektiver Jahreszins
0 %
Sollzinsbindung
10 Jahre
Bausubstanz & Energieausweis
| Baujahr | 1961 |
|---|---|
| Bauphase | Haus fertig gestellt |
| Objektzustand | Renovierungsbedürftig |
| Qualität der Austattung | Gehoben |
| Heizungsart | Zentralheizung |
| Wesentliche Energieträger | Gas |
| Energieausweis | liegt zur Besichtigung vor |
Beschreibung des Objekts
Ausstattung
-Schwimmbad und Sauna
-separates Teehaus
-Kamin
-Blau-schwarzer Marmor im Gäste WC
-Dach mit Schiefer eingedeckt
-Doppelgarage
-Einzelgarage
-Teich im Garten
Lage
St. Mauritz, eine der begehrtesten Wohnlagen im östlichen Teil der Stadt. Das gehobene Wohnumfeld prägt dieses Wohnviertel, hier befinden sich fast ausschließlich hochwertige
Einfamilienhäuser, Villen und parkähnliche Anlagen.
Eine sehr gute Infrastruktur mit Ärzten, Apotheke, Bank und Supermarkt, sowie drei Kindergärten und zwei Grundschulen und ein Gymnasium decken den täglichen Bedarf komplett ab.
Hervorzuheben bleibt noch der hohe Freizeitwert in St. Mauritz.
Der Tennisclub mit 500 Mitgliedern und über 100 Kindern und Jugendlichen ist ein beliebter Treffpunkt. Golfanlagen und Reitgestüte sind in unmittelbarer Nähe. Das angrenzende
Landschaftsschutzgebiet bietet die willkommene Erholung nach dem Stress des Alltags.
Sonstige Angaben
Hinweis:
Sehr geehrte Interesssenten und Interessentinnen, wir bitten um Verständninss, dass aufgrund von Weihnachtsferien und Jahreswechsel, Rückmeldungen und Besichtigungen erst ab dem 07. Januar 2026 möglich sind !!
Hinweis:
Alle Angaben sind ohne Gewähr und basieren ausschließlich auf den Informationen, die uns von unserem Auftraggeber übermittelt wurden, daher können wir keine Gewähr für die
Vollständigkeit, Richtigkeit und Aktualität dieser Angaben übernehmen,
Ein möglicher Zwischenverkauf bleibt vorbehalten.
Sollte Ihnen das von uns nachgewiesene Objekt bereits bekannt
sein, so teilen Sie uns dieses bitte unverzüglich mit. Die Weitergabe dieses Exposees an Dritte ohne unsere Zustimmung löst gegebenenfalls Courtage- bzw. Schadenersatzansprüche aus.
Der Energieausweis ist seitens der Eigentümer in Auftrag gegeben.
Gaszentralheizung.
Courtage:
Die Courtage in Höhe von 3,57% des Kaufpreises (inklusive der zurzeit gültigen Mehrwertsteuer) ist zahlbar vom Käufer / Erwerber an die SCHÖLLING IMMOBILIEN GmbH, fällig mit Abschluss des notariellen Kaufvertrages.
Der Makler – Vertrag mit uns und / oder unserem Beauftragten
kommt durch schriftliche Vereinbarung oder durch die
Inanspruchnahme unserer Maklertätigkeit auf der Basis des
Objekt- Exposés und unserer Geschäftsbedingungen zustande
Hinweis zum GWG.:
Liebe Kunden, die Schölling Immobilien GmbH ist nach §§ 1, 2 Abs. 1 Nr. 10, 4 Abs. 3 Geldwäschegesetz (GwG) dazu verpflichtet, vor Begründung einer Geschäftsbeziehung die Identität unserer Kunden festzustellen und zu überprüfen. Dafür müssen wir relevante
Daten Ihres Personalausweises festhalten – zum Beispiel mittels
einer Kopie. Gemäß § 8 Abs. 1 und 3 GwG, sind wir dazu verpflichtet, die eingeholten Informationen 5 Jahre
aufzubewahren. Bitte unterstützen Sie uns dabei, die Dokumentationspflicht nach dem Geldwäschegesetz zu erfüllen, indem Sie uns die entsprechenden Unterlagen zur Verfügung stellen.
Hinweis:
Bitte beachten sie Ihr Widerrufsrecht in unserem Impressum !
Adresse
48155 Münster
Interessante Orte
Preis- und Lageinformationen
Preistrend für Bestandsimmobilien in Mauritz-Ost