Viele Extras standartmäßig bei einer Nettogrundfläche von 175m².
Ein Haus mit viel Platz um Ihre Ideen zu verwirklichen. Der Keller ist optional möglich.
Serienmäßig mehr Freiraum für kreative Baufamilien.
Dieses attraktive Niedrigenergiespar-Haus erfüllt alle Anforderungen, die eine Familie an Platz und Ausstattung stellt und ist ideal für diejenigen, die mit Eigenleistungen Geld sparen möchten.
Das Angebot beinhaltet:
- Das Haus mit Bodenplatte von außen fix und fertig, inkl. Rollläden
- Das Baugrundstück mit Kaufnebenkosten.
- Luft-Wasser-Wärmepumpe mit Fußbodenheizung*
- Kontrollierter Be- und Entlüftung
- Komplette Hauselektrik sowie alle Sanitärleitungen
- Die Innentreppe
- KfW 55 Standard - Nutzen Sie das 100.000,00 Euro Darlehensprogramm.
- Inkl. Baugrunduntersuchung!
- Inkl. Blower-Door-Test!
- Bauherren-Haftpflicht / Bauleistungsversicherung / Feuer-Rohbauversicherung
- Wohngebäudeversicherung für das erste Jahr!
Veränderte Raumaufteilungen sind ganz nach Kundenwunsch möglich! Planen Sie mit uns genau Ihr TRAUMHAUS!
Die Bauweise entspricht der neusten EnEV und besticht durch ein sehr gutes Preis- / Leistungsverhältnis. Im Kaufpreis enthalten sind das Baugrundstück, die Bodenplatte, sowie das traumhafte Ausbauhaus, von außen fix und fertig, inkl. Haustür, 3-fach verglaste Fenster, Rollläden, Dachrinne, Dacheindeckung, weißem Außenputz und Architektenleistungen. Dazu Innentreppenanlage, Heizung und Elektro inkl. Montage. Von Profis für Sie zum einfachen Innenausbau vorbereitet. Zuzüglich Innenausbau und Baunebenkosten. Gerne bieten wir Ihnen das Haus auch in unserer bewährten Fast-Fertig-Option an - fragen Sie uns danach. Projektiertes Ausbauhaus mit Bodenplatte. Baubeginn und Fertigstellung nach Absprache.
Achtung: Um die vielfältigen Möglichkeiten unserer Häuser auf zu zeigen, können einzelne Abbildungen Sonderausstattungen enthalten, die gegen Aufpreis jederzeit möglich sind.
Bei der Raumaufteilung bieten wir Ihnen viele Möglichkeiten. Ein Beispielgrundriss ist beigefügt, aber prinzipiell planen und bauen wir Ihr Traumhaus genauso, wie Sie es sich immer erträumt haben.
Die Details besprechen wir gemeinsam.
Besichtigungstermine nach Vereinbarung.
* Andere Heizungsarten sind selbstverständlich möglich!
Charmantes Eigenheim in toller Umgebung
67659 Kaiserslautern
Die vollständige Adresse der Immobilie erhalten Sie vom Anbieter.
Auf Karte anzeigen
Die vollständige Adresse der Immobilie erhalten Sie vom Anbieter.
Finanzierungszertifikat
In nur zwei Minuten zu Ihrem persönlichen Finanzierungszertifkat.
Infos
| Haustyp | Einfamilienhaus |
|---|---|
| Etagenzahl | 2 |
| Wohnfläche ca. | 175 m2 |
| Nutzfläche | 175 m2 |
| Grundstücksfläche | 892 m2 |
| Zimmer | 7 |
| Schlafzimmer | 3 |
| Badezimmer | 2 |
Kosten
| Kaufpreis |
514.800 € |
|---|---|
| Provision | Nein |
Finanzierungsrechner:
Kaufpreis:
600.000 €
Eigenkapital:
600.000 €
Monatliche Rate
0 €
Effektiver Jahreszins
0 %
Sollzinsbindung
10 Jahre
Bausubstanz & Energieausweis
| Baujahr | unbekannt |
|---|---|
| Bauphase | Haus in Planung (projektiert) |
| Objektzustand | Erstbezug |
| Qualität der Austattung | Gehoben |
Beschreibung des Objekts
Ausstattung
Als Bauherr die Architektenleistung individuell gestalten
Das attraktive Ausbauhaus-Programm von massahaus überzeugt bei allen Haustypen mit moderner Architektur. Sie interessieren sich für ein Einfamilienhaus. Bauen Sie mit massahaus ihr ganz persönliches Fertighaus ganz nach Wunsch, selbstverständlich als Effizienzhaus: So sparen Sie Energie und Geld - für Ihr Plus bei der Hausausstattung!
- Architektenleistung
- Feinputz, außen
- Alle Innenwände
- Rollläden
- Vierfach Versicherungsschutz
- Freiraum-Upgrade
FLEXIBLE RAUMORGANISATION, UNGEWÖHNLICHE LÖSUNGEN
Individuelles Wohnen auf einer Nettogrundfläche ab ca. 174 m²! Unser spannendes LifeStyle 17 bietet dafür nicht nur die passende, attraktive Außenansicht, sondern auch einen - unter Einbezug der schönen Freiterrasse - nahezu quadratischen Grundriss. Und damit die ideale Voraussetzung für eine flexible Raumorganisation, die sich optimal an persönlichen Vorstellungen und Gegebenheiten orientieren kann. So kann beispielsweise das großzügige Elternzimmer mit separatem Bad und WC sowie direktem Zugang zur Außenterrasse auch einmal im Erdgeschoss untergebracht werden.
Lage
Morlautern, ein Stadtteil von Kaiserslautern liegt etwa 1,5 km nördlich der Stadt. Der Stadtteil bietet Werktags über den ÖPNV der Line 112 eine ½ stündige Anbindung an Kaiserslautern. Der Ort bietet einen Kindergarten, Grundschule und auch eine Bäckerei.
Sonstige Angaben
AUSSERDEM BIETEN WIR IHNEN:
- Finanzierungsservice (auch ohne Eigenkapital ist bei uns das bauen möglich)**
- Grundstücksservice
- Sicherheit eines Großunternehmens mit Top Qualität
- Ohne Vorauszahlungen, Bezahlung nach Abnahme
- 15 Monate Festpreisgarantie
- Professionelle Bauberatung und persönliche Baubetreuung
**Bonitätsabhängig.
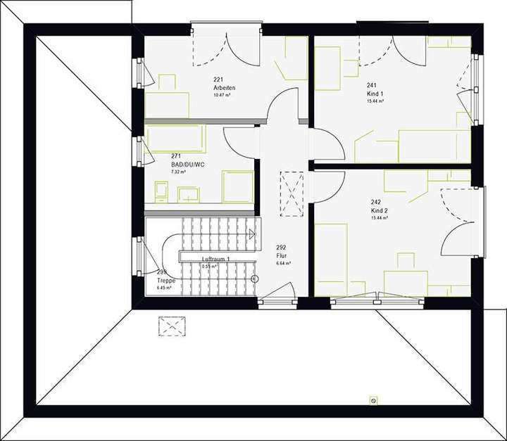
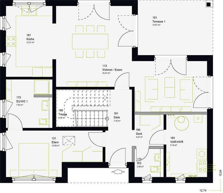
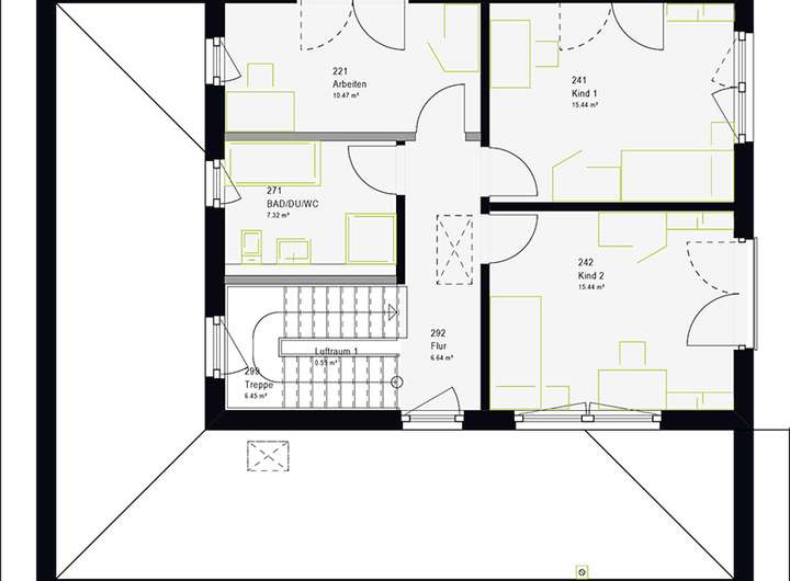
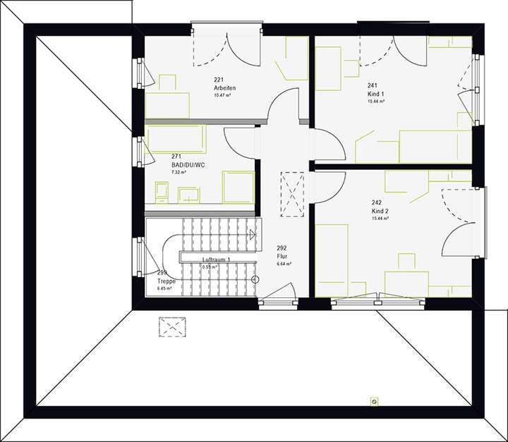
Grundriss
Beispiel Grundriss EG
>
>
Beispiel Grundriss DG
>
>
Beispiel Grundriss EG
>
>
Beispiel Grundriss DG
>
>
Adresse
67659 Kaiserslautern
Interessante Orte
Preis- und Lageinformationen
Preistrend für Bestandsimmobilien in Morlautern