Hiermit offerieren wir Ihnen eine Kaufgelegenheit mit beeindruckenden Eckdaten und Kennzahlen, die Sie kein zweites Mal auf dem Immobilienmarkt finden werden – überzeugen Sie sich selbst!
Bereits das 4.101 m² große Grundstück, bei dem es sich selbstverständlich um ein Eigentumsgrundstück handelt, hätte durch den aktuellen Bodenrichtwert von ca. 170 €/m² einen Gegenwert von ca. 700.000,00 €. Mit der bestehenden Bebauung bietet es Ihnen eine enorme Wohn- und Nutzfläche von ca. 1.829,32 m². Sie haben somit die seltene Gelegenheit, dieses Immobilienpaket, bestehend aus einem großzügigen Lager-/Produktionshallenkomplex und einem gepflegten Einfamilienhaus, für nur ca. 519 €/m² Fläche zu erwerben. Ausreichend Stellplätze, Flächen zum Rangieren und ein großer Garten für das Einfamilienhaus stehen ebenfalls zur Verfügung. Hier sollten Sie schnell zuschlagen!
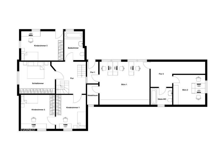
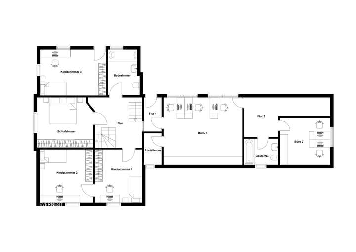
Das Einfamilienhaus, ursprünglich 1913 errichtet, wurde über die Jahre durch Um- und Anbauten erweitert und bietet inzwischen ca. 210,70 m² Wohnfläche. Diese erstreckt sich über zwei Etagen. Ein zusätzlicher Spitzboden und einen Teilkeller stehen zur Verfügung. Dank fortlaufender Renovierungsarbeiten, einschließlich einer neuen Heizungsanlage und Dachdämmung, präsentiert sich das Haus in einem gepflegten Zustand.
Der Lager-/Produktionshallenkomplex stammt aus dem Jahr 1919 und wurde ebenfalls kontinuierlich erweitert. Mit einer Nutzfläche von ca. 1.618,62 m² verteilt auf drei Ebenen bietet er umfangreiche Annehmlichkeiten: diverse Sanitärräume, mehrere Zugänge (Türen und Sektionaltore), Büroräume, Personalräume sowie einen überdachten Be- und Entladebereich.
Der Eigentümer möchte aus persönlichen Gründen seinen Betrieb zeitnah einstellen oder übergeben. Dadurch ergeben sich vielseitige Nutzungsmöglichkeiten: vollständige Eigennutzung, Teilvermietung oder vollständige Vermietung als Kapitalanlage. Ideal für jedes Konzept und jede Zielgruppe – hier lassen sich Wachstum und individuelle Ideen perfekt umsetzen.
Eine Vollvermietung des gesamten Immobilienpakets als reine Kapitalanlage bietet Ihnen, basierend auf den aktuell am Markt befindlichen Quadratmeterpreisen vergleichbarer Objekte, eine mögliche Kaltmiete von bis zu ca. 8.161,00 € im Monat bzw. ca. 97.932,00 € im Jahr. Dies entspricht einem Faktor von ca. 9,69 und einer Rendite von ca. 10,31 %. Ein Traum für jedes Immobilienportfolio!
Zurzeit ist eine Fläche von ca. 300 m² Nutzfläche vermietet. Hier wird eine Kaltmiete von ca. 12.000,00 € im Jahr erzielt. Der Mietvertrag wurde 2023 geschlossen. Sämtliche weiteren Flächen werden auf Wunsch besenrein, geräumt und leer übergeben.
Nutzen Sie diese Gelegenheit und sichern Sie sich dieses vielseitige Immobilienpaket – wir stehen Ihnen für Fragen und Besichtigungen jederzeit zur Verfügung!
Energieausweis Wohnhaus:
Energiebedarfsausweis, Gas, G, 239,7 kWh/(m²*a), Bj. 1913, Bj. Heizung 2024, gültig bis 13.11.2034
Energieausweis Gewerbe:
Der Energieausweis befindet sich zurzeit in Bearbeitung!
Kaufen, nutzen, wachsen – oder einfach nur kassieren!
32051 Herford
Die vollständige Adresse der Immobilie erhalten Sie vom Anbieter.
Auf Karte anzeigen
Die vollständige Adresse der Immobilie erhalten Sie vom Anbieter.
Finanzierungszertifikat
In nur zwei Minuten zu Ihrem persönlichen Finanzierungszertifkat.
Infos
| Haustyp | Sonstige |
|---|---|
| Etagenzahl | 3 |
| Wohnfläche ca. | 1.830 m2 |
| Grundstücksfläche | 4.101 m2 |
| Zimmer | 38 |
| Schlafzimmer | 4 |
| Badezimmer | 1 |
| Garage/Stellplatz | Außenstellplatz |
| Anzahl Garage/Stellplatz | 10 |
Kosten
| Kaufpreis |
949.000 € |
|---|---|
| Provision |
5.95 % inkl. MwSt. Bei Abschluss eines notariellen Kaufvertrages ist eine Käuferprovision vom Käufer in Höhe von 5.95 % inkl. MwSt. aus dem Kaufpreis fällig. |
Finanzierungsrechner:
Kaufpreis:
600.000 €
Eigenkapital:
600.000 €
Monatliche Rate
0 €
Effektiver Jahreszins
0 %
Sollzinsbindung
10 Jahre
Bausubstanz & Energieausweis
| Baujahr | 1913 |
|---|---|
| Objektzustand | Gepflegt |
| Qualität der Austattung | Normal |
| Heizungsart | Zentralheizung |
| Wesentliche Energieträger | Gas |
| Energieausweis | liegt vor |
| Energieausweistyp | Bedarfsausweis |
| Energieeffizienzklasse | G |
Energieeffizienzklasse G
- A+
- A
- B
- C
- D
- E
- F
- G
- H
- 0
- 25
- 50
- 75
- 100
- 125
- 150
- 175
- 200
- 225
- >250
Beschreibung des Objekts
Ausstattung
Die Highlights im Überblick:
- Top-Quadratmeterpreis von nur ca. 519,00€/m²
- neue Heizungsanlage im EFH
- variable Nutzungsmöglichkeiten
- riesiges Grundstück mit großem Garten für das EFH
- diverse Stellplätze auf dem Grundstück
- überdachter Be- und Entladebereich
- Faktor 9,69 denkbar
- EFH und Gewerbefläche baulich voneinander getrennt
- sehr gute Vermietbarkeit
- perfekte Infrastruktur
- sehr gute Verkehrsanbindung
- mögliche Rendite bei Vollvermietung ca. 10,31 %
- SOLL-Miete von ca. 97.932,00 € (Jahr) realisierbar
Lage
Herford ist eine charmante Stadt in Nordrhein-Westfalen, zentral gelegen zwischen Bielefeld und Hannover. Mit rund 65.000 Einwohnern vereint sie Historie und Moderne auf eindrucksvolle Weise. Die Altstadt mit ihren Fachwerkhäusern, das international renommierte MARTa-Museum sowie ein vielfältiges Freizeit- und Bildungsangebot machen Herford zu einem attraktiven Ort zum Leben und Arbeiten. Wirtschaftlich profitiert die Stadt von ihrer Lage in der Region Ostwestfalen-Lippe, die als bedeutender Wirtschaftsraum gilt.
Das Stadtzentrum überzeugt durch eine lebendige Mischung aus Einkaufsmöglichkeiten, Gastronomie und kulturellen Einrichtungen. Fußgängerzonen, gemütliche Plätze und die gute Erreichbarkeit sorgen für ein hohes Maß an Aufenthaltsqualität. Sowohl Bewohner als auch Besucher schätzen die moderne Infrastruktur und die kurzen Wege zu allen wesentlichen Einrichtungen des täglichen Bedarfs.
Der Stadtteil Herford-Eickum liegt im westlichen Teil der Stadt und bietet eine ausgewogene Kombination aus Wohn- und Gewerbegebieten. Die Umgebung ist geprägt von einer ruhigen und grünen Atmosphäre, die besonders Familien und naturverbundene Menschen anspricht. Mit Kindergärten, Schulen, Ärzten und Einkaufsmöglichkeiten direkt vor Ort erfüllt der Stadtteil alle Anforderungen für ein angenehmes Leben.
Dank der hervorragenden Verkehrsanbindung ist Eickum ideal mit der Umgebung vernetzt. Die Autobahnen A2 und A30 sind in wenigen Minuten erreichbar und verbinden den Standort mit Städten wie Bielefeld, Osnabrück und Hannover. Der Bahnhof Herford bietet Anschluss an das regionale und überregionale Schienennetz, während der ÖPNV eine komfortable Verbindung innerhalb der Stadt sicherstellt. Zudem liegt der internationale Flughafen Hannover in Reichweite und ist in weniger als einer Stunde Fahrzeit erreichbar.
Hier eine kleine Übersicht:
Herford Zentrum - 5,1 km
Bielefeld Zentrum - 12,0 km
Minden Zentrum - 32,7 km
Auffahrt B239 - 3,2 km
Auffahrt B61 - 3,2 km
Auffahrt A2 - 9,8 km
Grundriss
Erdgeschoss
>
>
1.Obergeschoss
>
>
Kellergeschoss
>
>
Adresse
32051 Herford
Interessante Orte
Preis- und Lageinformationen
Preistrend für Bestandsimmobilien in Herford