Wohn- und Entwicklungspotenzial im Doppelpack – seltene Gelegenheit in Rastatt
In zentraler Lage von Rastatt erwartet Sie ein besonderes Immobilienpaket: ein großzügiges Mehrfamilienhaus (ca. 459m² Wohn- und Nutzfläche) mit drei Wohneinheiten plus Gewerbeeinheit (kann zu Wohnzwecken umgebaut werden) sowie ein direkt angrenzendes Grundstück mit Lagerhalle (nähere Angaben unter "Ausstattung").
Ob Sanierung und Vermietung des bestehenden Wohnhauses, Neubau im hinteren Bereich oder eine komplette Neuentwicklung des gesamten Areals – hier verbinden sich Bestand und Entwicklungspotenzial zu einer seltenen Gelegenheit für Investoren, Bauträger oder Eigennutzer mit Weitblick.
Wohnhaus (Bj. ca. 1900):
Das dreigeschossige Wohn- und Geschäftshaus beeindruckt durch seinen klassischen Altbaustil mit hohen Decken von ca. 3 Metern, massives Mauerwerk auf einem soliden Bruchsteinfundament und einem Walmdach. Die Fassade zur Straßenseite verleiht dem Gebäude ein historisches Flair.
Das Wohnhaus bietet drei großzügige, vermietete Wohnungen, deren Mietverträge in den letzten fünf Jahren abgeschlossen wurden. Alle Wohnungen sind durch ihre Raumzuschnitte und die hohe Deckenhöhe attraktiv.
Werkstatt/Lagerhalle:
In zweiter Reihe befindet sich die zweigeschossige Werkstatt mit Keller. Sie wurde in massiver Bauweise aus Beton, Hohlblock- und Ziegelmauerwerk errichtet und verfügt über ein flaches Blechdach. Die Immobilie bietet vielseitige Nutzungsmöglichkeiten, sei es für Lagerzwecke, Produktion oder als Werkstatt.
Zwei Grundstücke – viele Möglichkeiten: Mehrfamilienhaus + Baufläche im Paket
76437 Rastatt
Die vollständige Adresse der Immobilie erhalten Sie vom Anbieter.
Auf Karte anzeigen
Die vollständige Adresse der Immobilie erhalten Sie vom Anbieter.
Finanzierungszertifikat
In nur zwei Minuten zu Ihrem persönlichen Finanzierungszertifkat.
Infos
| Vermarktungsart | Kaufen |
|---|---|
| Grundstücksfläche | 1.028 m2 |
| Erschließung | Erschlossen |
| Empfohlene Nutzung | Mehrfamilienhaus |
| Bebaubar nach | wie Nachbarbebauung |
| Verfügbar ab | nach Vereinbarung |
Kosten
| Miete pro Jahr |
1.190.000 € |
|---|---|
| Provision |
3,57 % |
Finanzierungsrechner:
Kaufpreis:
600.000 €
Eigenkapital:
600.000 €
Monatliche Rate
0 €
Effektiver Jahreszins
0 %
Sollzinsbindung
10 Jahre
Beschreibung des Objekts
Lage
Die Wohngegend besticht durch ihre praktische und naturnahe Lage. Mit dem nahegelegenen Rheinauen-Gebiet & dem Schnapspark haben Naturliebhaber und Familien Zugang zu wunderschönen Grünflächen, die sich hervorragend für Spaziergänge, Fahrradtouren und entspannte Nachmittage im Freien eignen. Hier erleben Sie die Natur direkt vor der Haustür, ohne auf die Annehmlichkeiten einer Stadt verzichten zu müssen.
Die Verkehrsanbindung ist ausgezeichnet: Die Rastatter Innenstadt ist in wenigen Minuten erreichbar, und auch die Autobahn A5 liegt nur eine kurze Fahrt entfernt. Über den Bahnhof Rastatt, der ebenfalls gut erreichbar ist, profitieren Berufspendler von einer bequemen Zuganbindung in Richtung Karlsruhe, Baden-Baden und darüber hinaus. Somit ist dieser Standort ideal für all jene, die eine ruhige Wohnlage bevorzugen, aber gleichzeitig eine schnelle Anbindung an das städtische Leben schätzen.
Die Immobilie liegt in einem gut entwickelten Wohngebiet mit einer Vielzahl an Geschäften, Supermärkten, Apotheken und anderen Einrichtungen des täglichen Bedarfs in der Nähe. Kindergärten, Schulen und Sporteinrichtungen sind ebenfalls schnell erreichbar, sodass sich der Standort besonders gut für Familien eignet. Zudem bieten zahlreiche Restaurants und Cafés in der Umgebung kulinarische Abwechslung und laden zu entspannten Stunden ein.
Die Lage vereint städtischen Komfort mit naturnaher Lebensqualität – eine erstklassige Wahl für alle, die in Rastatt ein neues Zuhause mit hoher Lebensqualität suchen.
Sonstige Angaben
- aktuelle Mieteinnahmen (kalt) 3-Familienhaus -
Wohnung EG: 585,- Euro
Wohnung 1.OG: 560,- Euro
Wohnung 2.OG: 650,- Euro
Hat dieses Projekt Ihr Interesse geweckt oder haben Sie Fragen?
Dann rufen Sie uns an, wir stehen Ihnen sehr gerne zur Verfügung und vereinbaren einen persönlichen Besichtigungstermin.
Ihr Team von Suchanek & Hartmann Immobilien
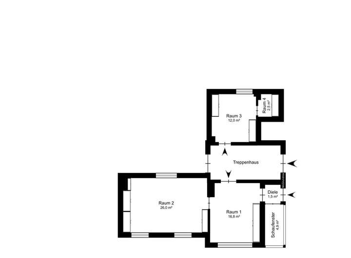
Grundriss
Erdgeschoss Wohnen
>
>
Erdgeschoss Laden
>
>
1. Obergeschoss
>
>
2. Obergeschoss
>
>
Erdgeschoss Werkstatt
>
>
Obergeschoss Werkstatt
>
>
Kellergeschoss Werkstatt
>
>