Dieses familienfreundliche Einfamilienhaus wurde im Jahr 1970 auf einem Grundstück von ca. 533 Quadratmetern errichtet. Mit einer Wohnfläche von ca. 165 Quadratmetern erstreckt sich die Immobilie über zwei Etagen und bietet Platz auf vier Zimmer und je zwei halbe Zimmer sowie drei modernen Badezimmern. Vom Eingangsbereich gelangen Sie in den großzügigen Wohn- und Essbereich mit einem Kamin, der an kühlen Abenden für wohlige Wärme sorgt. Das durchdachte Raumkonzept umfasst ein komfortables Schlafzimmer, ein Gästeduschbad sowie ein halbes Zimmer, ideal als Arbeitszimmer geeignet. Der direkte Zugang zum Garten lädt zu geselligen Stunden im Freien ein.
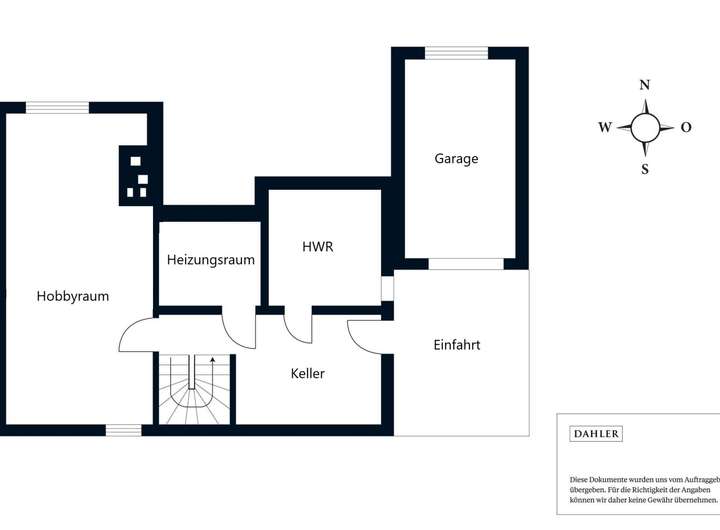
Im Obergeschoss erwarten Sie drei geschmackvoll geschnittene Räume, von denen einer mit einem Balkon ausgestattet ist. Das Schlafzimmer verfügt über eine großzügige, zum Garten hin ausgerichtete Wintergarten, die eine ruhige und entspannende Atmosphäre schafft. Das Arbeitszimmer, ebenfalls nach Süden ausgerichtet, bietet in den Pausen einen malerischen Blick auf die Natur. Die obere Etage wird durch zwei komfortable, tagesbelichtete Bäder ergänzt. Ein besonderes Highlight des Hauses ist das große Dachkuppelfenster im Treppenhaus, das dem gesamten Raum ein einzigartiges Flair verleiht. Der geräumige Keller mit einer Nutzfläche von ca. 99 Quadratmeter verfügt über zwei gut geschnittene Räume: als Hobbyraum, Büro oder Sauna. Auf dem Dach sorgt eine Photovoltaikanlage für nachhaltige Energieerzeugung. Abgerundet wird das Angebot mit einer sanierten Garage und einer E-Ladestation für Ihr Fahrzeug.
Freistehendes Einfamilienhaus in idyllischer Wald- und Wassernähe
13503 Berlin
Die vollständige Adresse der Immobilie erhalten Sie vom Anbieter.
Auf Karte anzeigen
Die vollständige Adresse der Immobilie erhalten Sie vom Anbieter.
Finanzierungszertifikat
In nur zwei Minuten zu Ihrem persönlichen Finanzierungszertifkat.
Infos
| Haustyp | Einfamilienhaus |
|---|---|
| Etagenzahl | 2 |
| Wohnfläche ca. | 165 m2 |
| Nutzfläche | 99,19 m2 |
| Grundstücksfläche | 533 m2 |
| Zimmer | 4,5 |
| Schlafzimmer | 3 |
| Badezimmer | 3 |
| Garage/Stellplatz | Außenstellplatz |
| Anzahl Garage/Stellplatz | 1 |
Kosten
| Kaufpreis |
750.000 € |
|---|---|
| Provision |
3,57 % inkl. gesetzlicher MwSt. bezogen auf den Kaufpreis |
Finanzierungsrechner:
Kaufpreis:
600.000 €
Eigenkapital:
600.000 €
Monatliche Rate
0 €
Effektiver Jahreszins
0 %
Sollzinsbindung
10 Jahre
Bausubstanz & Energieausweis
| Baujahr | 1970 |
|---|---|
| Objektzustand | Gepflegt |
| Qualität der Austattung | Normal |
| Heizungsart | Zentralheizung |
| Wesentliche Energieträger | Gas |
| Energieausweis | liegt vor |
| Energieausweistyp | Bedarfsausweis |
| Energieverbrauchskennwert | 186,0 kWh/(m²*a) |
| Energieeffizienzklasse | F |
186,0
kWh/(m²*a)
Energieeffizienzklasse F
- A+
- A
- B
- C
- D
- E
- F
- G
- H
- 0
- 25
- 50
- 75
- 100
- 125
- 150
- 175
- 200
- 225
- >250
Beschreibung des Objekts
Ausstattung
• 4 Zimmer und je zwei halbe Zimmer
• 3 Schlafzimmer
• Offene Einbauküche der Firma Dassbach mit Siemensgeräten
• 3 Badezimmer (Wannenbad mit Fenster, Duschbad mit Doppelwaschtisch, Gästeduschbad)
• Echtholzparkett im Erdgeschoss, Laminat im Obergeschoss
• Kamin im Wohnbereich
• Neues Dachkuppelfenster im Treppenbereich
• Wintergarten und Balkon im Schlafzimmer mit Südausrichtung
• Terrasse mit Außenkamin in Südausrichtung
• Gespachtelte Wände
• Deckenhöhe ca. 2,80 Meter
• Doppelverglaste Aluminiumfenster
• Elektrische Jalousien
• Hauswirtschaftsraum sowie großzügiger Hobbyraum im Kellergeschoss
• Photovoltaikanklage
• Garagenstellplatz mit E-Ladestation
• Gastherme
• Neuer Gartenzaun im Vorderbereich
Lage
Heiligensee ist ein zentral gelegener Ortsteil des nördlichen Berliner Bezirks Reinickendorf. Im Westen wird Heiligensee durch den Tegeler Forst begrenzt, einem Ausflugsgebiet zum Wandern, Radfahren und Spazierengehen. Östlich grenzen die ebenfalls idyllischen Ortsteile Frohnau und Tegel an Heiligensee an, im Norden reicht der Ortsteil bis zur brandenburgischen Gemeinde Glienicke/Nordbahn.
Als typischer Berliner Villenvorort präsentiert Heiligensee viele gepflegte, teilweise im Bauernstil erhaltene Einfamilienhäuser und repräsentative Villen aus der Gründerzeit. Trotz seiner Abgeschiedenheit bietet der Ort eine Menge Komfort: Nahe am Ortszentrum rund um findet man vom Supermarkt, über Bars, Cafés und Restaurants bis zur Apotheke und zum Friseur alles, was zu einem relaxten Wohnen in ruhiger Lage gehört. Darüber hinaus laden das Naturschutzgebiet Tegeler Forst und der Heiligensee mit ihren artenreichen Wasservegetationen zu Entspannung und Erholung ein.
Vom Bahnhof Schulzendorf gelangt man mit der S-Bahn bequem und rasch in die Berliner Innenstadt, ebenso mit verschiedenen Buslinien, die innerhalb kürzester Zeit unter anderem zum Verkehrsknotenpunkt U-Bahnhof Alt-Tegel und zum Berliner Hauptbahnhof führen. Mit dem PKW erreicht man über die Anschlussstelle Hermsdorfer Damm problemlos die Autobahn, über die Berliner Straße (B 96) die City-Bezirke und alle weiteren Gegenden der Stadt.
Grundriss
Grundriss Erdgeschoss
>
>
Grundriss Obergeschoss
>
>
Grundriss Untergeschoss
>
>
Adresse
13503 Berlin
Interessante Orte
Preis- und Lageinformationen
Preistrend für Bestandsimmobilien in Heiligensee (Reinickendorf)