Auf dem ca. 859 m² großen Grundstück wurde ein Doppelhaus mit einer Doppelgarage im typischen friesischen Baustil errichtet.
Das Haus 1 hat eine Größe von ca. 174 m², das Haus 2 hat eine Größe von ca. 167 m². Es sind nur erlesene und hochwertige Materialien, z. B. Limestone oder XL -3-Schicht Holzdielen verwendet.
Im Eingangsbereich befindet sich das Gäste-WC und die integrierte Diele mit ausreichend Platz für die Garderobe. Das angrenzende Wohnzimmer mit dem Essbereich ist durch die großzügigen Fenster bzw. Terrassenelemente sehr lichtdurchflutet. Die separat wirkende Einbauküche ist mit allen notwendigen Geräten ausgestattet. Im Wohnzimmer befindet sich der bauseits mitgelieferte Gaskamin. Die vorgelagerten Terrassen sind westlich, bei Haus 1 auch südlich, ausgerichtet. Die Gartenflächen sind mit einer sylttypischen Erstbepflanzung versehen. Die freien Flächen haben einen Rollrasen erhalten.
Das Obergeschoss von Haus 1 verfügt über zwei Schlafzimmer sowie einem großen Bad mit zusätzlicher Wanne. Bei dem Haus 2 ist auf der Etage das Elternschlafzimmer als auch ein Kinderzimmer gelegen. Ferner ist hier ein Duschbad mit WC sowie ein separates WC. Ein weiteres, genehmigtes, Schlafzimmer mit Bad en Suite befindet sich im Untergeschoss.
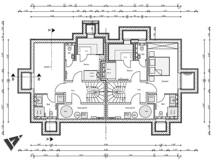
Dort befindet sich von Haus 2 eine Sauna, die bauseits eingebaut ist, sowie die Haustechnik. Im Haus 1 befindet sich auf dieser Etage ein Abstellraum sowie ein Duschbad. Auch hier befindet sich eine bauseits gelieferte Sauna. Der Technikraum ist ebenfalls auf dieser Ebene angesiedelt. In jedem Haus befindet sich im Bad jeweils ein Waschmaschinenanschluss.
Im Spitzboden, der durch eine Treppe erreichbar ist, befindet sich ein weiterer Raum.
Das gesamte Haus ist mit einer Fußbodenheizung ausgestattet. In den Bädern sind zusätzlich Handtuchheizkörper vorhanden. Die Fußleisten sind aus einer Holzprofilleiste im „Hamburger Profil“ erstellt. In den Bädern werden die Sockelleisten aus den Fußbodenfliesen erstellt. Alle freien Wand- und Deckenflächen sind mit einem feinen Malervlies versehen und deckend weiß gestrichen. Die genauen Details entnehmen Sie bitte der Bau- und Leistungsbeschreibung.
Das Haus 1 verfügt über eine Garage, Haus 2 hat einen Stellplatz am Haus sowie eine eigene Garage.
Sylt/Wenningstedt Doppelhaushälfte unter Reet -Neubau_
Normannenweg 10a,
25996 Wenningstedt-Braderup (Sylt)
Auf Karte anzeigen
Finanzierungszertifikat
In nur zwei Minuten zu Ihrem persönlichen Finanzierungszertifkat.
Infos
| Haustyp | Doppelhaushaelfte |
|---|---|
| Etagenzahl | 4 |
| Wohnfläche ca. | 169 m2 |
| Nutzfläche | 169 m2 |
| Grundstücksfläche | 859 m2 |
| Bezugsfrei ab | 2023 |
| Zimmer | 6 |
| Schlafzimmer | 2 |
| Badezimmer | 2 |
| Garage/Stellplatz | Außenstellplatz |
| Anzahl Garage/Stellplatz | 2 |
Kosten
| Kaufpreis |
3.195.000 € |
|---|---|
| Provision |
3 % vom Kaufpreis inkl. MwSt. vom Käufer zu zahlen. |
Finanzierungsrechner:
Kaufpreis:
600.000 €
Eigenkapital:
600.000 €
Monatliche Rate
0 €
Effektiver Jahreszins
0 %
Sollzinsbindung
10 Jahre
Bausubstanz & Energieausweis
| Baujahr | 2022 |
|---|---|
| Bauphase | Haus im Bau |
| Objektzustand | Erstbezug |
| Qualität der Austattung | Gehoben |
| Heizungsart | Wärmepumpe |
| Energieausweis | liegt vor |
| Energieausweistyp | Bedarfsausweis |
| Energieverbrauchskennwert | 19,2 kWh/(m²*a) |
| Energieeffizienzklasse | A+ |
19,2
kWh/(m²*a)
Energieeffizienzklasse A+
- A+
- A
- B
- C
- D
- E
- F
- G
- H
- 0
- 25
- 50
- 75
- 100
- 125
- 150
- 175
- 200
- 225
- >250
Beschreibung des Objekts
Lage
Wenningstedt, der Familienort der Insel, verfügt an der Westküste über einen Kilometer langen Sandstrand. Der sehr bekannte Einkaufsmarkt „Feinkost-Meyer“ ist in wenigen Gehminuten erreichbar. Dort befindet sich auch ein Bäcker.
Grundriss
Erdgeschoss
>
>
Untergeschoss
>
>
Dachgeschoss
>
>
Spitzboden
>
>
Adresse
Normannenweg 10a, 25996 Wenningstedt-Braderup (Sylt)
Interessante Orte
Preis- und Lageinformationen
Preistrend für Bestandsimmobilien in Wenningstedt-Braderup (Sylt)