Zum Verkauf steht ein einzigartiges Hanggrundstück, das bereits mit einer durchdachten Planung für vier Reihenhäuser überzeugt. Die Grundstücksfläche bietet eine ideale Grundlage für ein modernes Wohnkonzept mit vielseitigen Gestaltungsmöglichkeiten. Hier haben Sie die Chance, eine Immobilie zu erstellen, die sich perfekt in die Umgebung einfügt und gleichzeitig den individuellen Ansprüchen der zukünftigen Bewohner gerecht wird.
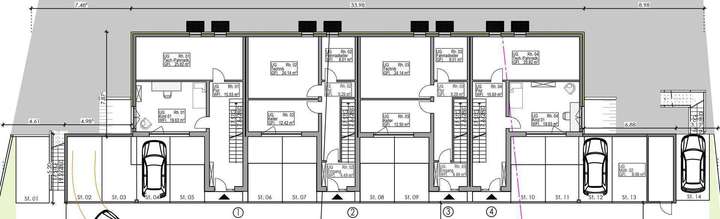
Die geplanten Reihenhäuser verfügen über einen nahezu ähnlichen Grundriss und sind optimal für Familien, Paare oder als attraktive Kapitalanlage geeignet. Der Zugang zu jedem Haus erfolgt bequem über das Untergeschoss. Im Erdgeschoss befindet sich der großzügige Wohn- und Essbereich mit einer modernen offenen Gestaltung sowie einer separaten Toilette. Von hier aus gelangen Sie auf die Terrasse, die zum Verweilen einlädt, sowie auf eine mögliche zweite, höher gelegene Terrasse mit angrenzendem Gartenbereich im Hang.
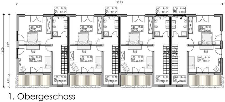
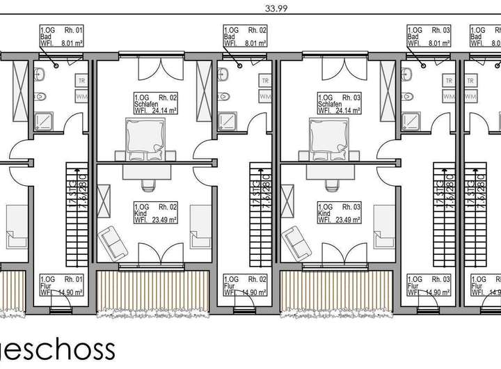
Das Obergeschoss bietet zwei helle und freundliche Schlafräume sowie ein stilvoll gestaltetes Badezimmer. Die Reiheneckhäuser haben im Untergeschoss ein weiteres Zimmer. Diese Raumaufteilung sorgt für ein harmonisches und komfortables Wohnerlebnis.
Ein besonderer Vorteil dieser Planung: Der Käufer hat die Möglichkeit, noch individuelle Anpassungen vorzunehmen und die Häuser so nach eigenen Vorstellungen zu gestalten.
Nutzen Sie diese einmalige Gelegenheit, ein durchdachtes Projekt in bevorzugter Lage zu realisieren und profitieren Sie von der Nachfrage nach modernen, gut geschnittenen Wohnimmobilien.
Kontaktieren Sie uns um weitere Details zu diesem außergewöhnlichen Angebot zu erhalten!
Attraktives Hanggrundstück mit Planung für 4 moderne Reihenhäuser – Ihr Traumprojekt wartet!
Römerstraße 51,
84079 Bruckberg
Auf Karte anzeigen
Finanzierungszertifikat
In nur zwei Minuten zu Ihrem persönlichen Finanzierungszertifkat.
Infos
| Vermarktungsart | Kaufen |
|---|---|
| Grundstücksfläche | 2.623 m2 |
| Erschließung | Erschlossen |
| Empfohlene Nutzung | Reihenhaus |
| Bebaubar nach | Aussengebiet |
| Verfügbar ab | kurzfristig |
Kosten
| Miete pro Jahr |
595.000 € |
|---|---|
| Provision |
3,57 % incl. MwSt. |
Finanzierungsrechner:
Kaufpreis:
600.000 €
Eigenkapital:
600.000 €
Monatliche Rate
0 €
Effektiver Jahreszins
0 %
Sollzinsbindung
10 Jahre
Beschreibung des Objekts
Lage
Das Grundstück befindet sich in 84079 Bruckberg-Unterlenghart, in der Römerstraße, einer gepflegten Wohngegend mit tollem Weitblick. Die Lage zeichnet sich durch eine harmonische Mischung aus ländlichem Charme und kurzen Wegen zu einer guten Infrastruktur aus. Umgeben von einer idyllischen Landschaft bietet das Grundstück eine angenehme Wohnatmosphäre mit ausreichend Privatsphäre.
Trotz der ländlichen Umgebung ist die Verkehrsanbindung hervorragend. Die Bundesstraße B11, die weiteren Bundesstraße 15, 15 neu und 299 sowie die Autobahn A92 sind schnell erreichbar und ermöglichen eine komfortable Verbindung in die nahegelegenen Städte unter anderem Landshut und München. Öffentliche Verkehrsmittel, wie Busse und Bahnhöfe, befinden sich ebenfalls in der Nähe und sorgen für eine gute Anbindung an das regionale Verkehrsnetz.
In der Umgebung gibt es zahlreiche Einkaufsmöglichkeiten, Kindergärten, Schulen sowie medizinische Einrichtungen, die eine hohe Lebensqualität gewährleisten. Freizeitmöglichkeiten wie Wander- und Radwege, Sportvereine und kulturelle Angebote machen die Lage besonders attraktiv für Familien und Naturliebhaber.
Die Römerstraße selbst ist geprägt von Einfamilienhäusern und kleinen Mehrfamilienhäusern mit großzügigen Gärten, was das Wohngebiet zu einer idealen Adresse für Menschen macht, die Ruhe und Erholung suchen, ohne auf eine gute Infrastruktur verzichten zu müssen.
Sonstige Angaben
Auf dem Grundstück befindet sich Altbestand, welcher vom Käufer entfernt werden muss.
Grundriss
Grundrisse Kellergeschoss
>
>
Grundrisse Erdgeschoss
>
>
Grundrisse 1. Obergeschoss
>
>