Eine hübsche kompakte 2-Zimmer-Wohnung entsteht in schöner Wohnlage in Pfronten-Weißbach!
Eine hochwertige Ausstattung sowohl im Innenbereich als auch vom gesamten energetischen Konzept des Hauses erfüllt den Anspruch an modernes Wohnen!
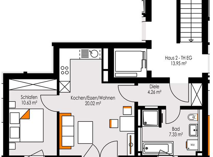
Die Diele bietet ausreichend Platz für die Garderobe.
Wohnen-Essen-Kochen ist quasi das Herzstück der Wohnung mit Zugang zur großzügigen Terrasse und in den hübschen Garten!
Das Schlafzimmer hat gute Stellmöglichkeiten.
Das moderne Bad mit Badewanne und Dusche, rundet diese kompakte 2-Zimmer-Wohnung ab.
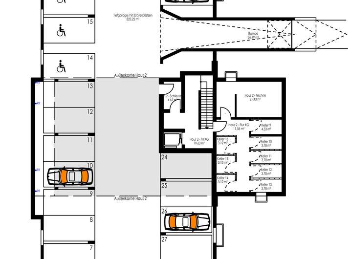
Ein Kellerabteil ist der Wohnung zugeordnet.
Ein Tiefgaragen-Stellplatz kommt noch dazu, der Kaufpreis dafür beträgt Euro 25.000,--.
NEUBAU! CHARMANTE 2-Zimmer-Wohnung mit Gartenanteil! EFFIZIENZHAUS 55! Whg-Nr. 10
Röfleuter Weg 14,
87459 Pfronten
Auf Karte anzeigen
Finanzierungszertifikat
In nur zwei Minuten zu Ihrem persönlichen Finanzierungszertifkat.
Infos
| Wohnungskategorie | Erdgeschosswohnung |
|---|---|
| Etage | 0 von 2 |
| Wohnfläche ca. | 51 m2 |
| Nutzfläche | 3,78 m2 |
| Bezugsfrei ab | Ende 2026br.2025 |
| Zimmer | 2 |
| Schlafzimmer | 1 |
| Badezimmer | 1 |
| Garage/Stellplatz | Tiefgarage |
| Anzahl Garage/Stellplatz | 1 |
Kosten
| Kaufpreis |
339.000 € |
|---|---|
| Preis für Garage/Stellplatz | 25.000 € |
| Provision | Nein |
Finanzierungsrechner:
Kaufpreis:
600.000 €
Eigenkapital:
600.000 €
Monatliche Rate
0 €
Effektiver Jahreszins
0 %
Sollzinsbindung
10 Jahre
Bausubstanz & Energieausweis
| Baujahr | 2025 |
|---|---|
| Objektzustand | Erstbezug |
| Qualität der Austattung | Gehoben |
| Heizungsart | Fußbodenheizung |
| Wesentliche Energieträger | Umweltwärme |
| Energieausweis | liegt zur Besichtigung vor |
Beschreibung des Objekts
Ausstattung
Effizienzhaus 55-Standard
Fußbodenheizung mit Raumthermostaten
Bad mit Fenster
hochw. Vinyloden - Fliesen
Große Terrasse und Gartenanteil
Aufzug - behindertenfreundlich
Kunststofffenster in 3-fach Verglasung
Dezentrale Wohnraumbelüftung
Elektrische Rollos
TG-Stellplatz: Euro 25.000,--
Lage
In schöner Ortsrandlage von Pfronten -Weißbach auf dem Gelände eines ehemaligen Hotels entstehen insgesamt 24 hochwertige Wohnungen in drei Häusern mit je 8 Wohnungen.
Abwechslungsreich, authentisch und liebenswert präsentiert sich der Höhenluftkurort Pfronten.
Die Gemeinde Pfronten wird auch " 13-Dörfer-Gemeinde" genannt! Ca. 8.500 Einwohner verteilen sich auf die 13 Ortsteile.
Wohnen in Pfronten ist die optimale Ergänzung zwischen alpenländischer Tradition und modernem Anspruch.
Eine sehr gute Infrastruktur und auch perfekte Verkehrsanbindung machen Pfronten zum idealen Wohnort.
Grund-und Mittelschule, Kindergärten, Kita und Kinderhort, viele Spielplätze, Einkaufsmöglichkeiten und gastronomische Vielfalt mit Allgäuer Küche, Klinik, reges Vereinsleben und alle Freizeitaktiviäten machen Pfronten absolut attraktiv!
Sonstige Angaben
Kaufpreis Wohnung Euro 339.000,-- zuzügl. Euro 25.000,-- für einen Tiefgaragen-Stellplatz!
Adresse
Röfleuter Weg 14, 87459 Pfronten
Interessante Orte
Preis- und Lageinformationen
Preistrend für Bestandsimmobilien in Pfronten