Zum Verkauf steht diese ca. 1950 erbaute Doppelhaushälfte innerhalb der ländlichen Umgebung von Wilsdruff. Es befindet sich in einem sanierungsbedürftigen Zustand und bietet eine umfangreiche Grundlage facettenreicher Visionen unterschiedlicher Nutzungsmöglichkeiten.
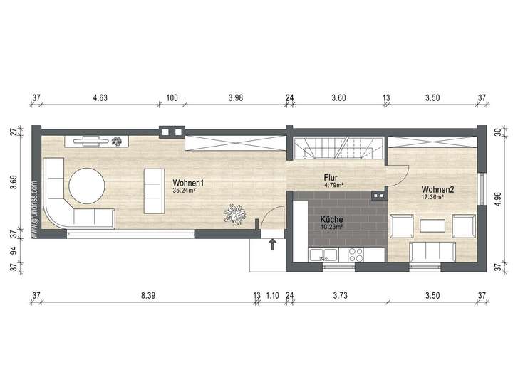
Nach Betreten des Hauses über den Haupteingang im Erdgeschoss, gelangen Sie in das großzügig geschnittene Wohnzimmer. Rechter Hand erschließt ein Flur den offenen Küchenbereich, ein Schlafzimmer sowie den gewendelten Treppenaufgang aus Holz. Über diesen erreichen Sie den Flur des Obergeschosses, welches über 2 weitere Schlafzimmer und ein helles Badezimmer verfügt.
Ein Kellergeschoss mit 2 getrennten Räumlichkeiten bietet des Weiteren genügend Platz für zusätzliche Lagerungsmöglichkeiten, kann aber auch als Büro- oder Hobbyraum genutzt werden.
Ein weitläufiges Grundstück von ca. 731 m² lädt im Sommer zur puren Entspannung in idyllischer Landatmosphäre ein.
Zusammenfassend lässt sich durch eine Kernsanierung des Objektes der Traum einer familiären Rückzugsoase in naher Zukunft verwirklichen.
Für weitere Informationen oder zur Vereinbarung eines Besichtigungstermin sprechen Sie uns jederzeit an!
+++ Sanieren nach Ihren Träumen! - Doppelhaushälfte mit idyllischem Grundstück +++
01723 Wilsdruff
Die vollständige Adresse der Immobilie erhalten Sie vom Anbieter.
Auf Karte anzeigen
Die vollständige Adresse der Immobilie erhalten Sie vom Anbieter.
Finanzierungszertifikat
In nur zwei Minuten zu Ihrem persönlichen Finanzierungszertifkat.
Infos
| Haustyp | Doppelhaushaelfte |
|---|---|
| Etagenzahl | 2 |
| Wohnfläche ca. | 118 m2 |
| Grundstücksfläche | 731 m2 |
| Bezugsfrei ab | sofort |
| Zimmer | 4 |
| Schlafzimmer | 3 |
| Badezimmer | 1 |
Kosten
| Kaufpreis |
135.000 € |
|---|---|
| Provision |
3,57 % inkl. MwSt. |
Finanzierungsrechner:
Kaufpreis:
600.000 €
Eigenkapital:
600.000 €
Monatliche Rate
0 €
Effektiver Jahreszins
0 %
Sollzinsbindung
10 Jahre
Beschreibung des Objekts
Ausstattung
+ Baujahr ca. 1950
+ Dacherneuerung ca. 1999
+ voll erschlossen
+ Zustand: sanierungsbedürftig
+ offene Küche
+ teilweise unterkellert
+ weitläufiges Grundstück (ca. 731 m²)
+ begehbarer Dachboden mit Abstellmöglichkeiten
Lage
Die angebotene Immobilie befindet sich in der Stadt Wilsdruff, welche sich im Landkreis Sächsische Schweiz-Osterzgebirge in Sachsen befindet. Die Stadt liegt inmitten einer idyllischen Landschaft, umgeben von Feldern und Wäldern. Die nähere Umgebung bietet zahlreiche Möglichkeiten für erholsame Spaziergänge, Fahrradtouren und andere Freizeitaktivitäten in der Natur.
Wilsdruff verfügt über eine gute Infrastruktur mit Einkaufsmöglichkeiten, Schulen, Kindergärten und ärztlicher Versorgung. Auch kulturell hat die Stadt einiges zu bieten, mit verschiedenen Veranstaltungen und Museen. Die Verkehrsanbindung ist ebenfalls gut, die Autobahn A4 ist in wenigen Minuten zu erreichen und ermöglicht eine schnelle Anbindung an Dresden und andere Städte der Region.
Die angebotene Immobilie befindet sich in zentraler Lage, in einer ruhigen Wohngegend. Einkaufsmöglichkeiten, Schulen und andere Einrichtungen sind fußläufig erreichbar. Auch die öffentlichen Verkehrsmittel sind gut zu erreichen.
Insgesamt bietet die Lage der Immobilie eine gute Mischung aus Ruhe und Nahversorgung sowie eine gute Anbindung an größere Städte. Ideal für Familien oder auch ältere Menschen, die eine zentrumsnahe, aber dennoch ruhige Wohnlage suchen.
Sonstige Angaben
Alle in diesem Angebot enthaltenen Angaben, Darstellungen und Preise stammen ausschließlich vom Eigentümer oder eines Dritten. Eine Haftung unseres Unternehmens hierfür ist ausgeschlossen.
Grundriss
Grundriss Kellergeschoss
>
>
Grundriss Erdgeschoss
>
>
Grundriss Obergeschoss
>
>
Adresse
01723 Wilsdruff
Interessante Orte
Preis- und Lageinformationen
Preistrend für Bestandsimmobilien in Wilsdruff