Die Wohnung ist seit Monatsanfang September `25 leer stehend und befindet sich in einem Mehrfamilienhaus in schöner und ruhigen Stadt(rand)lage im 2. Obergeschoß / Dachgeschoss. Das Haus hat keinen Aufzug.
Die Immobilie ist allgemein sehr gut gepflegt und besticht durch seine stadtnahe und grüne Lage. In nur wenigen Gehminuten gelangt man zum Beispiel zum Pfarrkirchner Stadtplatz.
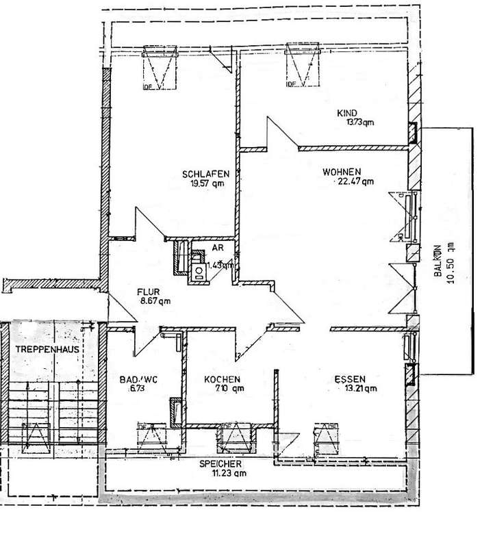
Die helle und mit praktischem Raumschnitt versehene 3,5 Zimmer Wohnung kann nach Erwerb jederzeit selbst bezogen oder als Kapitalanlage bestens vermietet werden.
Perfekte 3,5-Zimmer Stadtwohnung mit Balkon und Stellplatz
Postmünsterer Str. 24,
84347 Pfarrkirchen
Auf Karte anzeigen
Finanzierungszertifikat
In nur zwei Minuten zu Ihrem persönlichen Finanzierungszertifkat.
Infos
| Wohnungskategorie | Etagenwohnung |
|---|---|
| Etage | 2 von 2 |
| Wohnfläche ca. | 77 m2 |
| Zimmer | 3,5 |
| Schlafzimmer | 2 |
| Badezimmer | 1 |
| Garage/Stellplatz | Außenstellplatz |
| Anzahl Garage/Stellplatz | 1 |
Kosten
| Kaufpreis |
199.000 € |
|---|---|
| Preis für Garage/Stellplatz | 6.000 € |
| Provision |
3,57 % vom Kaufpreis inkl. MwSt. |
Finanzierungsrechner:
Kaufpreis:
600.000 €
Eigenkapital:
600.000 €
Monatliche Rate
0 €
Effektiver Jahreszins
0 %
Sollzinsbindung
10 Jahre
Bausubstanz & Energieausweis
| Baujahr | 1993 |
|---|---|
| Objektzustand | Modernisiert |
| Qualität der Austattung | Gehoben |
| Heizungsart | Gas-Heizung |
| Wesentliche Energieträger | Gas |
| Energieausweis | liegt vor |
| Energieausweistyp | Verbrauchsausweis |
| Energieverbrauchskennwert | 100,0 kWh/(m²*a) |
| Energieeffizienzklasse | D |
100,0
kWh/(m²*a)
Energieeffizienzklasse D
- A+
- A
- B
- C
- D
- E
- F
- G
- H
- 0
- 25
- 50
- 75
- 100
- 125
- 150
- 175
- 200
- 225
- >250
Beschreibung des Objekts
Ausstattung
Durch die Wohnungstüre kommt man in die Diele / Flur, welche jeweils in die einzelnen Räumlichkeiten führt.
Sämtliche Zimmer sind hell gestrichen und die gemütliche Wohnung mit großzügigem Raumschnitt wird über eine Gas-Zentralheizung geheizt.
Die Zimmer haben einen schönen Laminat Bodenbelag, das Bad, die Küche und die Speise sind gefliest. Das Bad mit Fenster ist mit einer Badewanne, Waschbecken, WC und Waschmaschinenanschluss ausgestattet.
Die Zimmer haben alle moderne Kunststofffenster ( teilw. BJ. 2022 ) mit Isolierverglasung mit guter Wärme- und Schallisolierung, Rollos sind vorhanden, teilw. nicht bei den Dachschrägenfenster).
Im geräumigen Flur der Wohnung findet man einen praktischer Abstellraum/Speis sowie an den Raumseiten jeweils ein Kriechboden vor.
Zur Wohnung gehört auch ein einzelner Kellerraum. Ein seitlich zum Haus befindlicher KFZ-Stellplatz ist Ostseitig zur Immobilie gelegen.
Ein Highlight stellt sicherlich der großzügige und nach Südosten ausgerichtete Balkon (am Wohnzimmer) dar.
Lage
Die lichtdurchflutete 3,5 Zimmer Wohnung mit vielen Fenstern in allen Räumen liegt fußläufig nicht weit entfernt vom Stadtzentrum sowie von der Hochschule. Eine Nähversorgungsmöglichkeit für den täglichen Bedarf ist gut gegeben.
Die Wohnung mit ihrer praktischen Raumaufteilung lädt zum Wohlfühlen und Entspannen für ein Paar oder Singles ein. Über eine Terrasssentüre im Wohnzimmer gelangt man auf den Richtung Südosten gelegenen Balkon mit Weitsichtmöglichkeit.
Die an der Wohnung umliegende Natur verführt zu ausgiebigen Spaziergängen oder sportlichen Outdoor-Aktivitäten.
Sonstige Angaben
HINWEISE: der im Exposé erwähnte KFZ-Stellplatz hat extra Kosten in Höhe von 6.000,- EUR.
Für weitere Informationen oder ein unverbindliches Beratungsgespräch kontaktieren Sie uns bitte unter Angabe Ihrer Adressdaten per E-Mail. Anonyme Anfragen werden nicht bearbeitet.
Die von uns gemachten Informationen beruhen auf Angaben des Verkäufers bzw. der Verkäuferin und können eine eigene Objektprüfung nicht ersetzen. Für die Richtigkeit und Vollständigkeit der Angaben kann keine Gewähr bzw. Haftung übernommen werden. Ein Zwischenverkauf, Irrtümer und Änderungen der Informationen sind vorbehalten.
Wir weisen auf unsere Allgemeinen Geschäftsbedingungen hin. Durch weitere Inanspruchnahme unserer Leistungen erklären Sie die Kenntnis und Ihr Einverständnis.
Immo Dienstleistungen ZASS - Kompetent - Fair - Zuverlässig -
Grundriss
Grundriss - Wohnung
>
>
Adresse
Postmünsterer Str. 24, 84347 Pfarrkirchen
Interessante Orte
Preis- und Lageinformationen
Preistrend für Bestandsimmobilien in Pfarrkirchen