Für das Grundstück liegt bereits ein durchdachter Bauplan vor, der den Bau eines zeitgemäßen Doppelhauses vorsieht. Dieser wird aktuell eingereicht.
Die Architektur des Hauses vereint moderne Elemente mit funktionalen Aspekten, um den zukünftigen Bewohnern höchsten Wohnkomfort zu bieten. Die beiden Wohneinheiten werden jeweils über einen eigenen Eingang verfügen und sind so gestaltet, dass sie maximale Privatsphäre gewährleisten.
Grundstück:
Das Grundstück umfasst eine noch zu vermessende Teilfläche von ca. 217 Quadratmetern und ist ideal für den Bau einer modernen Doppelhaushälfte geeignet. Die rechteckige Form ermöglicht eine effiziente Nutzung des Platzes und bietet Raum für private Gärten oder Terrassen. Die Ausrichtung des Grundstücks sorgt für eine optimale Besonnung der Wohnräume.
Das hintere Grundstück ist bereits verkauft und der Bau steht bevor. Gerne können wir Ihnen ein entsprechendes Angebot für den Bau in hoher Qualität anbieten.
Grundstück für Doppelhaushälfte
85055 Ingolstadt
Die vollständige Adresse der Immobilie erhalten Sie vom Anbieter.
Auf Karte anzeigen
Die vollständige Adresse der Immobilie erhalten Sie vom Anbieter.
Finanzierungszertifikat
In nur zwei Minuten zu Ihrem persönlichen Finanzierungszertifkat.
Infos
| Vermarktungsart | Kaufen |
|---|---|
| Grundstücksfläche | 217 m2 |
| Verfügbar ab | sofort |
Kosten
| Miete pro Jahr |
175.000 € |
|---|---|
| Provision |
2,5% inkl. MwSt. |
Finanzierungsrechner:
Kaufpreis:
600.000 €
Eigenkapital:
600.000 €
Monatliche Rate
0 €
Effektiver Jahreszins
0 %
Sollzinsbindung
10 Jahre
Beschreibung des Objekts
Lage
Der angebotene Bauplatz befindet sich in einer zentralen und gut erschlossenen Lage, die sowohl urbanen Komfort als auch eine ruhige Wohnatmosphäre bietet. Die Adresse, eingebettet in einer etablierten Wohngegend, zeichnet sich durch ihre Nähe zu Schulen, Einkaufsmöglichkeiten und öffentlichen Verkehrsmitteln aus.
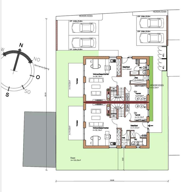
Grundriss
Grundriss OG
>
>
Grundriss Speicher
>
>
Grundriss EG
>
>