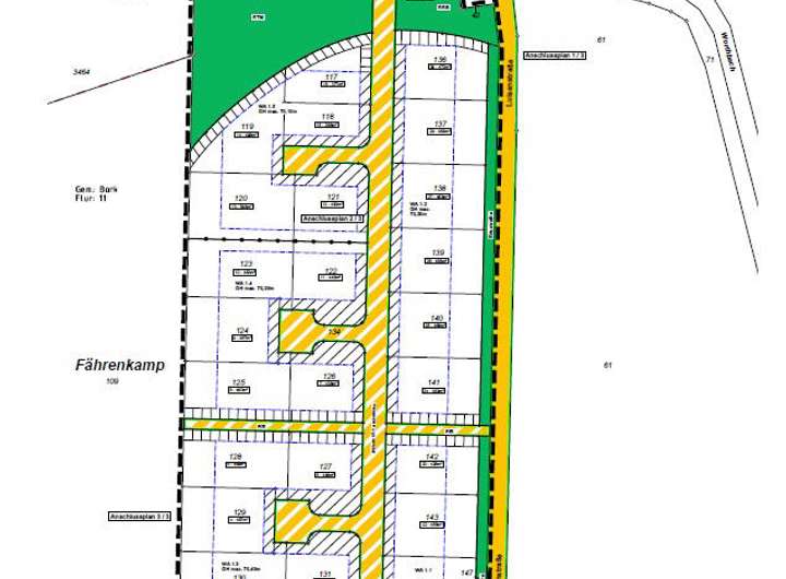
Hier können wir mehrere Grundstücke anbieten. Die Grundstücksgrößen liegen zwischen 286 m² und 532 m². Diese Grundstücke dürfen mit Doppelhäusern oder freistehenden Häusern bebaut werden. Es sind maximal zwei Wohneinheiten je Grundstück erlaubt. Der Kaufpreis beträgt 349 EUR je Quadratmeter inklusive der kompletten Erschließung, eine Courtage fällt nicht an.
Das Baugebiet " Im Bereich der Fährenkampsiedlung" befindet sich an der Grenze zum Naturschutzgebiet Netteberge zwischen den Ortsteilen Bork und Selm. Die Grundstücke bieten somit eine sehr ruhige Wohnlage, mitten im Grünen. Gleichzeitig sind die Autobahnen A1 und A2 jeweils nur 15 km entfernt. Man erreicht das Münsterland und die Metropole Ruhr sehr schnell.
Hier einige Eckpunkte aus dem Planbereich WA 1.x:
- allgemeines Wohngebiet
- offene Bauweise
- Einzel- und Doppelhausbebauung möglich
- Flachdach (FD) mit Dachneigung 0-5 Grad mit mindestens extensiver Dachbegrünung
- maximal zwei Vollgeschosse möglich
- maximal zwei Wohneinheiten möglich
Alle weiteren Details finden Sie im Bebauungsplan, in den ergänzenden Textfestsetzungen und in der dazugehörigen Begründung.
Mit dem Hochbau kann im späten Frühjahr 2025 begonnen werden.
Anbieter-Objektnummer: 520
Grundstück in ruhiger Lage am Rande des Naturschutzgebietes Netteberge
59379 Selm
Die vollständige Adresse der Immobilie erhalten Sie vom Anbieter.
Auf Karte anzeigen
Die vollständige Adresse der Immobilie erhalten Sie vom Anbieter.
Finanzierungszertifikat
In nur zwei Minuten zu Ihrem persönlichen Finanzierungszertifkat.
Infos
| Vermarktungsart | Kaufen |
|---|---|
| Grundstücksfläche | 416 m2 |
| Erschließung | Erschlossen |
| Grundflächenzahl (GRZ) | 0.4 |
| Geschossflächenzahl (GFZ) | 0.8 |
| Bebaubar nach | Bebauungsplan |
Kosten
| Miete pro Jahr |
145.184 € |
|---|---|
| Provision | Nein |
Finanzierungsrechner:
Kaufpreis:
600.000 €
Eigenkapital:
600.000 €
Monatliche Rate
0 €
Effektiver Jahreszins
0 %
Sollzinsbindung
10 Jahre