Wir freuen uns, Ihnen diese außergewöhnliche 3-geschossige Villenhälfte vorstellen zu dürfen. Die Architektenvilla wurde im Jahr 1997 auf einem Hanggrundstück massiv erbaut und befindet sich am malerischen Kalksee in Woltersdorf. Dieses traumhafte Anwesen vereint luxuriöses Wohnen mit unmittelbarem privaten Zugang zu einer der schönsten Wasserlagen der Region - eine ideale Kombination aus Rückzugsoase und Nähe zu Berlin.
Der beliebte Kalksee ist ein besonders sauberer Badesee, der im Jahr 2002 mit der blauen EU-Flagge für seine hervorragende Wasserqualität ausgezeichnet wurde. Ein breiter Bootssteg bietet Platz für zwei Boote und ermöglicht einen direkten Zugang zum See.
Mit hohem Komfort und Funktionalität wurde diese beeindruckende Architektenvilla geplant und gebaut. Eine großzügige Wohn-/Nutzfläche auf 4 Etagen von ca. 407 Quadratmetern mit 7 Zimmern und einer beheizbaren Tiefgarage komplettiert dieses besondere Angebot.
Die nach Südosten ausgerichtete Terrasse ist der perfekte Ort für Sonnenhungrige und gesellige Stunden mit der Familie und Freunden. Außerdem steht Ihnen ein Balkon und ein Wintergarten mit vollflächig zu öffnender Fensterfront im Studio zur Verfügung. Diese bieten spektakuläre Ausblicke auf den Kalksee und die umliegende Natur. Zusätzlich sorgen für gemütliche Stunden ein Echtholz-Kamin und eine Sauna im großzügigen Vollbadezimmer.
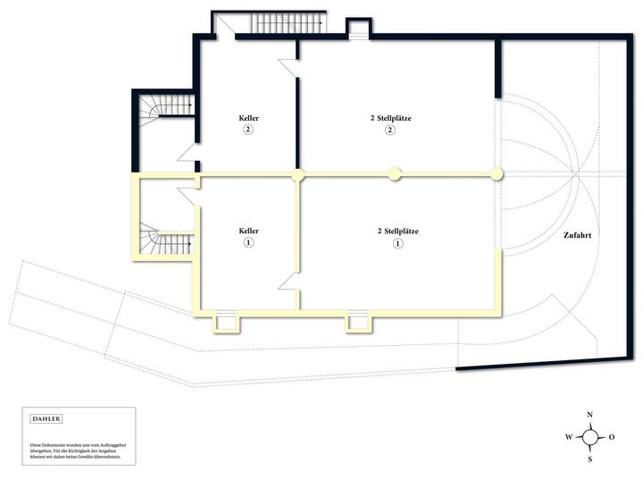
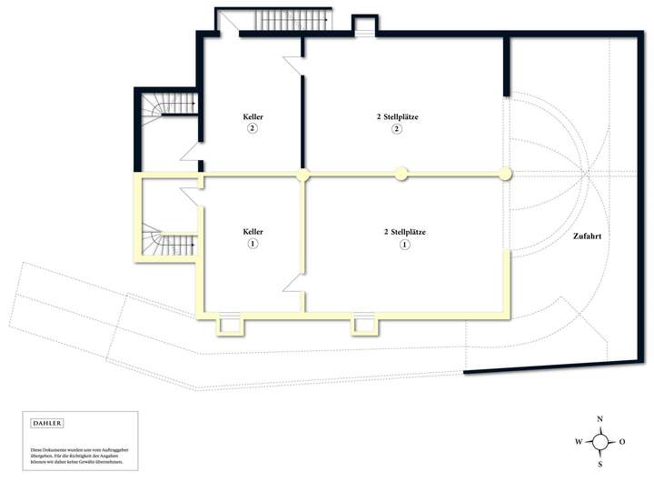
Im Untergeschoss befindet sich die hauseigene Großraum-Tiefgarage, welche direkt mit dem Haus verbunden ist und Platz für 2-3 PKW bietet. Diese offeriert nicht nur reichlich Abstellmöglichkeiten, sondern auch Komfort und Sicherheit für Ihre Fahrzeuge.
Luxuriöses Wohnen in einer traumhaften See- und Naturlage ist hier gegeben. Mit seiner großzügigen Wohn- und Nutzfläche, den zahlreichen Annehmlichkeiten und dem direkten privaten Zugang zum Kalksee erfüllt dieses Anwesen hohe Wohnansprüche und bietet gleichzeitig ein einmaliges Paradies für Naturliebhaber.
Ebenso ist die gesamte Architektenvilla käuflich erwerbbar und für Mehrgenerationenwohnen oder für Investoren geeignet.
Für weitere Informationen und zur Vereinbarung eines Besichtigungstermins stehen wir Ihnen gerne zur Verfügung.
Villenhälfte auf idyllischem Hanggrundstück mit Wasserzugang und eigenem Bootssteg am Kalksee
15569 Woltersdorf
Die vollständige Adresse der Immobilie erhalten Sie vom Anbieter.
Auf Karte anzeigen
Die vollständige Adresse der Immobilie erhalten Sie vom Anbieter.
Finanzierungszertifikat
In nur zwei Minuten zu Ihrem persönlichen Finanzierungszertifkat.
Infos
| Haustyp | Mehrfamilienhaus |
|---|---|
| Etagenzahl | 3 |
| Wohnfläche ca. | 313 m2 |
| Nutzfläche | 93 m2 |
| Grundstücksfläche | 474 m2 |
| Zimmer | 7 |
| Schlafzimmer | 6 |
| Badezimmer | 2 |
| Garage/Stellplatz | Tiefgarage |
| Anzahl Garage/Stellplatz | 2 |
Kosten
| Kaufpreis |
985.000 € |
|---|---|
| Provision |
3,57 % inkl. gesetzlicher MwSt. bezogen auf den Kaufpreis |
Finanzierungsrechner:
Kaufpreis:
600.000 €
Eigenkapital:
600.000 €
Monatliche Rate
0 €
Effektiver Jahreszins
0 %
Sollzinsbindung
10 Jahre
Bausubstanz & Energieausweis
| Baujahr | 1997 |
|---|---|
| Objektzustand | Gepflegt |
| Qualität der Austattung | Gehoben |
| Heizungsart | Fußbodenheizung |
| Wesentliche Energieträger | Gas |
| Energieausweis | liegt vor |
| Energieausweistyp | Verbrauchsausweis |
| Energieverbrauchskennwert | 32,1 kWh/(m²*a) |
| Energieeffizienzklasse | A |
32,1
kWh/(m²*a)
Energieeffizienzklasse A
- A+
- A
- B
- C
- D
- E
- F
- G
- H
- 0
- 25
- 50
- 75
- 100
- 125
- 150
- 175
- 200
- 225
- >250
Beschreibung des Objekts
Ausstattung
• Villen-Hälfte
• 7 Zimmer auf drei Etagen
• Fußbodenheizung
• Endenergieverbrauch: 32,10 kWh/m²a, Energieklasse A
• Hanggrundstück am Wasser mit Seeblick
• Eigener Zugang zum Kalksee mit Bootssteg für zwei Boote
• Terrasse (Bangkirai), Balkon (Südost-Ausrichtung)
• Vollflächig zu öffnende Fensterfront im OG mit Seeblick (ohne Pfeiler, Stützen o.ä.)
• Beheizbare Großraum-Tiefgarage (2-3 PKW)
• Kamin
• Sauna
• Alarmanlage
• Bus-System (GIRA)
• Zentrale Staubsaugeranlage
• Wäscheabwurfsystem
• Aluminium-Isolierglas Fenster (Sicherheitsglas A1)
Lage
Unser Wohnort beeinflusst zunehmend unser Lebensgefühl. Es geht längst nicht mehr nur um eine Wohnung, sondern um das Gefühl, wirklich zu Hause zu sein, denn wohnen bedeutet leben. Das Wasser übt dabei eine besondere Anziehungskraft auf uns aus: Es ist eine Quelle der Erholung und Regeneration, die unsere Energie und unser Wohlbefinden steigert.
Woltersdorf, ein beliebtes Ausflugsziel im Berliner Umland, bietet mit seinen zahlreichen Seen und Wanderwegen ein attraktives Sport- und Freizeitangebot. Der Ortskern von Woltersdorf hält alles bereit, was für den täglichen Bedarf notwendig ist. Der Ort verfügt über eine gut ausgebaute Infrastruktur mit vielfältigen Einkaufsmöglichkeiten, Ärzten, Apotheken, Schulen und Kinderbetreuungsmöglichkeiten.
Die Straßenbahnlinie 87 bringt Sie in etwa 15 Minuten zum S-Bahnhof Berlin-Rahnsdorf im Stadtbezirk Berlin-Köpenick. Dieser Stadtbezirk, bekannt für seine Wald- und Wasservielfalt, grenzt direkt an Woltersdorf. Alternativ erreichen Sie in ca. 5 Busminuten den S- und Regionalbahnhof Erkner. Von dort gelangen Sie im 20 bzw. 30-Minuten-Takt schnell in die Berliner Innenstadt.
Auch für Autofahrer ist gesorgt: Die Autobahn A10 sowie die Bundesstraße B1/5 sind in etwa 5 Fahrminuten erreichbar. Woltersdorf verbindet somit naturnahes Wohnen mit der Nähe zur Großstadt und einer hervorragenden Anbindung an den öffentlichen Nahverkehr und das Straßennetz.
Grundriss
Grundriss Erdgeschoss
>
>
Grundriss Obergeschoss
>
>
Grundriss Souterrain
>
>
Grundriss Keller
>
>
Adresse
15569 Woltersdorf
Interessante Orte
Preis- und Lageinformationen
Preistrend für Bestandsimmobilien in Woltersdorf