Es entsteht ein Einfamilienhaus in Energieeffizienzklasse KfW 40+.
PLUS - ENERGIE - HAUS ohne Energiekosten !
Exklusiv bei uns ZERO BILLS* - Das Null - Energiekosten - Haus !
(* ZeroBills ist eine Marke von octopusenergy)
Das Bauvorhaben befindet sich noch in der Planphase. Es handelt sich um eine Beispielprojektierung! (Vorbehaltlich der Baugenehmigungserteilung).
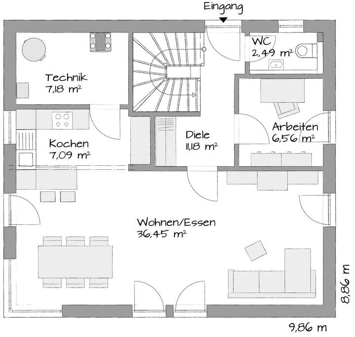
Wir gleichen für Sie gerne die Raumaufteilung entsprechend Ihrer Wünsche und Bedürfnisse an.
Das KAMPA Haus verbraucht weniger Energie für Heizung, Warmwasser, Haushaltsgeräte und Licht als es selbst erzeugt. Damit werden Nebenkosten wieder zur Nebensache.
KAMPA setzte als erster Fertighaushersteller mit dem Effizienzhaus 40 Plus konsequent auf Plusenergie und höchste Energieeffizienz.
MIT EINEM KAMPA FERTIGHAUS BAUEN SIE SCHON HEUTE DIE ZUKUNFT!
Die ökologische Gebäudehülle mit hervorragendem U-Gefach-Wert, in Verbindung mit modernster Haustechnik, garantiert Ihnen ein angenehmes Wohnklima und dabei minimale Betriebskosten.
Weitere Informationen erhalten Sie sehr gerne im Rahmen eines persönlichen Termins bei uns im Büro, welches sich selbstverständlich ebenfalls in einem Energie-Plus Kampa-Referenzhaus befindet.
Claudia Andraschko
08236/90111 oder 0175-8167074.
Plusenergiehaus ein Traum - energieeffizient, ökologisch u. ohne Energiekosten !! !!
86498 Kettershausen
Die vollständige Adresse der Immobilie erhalten Sie vom Anbieter.
Auf Karte anzeigen
Die vollständige Adresse der Immobilie erhalten Sie vom Anbieter.
Finanzierungszertifikat
In nur zwei Minuten zu Ihrem persönlichen Finanzierungszertifkat.
Infos
| Haustyp | Einfamilienhaus |
|---|---|
| Etagenzahl | 2 |
| Wohnfläche ca. | 133 m2 |
| Nutzfläche | 25 m2 |
| Grundstücksfläche | 480 m2 |
| Zimmer | 6 |
| Schlafzimmer | 3 |
| Badezimmer | 1 |
Kosten
| Kaufpreis |
528.490 € |
|---|---|
| Provision | Nein |
Finanzierungsrechner:
Kaufpreis:
600.000 €
Eigenkapital:
600.000 €
Monatliche Rate
0 €
Effektiver Jahreszins
0 %
Sollzinsbindung
10 Jahre
Bausubstanz & Energieausweis
| Baujahr | 2025 |
|---|---|
| Bauphase | Haus in Planung (projektiert) |
| Objektzustand | Erstbezug |
| Qualität der Austattung | Gehoben |
| Heizungsart | Wärmepumpe |
| Energieausweis | liegt vor |
| Energieausweistyp | Bedarfsausweis |
| Energieeffizienzklasse | A+ |
Energieeffizienzklasse A+
- A+
- A
- B
- C
- D
- E
- F
- G
- H
- 0
- 25
- 50
- 75
- 100
- 125
- 150
- 175
- 200
- 225
- >250
Beschreibung des Objekts
Ausstattung
Bereits im Kaufpreis enthalten:
* Baugrundstück (Maklerkosten zzgl.)
* Thermofundamentplatte für geringsten Energieverlust, Keller
optional
* Schlüsselfertiges Energiesparhaus, Energieeffizienz A+
* Holzständer-Wandsystem mit besten Dämmwerten
* Photovoltaik mit Speicher
* 3-Scheiben-Thermoverglasung
* Alu-Rollläden (elektrisch a.W.)
* Thermodach
* Erhöhter Einbruchschutz durch Pilzkopfzapfenverriegelung bei
Fenster, Terassentüren sowie Haustüre
* Fußbodenheizung in jedem Wohnraum inkl. Einzelraum-Steuerung und inkl. Kühlfunktion
* Komfortlüftung mit Wärmerückgewinnung für ein perfektes
Raumklima
* TV und Netzwerkverkabelung in jedem Wohnraum
* Vollholztreppe
* Blower-Door-Test
* Finanzierungsservice
PLANUNGSLEISTUNGEN
- Planungs- und Baustellengespräch mit dem KAMPA Architekten, Baugesuch inklusive
- Bauleitung vom ersten Spatenstich bis zur Hausübergabe
- Baubegleitung durch einen zugelassenen Energieeffizienzexperten
- EnEV-Berechnung inklusive Energieausweis
- QNG-Zertifizierung möglich
SICHERHEIT
- Aus einer Hand, von der Bodenplatte bis zur Schlüsselübergabe
- 12 Monate Festpreisgarantie
- 5 Jahre Garantie gemäß BGB
- 30 Jahre Garantie für die tragende Holzkonstruktion
- Zertifizierter Hausbau gemäß der QDF-Qualitätsrichtlinie
Wir versprechen den Einsatz renommierter, namhafter Hersteller.
Eine Thermogedämmte Gebäudehülle, plus eigene Stromerzeugung mit Speicher, garantiert Ihnen in Zukunft Ihre Betriebskosten auf ein Minimum zu reduzieren. Gerne informieren wir Sie hierzu.
Lage
Kettershausen ist eine Gemeinde im schwäbischen Landkreis
Unterallgäu. In der Gemeinde befinden sich der tiefst gelegene
und der nördlichste Punkt im Landkreis Unterallgäu.
Das Dorf liegt circa 35 Kilometer südöstlich von Ulm und 25
Kilometer nördlich von Memmingen in der Region Donau-Iller in
Mittelschwaben.
Grundschule und Kindergarten sind im Ort, die Realschule im
nahegelegenen Babenhausen und das Gymnasium in Krumbach.
Machen Sie eine Fahrradtour auf dem Günztalradweg und
relaxen Sie am Stausee mit den vielen Wasservögeln .
Später kehren Sie im Cafe´Ideen Reich ein , stöbern Sie in den
unzähligen Accessoires für Haus und Garten und essen dazu die
sensationell besten selbstgebackenen Kuchen und Torten . Im
Umkreis von 50 km gibt es nichts Besseres.
Bäckerei , Lebensmittelladen und Getränkemarkt befinden sich
in fußläufger Entfernung.
Sonstige Angaben
Das Bauvorhaben befindet sich noch in der Planphase. Ihre Wünsche und Bedürfnisse können wir gerne, im Rahmen einer individuellen Hausplanung, berücksichtigen: Sie hätten gerne eine Sauna, einen Kamin, einen Balkon oder einen Wintergarten? Wir lassen Ihre Träume wahr werden.
Nutzen Sie unsere kostenlose und unverbindliche Fördermittelberatung!
Bei dem hier beworbenen Angebot handelt es sich um eine Beispielbebauung auf einem vorhandenen Baugrundstück (Abbildungen z.T. mit optionaler Sonderausstattung/Zubehör).
KAMPA tritt ausschließlich als das bauausführende Unternehmen auf.
Wir bitten um Verständnis, dass wir ohne vorherigen persönlichen Kontakt mit Datenangaben keine Grundstücksdaten weiterleiten!
Der Grundstückspreis ist im Angebotspreis enthalten. Kauf- und Baunebenkosten sind zuzüglich zu beachten.
Wir sind stets bemüht, mit größter Sorgfalt tätig zu sein, bitten jedoch um Verständnis, dass wir nur haften können, falls wir vorsätzlich oder grob fahrlässig einen Schaden verursachen, zumal die Angaben in diesem Exposé auf Informationen unseres Grundstücksanbieters beruhen.
Grundstücksbezogen können wir Ihnen gerne unverbindlich eine individuelle Planung erstellen und Ihr Traumhaus zum Festpreis als schlüsselfertig oder in verschiedenen Ausbaustufen anbieten.
Weitere Informationen finden Sie auch unter www.kampa.de
Grundriss
Beispiel EG - änderbar
>
>
Beispiel OG - änderbar
>
>
Adresse
86498 Kettershausen
Interessante Orte
Preis- und Lageinformationen
Preistrend für Bestandsimmobilien in Kettershausen