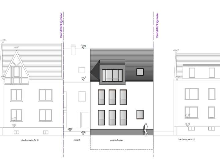
Das Grundstück, Ober-Eschbacher-Straße 57, 57a und 57b, ist 900m² groß.
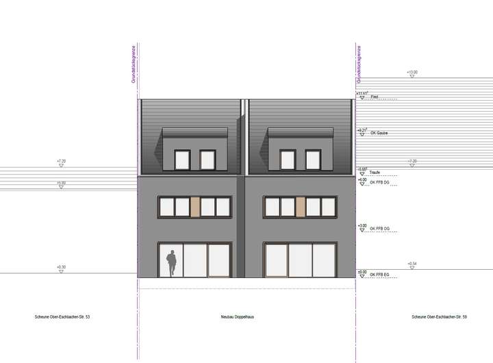
Baugenehmigungen liegen vor für den Bau eines Mehrfamilienhauses (vier Wohneinheiten mit einer Netto-Raum-Fläche von ca. 345m² und vier PKW-Stellplätzen) im vorderen Teil des Grundstücks sowie einem Doppelhaus (zwei Wohneinheiten mit einer Netto-Raum-Fläche von ca. 378m² und zwei PKW-Stellplätzen) im hinteren Teil des Grundstücks.
Provisionsfrei: Grundstück mit erteilten Baugenehmigungen
61352 Bad Homburg vor der Höhe
Die vollständige Adresse der Immobilie erhalten Sie vom Anbieter.
Auf Karte anzeigen
Die vollständige Adresse der Immobilie erhalten Sie vom Anbieter.
Finanzierungszertifikat
In nur zwei Minuten zu Ihrem persönlichen Finanzierungszertifkat.
Infos
| Vermarktungsart | Kaufen |
|---|---|
| Grundstücksfläche | 900 m2 |
| Erschließung | Erschlossen |
| Empfohlene Nutzung | Mehrfamilienhaus |
| Bebaubar nach | wie Nachbarbebauung |
| Verfügbar ab | sofort |
Kosten
| Miete pro Jahr |
995.000 € |
|---|---|
| Provision | Nein |
Finanzierungsrechner:
Kaufpreis:
600.000 €
Eigenkapital:
600.000 €
Monatliche Rate
0 €
Effektiver Jahreszins
0 %
Sollzinsbindung
10 Jahre
Beschreibung des Objekts
Lage
Das Grundstück liegt in Bad Homburg im Stadtteil Ober-Eschbach an der Ober-Eschbacher Straße, Gemarkung Ober-Eschbach, Flur 1, Flurstück 134/4. Im Osten liegt das Grundstück direkt an der Ober-Eschbacher Straße und im Westen grenzt es an die historische Ringmauer des Ortskerns.
Sonstige Angaben
Für Rückfragen und/oder Zusendung weiterer Unterlagen stehen wir Ihnen selbstverständlich jederzeit und sehr gerne zur Verfügung.