Willkommen zu dem Angebot dieses Mehrfamilienhauses in Altena!
Das Mehrfamilienhaus bietet eine durchgehende Instandhaltung und Modernisierung, was für eine langfristige Werterhaltung spricht. Mit insgesamt 6 Wohneinheiten und einem teilweise ausgebauten Dachboden bietet das Haus vielfältige Nutzungsmöglichkeiten. Jede Wohnung besteht aus 2 Zimmern, einer Küche, einem Flur und einem Bad mit Tageslicht. Die Wohnungen im Obergeschoss verfügen zudem über einen großzügigen Balkon, während hinter dem Haus eine Terrasse über das Treppenhaus erreichbar ist.
Alle Wohnungen sind langfristig vermietet und erzielen eine durchschnittliche Miete von 4,60 Euro pro Quadratmeter. Das Objekt ist gepflegt und normal ausgestattet, was eine solide Basis für potenzielle Investoren darstellt. Die Bruttomietrendite (IST) beträgt ca.
7% und Bruttomietrendite (SOLL) beträgt ca. 8,5%, was auf eine attraktive Rendite hinweist. Zudem bestehen Möglichkeiten zur Steigerung der Mieteinnahmen, was zusätzliches Potenzial bietet.
Insgesamt präsentiert sich das Mehrfamilienhaus als eine solide Investitionsmöglichkeit mit langfristiger Perspektive und attraktiven Renditemöglichkeiten.
Ausstattung:
Wohnungen: 6 Wohneinheiten + 1 Wohneinheit im Dachboden
Wohnungen im Obergeschoss: 2 Wohnungen mit Balkon
Wohnungen im Erdgeschoss: Zugang zur Terrasse hinter dem Haus
Technische Ausstattung und Sanierungen
Heizung: Jede Wohnung verfügt über eine eigene Gasetagenheizung
Fenster: 2-fach verglaste Kunststofffenster
Dachboden: Gedämmt und teilweise ausgebaut
Sanierungen: In den letzten 15 Jahren wurden folgende Elemente saniert:
- Elektrik
- Dachdämmung
- Wasserleitungen
- Gasetagenheizungen
- Bodenbeläge
- 6 der 7 Bäder wurden saniert
Balkon: Jeweils ein Balkon für die beiden Wohnungen im Obergeschoss
Terrasse: Terrasse hinter dem Haus
Vollunterkellert: Bietet zusätzlichen Stauraum und Nutzflächen für die Bewohner
Solide Kapitalanlage in Altena mit 7% Mietrendite
58762 Altena
Die vollständige Adresse der Immobilie erhalten Sie vom Anbieter.
Auf Karte anzeigen
Die vollständige Adresse der Immobilie erhalten Sie vom Anbieter.
Finanzierungszertifikat
In nur zwei Minuten zu Ihrem persönlichen Finanzierungszertifkat.
Infos
| Haustyp | Mehrfamilienhaus |
|---|---|
| Etagenzahl | 3 |
| Wohnfläche ca. | 424 m2 |
| Nutzfläche | 200 m2 |
| Grundstücksfläche | 401 m2 |
| Zimmer | 14 |
| Schlafzimmer | 7 |
| Badezimmer | 7 |
| Garage/Stellplatz | Außenstellplatz |
Kosten
| Kaufpreis |
345.000 € |
|---|---|
| Provision |
4.76 % inkl. MwSt. Bei Abschluss eines notariellen Kaufvertrages ist eine Käuferprovision vom Käufer in Höhe von 4.76 % inkl. MwSt. aus dem Kaufpreis fällig. |
| Mieteinnahmen | 2.005 € |
Finanzierungsrechner:
Kaufpreis:
600.000 €
Eigenkapital:
600.000 €
Monatliche Rate
0 €
Effektiver Jahreszins
0 %
Sollzinsbindung
10 Jahre
Bausubstanz & Energieausweis
| Baujahr | 1927 |
|---|---|
| Letzte Sanierung | 2015 |
| Objektzustand | Gepflegt |
| Qualität der Austattung | Normal |
| Heizungsart | Gas-Heizung |
| Wesentliche Energieträger | Gas |
| Energieausweis | liegt vor |
| Energieausweistyp | Bedarfsausweis |
| Energieverbrauchskennwert | 214,5 kWh/(m²*a) |
| Energieeffizienzklasse | G |
214,5
kWh/(m²*a)
Energieeffizienzklasse G
- A+
- A
- B
- C
- D
- E
- F
- G
- H
- 0
- 25
- 50
- 75
- 100
- 125
- 150
- 175
- 200
- 225
- >250
Beschreibung des Objekts
Ausstattung
siehe Objektbeschreibung
Lage
Das Mehrfamilienhaus befindet sich in einer ruhigen Wohngegend von Altena, einer charmanten Stadt im Märkischen Kreis in Nordrhein-Westfalen. Die Lage bietet eine ideale Mischung aus urbanem Komfort und naturnaher Erholung.
In der Nähe finden Sie Einkaufsmöglichkeiten, darunter Supermärkte und Einzelhandelsgeschäfte, die bequem mit dem Auto erreichbar sind. Familien profitieren von der Nähe zu Kindergärten, Grundschulen und weiterführenden Schulen.
Altena bietet vielfältige Freizeitmöglichkeiten, darunter die historische Burg Altena und zahlreiche Wander- und Radwege, die zu Erkundungstouren in die umliegende Natur einladen. Die Gesundheitsversorgung ist durch Ärzte und Apotheken gesichert.
Die Verkehrsanbindung ist gut. Öffentliche Verkehrsmittel und der nahegelegene Bahnhof bieten regelmäßige Verbindungen in die umliegenden Städte und Gemeinden. Die gute Anbindung an Hauptverkehrsstraßen ermöglicht eine schnelle Erreichbarkeit von Städten wie Lüdenscheid, Hagen und Iserlohn. Diese Lage kombiniert Ruhe, zentrale Lage und vielfältige Freizeitmöglichkeiten.
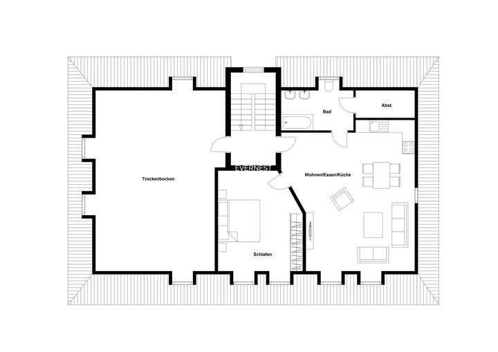
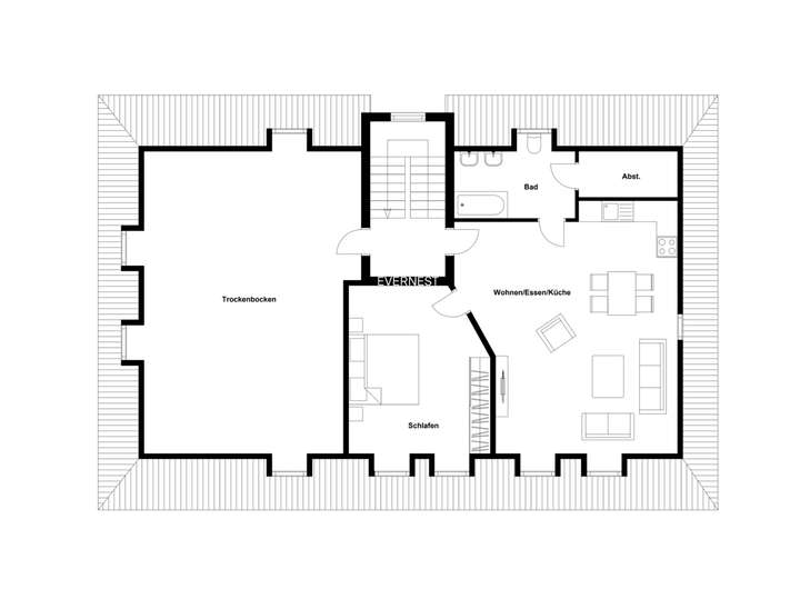
Grundriss
Erdgeschoss
>
>
1.Obergeschoss
>
>
Dachgeschoss
>
>
Dachboden
>
>
Kellergeschoss
>
>
Adresse
58762 Altena
Interessante Orte
Preis- und Lageinformationen
Preistrend für Bestandsimmobilien in Altena