Auf einem insgesamt 5.112 m² großen Grundstück mit einem 1953 erbauten freistehenden Dreifamilienhaus (Nr. 48 ) wurde 1992 in massiver Bauweise eine Mehrfamilienwohnanlage mit insgesamt 12 Wohnungen errichtet. Die vermietbare Gesamtfläche beträgt ca. 1.093 qm im neuen Teil neben ca. 171 m² im Altbau.
Das Objekt ist vollständig vermietet und erstreckt sich über zwei Vollgeschosse (EG, OG, und DG) mit zwei getrennten Eingängen und Treppenhäusern (Nr. 48 b + 48 c ) mit je 6 durchdacht geschnittenen Wohnungen, einem Untergeschoss mit 12 Abstellräumen, Fahrradabstell- und Trockenräumen, Haustechnik und 18 Tiefgaragenstellplätzen sowie drei PKW-Stellplätzen im Hof.
Die Beheizung im Haus erfolgt über eine Gaszentralheizung. Das Gebäude befindet sich insgesamt in einem gepflegten Zustand.
Folgende Einheiten finden Sie hier vor:
Nr. 48 b
EG links 3 ZKB, Balkon, Terrasse ca. 82 m² (kernsaniert 2024)
EG rechts 4 ZKB, Balkon, Terrasse, ca. 90 m²
OG links 3 ZKB, 2 Balkone, ca. 75 m²
OG rechts 3 ½ ZKB, 2 Balkone, ca. 84 m²
DG links 2 ZKB, ca. 65 m²
DG rechts 3 ½ ZKB, ca. 74 m²
Nr. 48 c
EG links 5 ZK, 2 B, 2 WC, Balkon, Terrasse, ca. 92 m²
EG rechts 6 ZK, 2B, 2WC, ca. 125 m²
OG links 5 ZK, 2B, 2WC, Balkon, ca. 92 m²
OG rechts 6 ZK, 2B, 2 WC, ca. 126 m²
DG links 4 ZKB, 2 WC, ca. 83 m²
DG rechts 5 ZK, 3 B, 3 WC, ca. 105 m²
Nr. 48
EG: 3 ZKB mit ca. 63 qm
OG: 3 ZKB, Balkon mit ca. 66 qm
DG: 2 ZKB mit ca. 42 qm
Die aktuelle Jahresnettokaltmiete von rund € 98.485,- befindet sich teilweise im unteren Bereich der ortsüblichen Mieten und bietet Ihnen somit noch ordentlich Steigerungspotential. Mietrückstände sind keine zu verzeichnen.
Weitere Details und zusätzliche Informationen erhalten Sie gerne auf Anfrage oder im Rahmen eines persönlichen Besichtigungstermins.
Wir freuen uns auf Ihre Kontaktaufnahme.
Mehrfamilienwohnanlage mit 15 vermieteten Wohnungen sowie Tiefgarage auf einem 5112 m² Grundstück.
67105 Schifferstadt
Die vollständige Adresse der Immobilie erhalten Sie vom Anbieter.
Auf Karte anzeigen
Die vollständige Adresse der Immobilie erhalten Sie vom Anbieter.
Finanzierungszertifikat
In nur zwei Minuten zu Ihrem persönlichen Finanzierungszertifkat.
Infos
| Etagenzahl | 2 |
|---|---|
| Wohnfläche ca. | 1.265 m2 |
| Nutzfläche | 792 m2 |
| Grundstücksfläche | 5.112 m2 |
| Bezugsfrei ab | Sofort |
| Zimmer | 54 |
| Garage/Stellplatz | Tiefgarage |
| Anzahl Garage/Stellplatz | 18 |
Kosten
| Kaufpreis |
2.740.000 € |
|---|---|
| Provision |
5,95 % incl. 19 % Mwst. |
| Mieteinnahmen | 8.207 € |
Finanzierungsrechner:
Kaufpreis:
600.000 €
Eigenkapital:
600.000 €
Monatliche Rate
0 €
Effektiver Jahreszins
0 %
Sollzinsbindung
10 Jahre
Bausubstanz & Energieausweis
| Baujahr | 1992 |
|---|---|
| Objektzustand | Gepflegt |
| Wesentliche Energieträger | Gas |
| Energieausweis | liegt vor |
| Energieausweistyp | Verbrauchsausweis |
| Energieverbrauchskennwert | 155,0 kWh/(m²*a) |
| Energieeffizienzklasse | E |
155,0
kWh/(m²*a)
Energieeffizienzklasse E
- A+
- A
- B
- C
- D
- E
- F
- G
- H
- 0
- 25
- 50
- 75
- 100
- 125
- 150
- 175
- 200
- 225
- >250
Beschreibung des Objekts
Ausstattung
- Baujahr 1992
- Grundstücksgröße ca. 5112 m²
- 54 Zimmer
- Objekt komplett langfristig vermietet
- Jährliche Nettokaltmiete 98.485,- €
- Nr. 48 b und 48 c mit 12 Wohnungen 1992 erbaut
- Nr. 48 mit 3 Wohnungen ca. 1953 erbaut
- Tiefgarage mit 18 KFZ – Stellplätzen
- 3 KFZ – Aussenstellplätze
- 12 Kellerräume und ein Trockenraum
- 9 Balkone und 3 Terrassen
- Ausbaupotenzial
Lage
Mitten im Gemüsegarten von Rheinland-Pfalz liegt zwischen der Metropolregion Rhein-Neckar und dem Pfälzer Wald die liebenswerte und lebendige Stadt Schifferstadt. Sie bietet rund 20.000 Einwohnern einen hohen Wohn- und Freizeitwert. Die außergewöhnlich verkehrsgünstige Lage der Stadt mit direkten Anschlüssen an Autobahn und Schienennetz (S-Bahn, Fernverkehr, Verkehrsknotenpunkt) rücken sie in greifbare Nähe. Die Voraussetzungen hier sind ideal, um Kultur, Sehenswürdigkeiten und Erholung miteinander zu verbinden. Die sogenannte "Grüne Lunge" im Westen der Stadt entwickelt sich immer mehr zu einem Biotop. Spaziergänge lassen dort vergessen, dass man sich in einer dichtbesiedelten, pulsierenden Region befindet. Vor den Toren der Stadt liegen Wälder, Wiesen, Badeseen sowie die Rheinauen die Naturliebhabern und Sportlern vielfältige Möglichkeiten bietet. Auf mehr als 900 ha Waldfläche warten Wanderwege, Radwege und Reitwege erkundet zu werden. Die Rheinauen laden zum Spaziergang ein und der Naturpark Pfälzer Wald ist als Teil des Biosphärenreservats Pfälzer Wald für Wanderer und Naturfreunde ein verlockendes Erholungsziel. Die nahegelegenen bekannten Weinorte laden zu geselligen und über die Grenzen hinaus bekannten Weinfeste ein. Wenige Kilometer entfernt bieten sich die Städte Mannheim, Heidelberg und Speyer zu einem Einkaufstrip oder kulturellen Veranstaltungen an. Das kulturelle Angebot wie Konzerte, Theater, Museen und Ausstellungen lässt keine Wünsche offen. Die Einkaufsmöglichkeiten für den täglichen Bedarf werden durch REWE, LIDL, Kaufland, ALDI sowie einem DM abgedeckt. Ebenfalls sehr vielfältig und rege ist das Vereinsleben in Schifferstadt. Ein Schulzentrum mit Realschule plus und Gymnasium sowie die Volkshochschule und diverse Kindergärten lassen keine Wünsche offen.
Willkommen im herzlichen und offenen Schifferstadt!
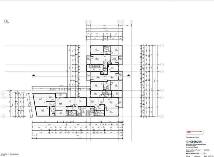
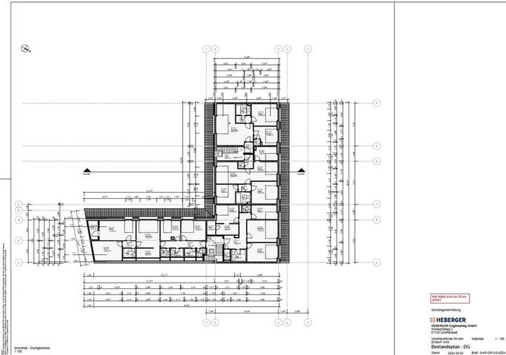
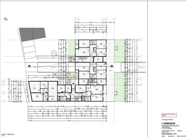
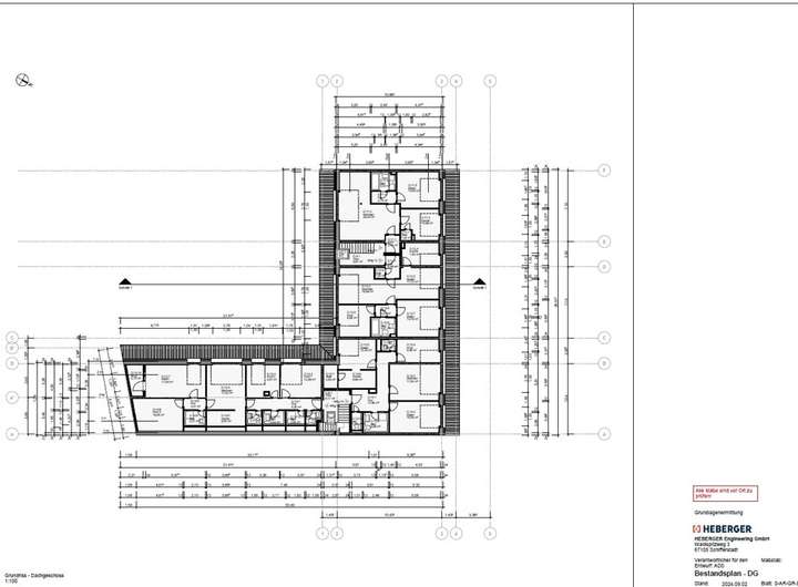
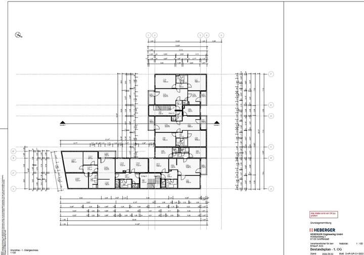
Grundriss
Grundriss OG Nr.48 b und c
>
>
Grundriss DG Nr.48 b und c
>
>
Grundriss UG Nr.48 b und c
>
>
Grundriss EG Nr.48 gesamt
>
>
Grundriss EG Nr.48
>
>
Grundriss OG Nr.48
>
>
Grundriss DG Nr.48
>
>
Grundriss UG Nr.48
>
>
Adresse
67105 Schifferstadt
Interessante Orte
Preis- und Lageinformationen
Preistrend für Bestandsimmobilien in Schifferstadt