Willkommen in Ihrem neuen Zuhause über den Dächern Berlin-Köpenicks! Dieses im Jahr 2021 fertiggestellte, hochwertige Dachgeschoss-Apartment besticht auf 93 Quadratmetern durch seinen lichtdurchfluteten Charakter und seine hochwertigen Ausstattungsmerkmale.
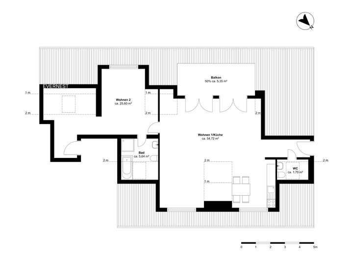
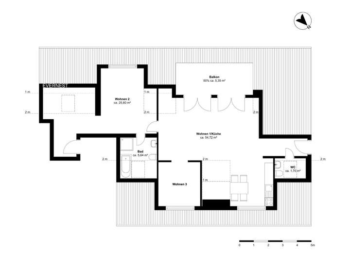
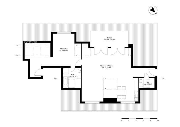
Der großzügige Wohnbereich mit offener Küche zeichnet sich durch sein flexibles Raumkonzept aus und verleiht der Wohnung ein loftartiges Ambiente. Die moderne Küche ist mit hochwertigen Markengeräten ausgestattet und fügt sich harmonisch in den Raum ein. Große Fenster sorgen für viel Tageslicht und bieten einen beeindruckenden Ausblick auf die Umgebung.
Vom Wohnbereich aus gelangen Sie in das Schlafzimmer, das zum ruhigen Gartenbereich ausgerichtet ist. Ein drittes Zimmer kann sowohl als Ankleide, Homeoffice oder Kinderzimmer genutzt werden.
Zusätzlichen Komfort bieten Ihnen die zwei separaten Bäder: ein Gästebad inklusive Waschmaschinenanschluss, sowie ein Masterbad mit Badewanne, Dusche und Handtuchheizkörper.
Ein absolutes Highlight der Wohnung ist die großzügige Dachterrasse mit Süd-Ausrichtung. Hier können Sie ungestört die Sonne genießen und vom Tag entspannen.
Die gesamte Wohnung wird durch eine Fußbodenheizung erwärmt. Dreifach verglaste Fenster sorgen für eine hervorragende Wärme- und Schalldämmung. Elektrisch gesteuerte Markisen bieten Ihnen die Möglichkeit, das Tageslicht ganz nach Ihren Wünschen zu steuern. Im gesamten Wohnbereich wurde edles Eichenholzparkett verlegt, das für eine elegante und warme Atmosphäre sorgt.
Hinter dem Wohnhaus befindet sich ein Gemeinschaftsgarten, der zum Verweilen im Freien einlädt und zusätzlichen Raum für Erholung bietet. Zur Wohnung gehört zudem ein Kellerabteil.
Finanzierung zu nur 0,6%: Nutzen Sie die Möglichkeit der Übernahme des laufenden Kredits der Eigentümer zu herausragenden Konditionen mit einem effektiven Jahreszins von nur 0,6% und einer Restlaufzeit von 7 Jahren.
Diese günstigen Finanzierungsbedingungen ermöglichen Ihnen nicht nur eine erhebliche Kostenersparnis, sondern auch eine planbare und sichere Finanzierung Ihres neuen Zuhauses.
Profitieren Sie von dieser einmaligen Gelegenheit und gestalten Sie Ihre Wohnträume zu besten Konditionen!
Traumhaftes Dachgeschoß mit Loftfeeling - ab 0,6% finanzieren!
12555 Berlin
Die vollständige Adresse der Immobilie erhalten Sie vom Anbieter.
Auf Karte anzeigen
Die vollständige Adresse der Immobilie erhalten Sie vom Anbieter.
Finanzierungszertifikat
In nur zwei Minuten zu Ihrem persönlichen Finanzierungszertifkat.
Infos
| Wohnungskategorie | Dachgeschoss |
|---|---|
| Wohnfläche ca. | 93 m2 |
| Bezugsfrei ab | 2025-01-01 |
| Zimmer | 3,5 |
| Schlafzimmer | 1 |
| Badezimmer | 1 |
Kosten
| Kaufpreis |
560.000 € |
|---|---|
| Hausgeld |
453 € |
| Provision |
3.57 % inkl. MwSt. Bei Abschluss eines notariellen Kaufvertrages ist eine Käuferprovision vom Käufer in Höhe von 3.57 % inkl. MwSt. aus dem Kaufpreis fällig. |
Finanzierungsrechner:
Kaufpreis:
600.000 €
Eigenkapital:
600.000 €
Monatliche Rate
0 €
Effektiver Jahreszins
0 %
Sollzinsbindung
10 Jahre
Bausubstanz & Energieausweis
| Baujahr | 2021 |
|---|---|
| Letzte Sanierung | 2021 |
| Objektzustand | Neuwertig |
| Qualität der Austattung | Gehoben |
| Heizungsart | Fernwärme |
| Wesentliche Energieträger | Fernwärme |
| Energieausweis | liegt vor |
| Energieausweistyp | Verbrauchsausweis |
| Energieverbrauchskennwert | 117,0 kWh/(m²*a) |
| Energieeffizienzklasse | D |
117,0
kWh/(m²*a)
Energieeffizienzklasse D
- A+
- A
- B
- C
- D
- E
- F
- G
- H
- 0
- 25
- 50
- 75
- 100
- 125
- 150
- 175
- 200
- 225
- >250
Beschreibung des Objekts
Ausstattung
- Finanzierung zu 0,6% möglich
- Loftartiger Wohnbereich mit offener Küche
- Moderne Einbauküche mit Dekton Arbeitsplatte
- Dachterrasse mit Süd-West-Ausrichtung und Bankirai
- Ankleidezimmer mit hochwertigen Einbauschränken
- Großzügiges Vollbad mit Fenster
- Gästebad mit Fenster und Waschmaschinenanschluss
- Zwei separate Zugänge zur Wohnung
- Fernwärme
- Hochwertiges Eichenholzparkett
- Fußbodenheizung
- Dreifach verglaste Fenster
- Markisen mit elektronischer Steuerung
- Gemeinschaftsnutzung der großzügigen Gartenanlage
- Kellerraum mit Fenster
Lage
Köpenick, ein malerischer Bezirk im Südosten Berlins, vereint urbanes Leben mit naturnahen Erholungsgebieten. Bekannt für seine idyllische Altstadt, die von historischen Gebäuden und dem charmanten Schloss Köpenick geprägt ist, bietet dieser Stadtteil eine einzigartige Atmosphäre. Die Lage am Wasser, insbesondere an der Dahme und der Spree, lädt zu Freizeitaktivitäten wie Bootfahren und Radfahren ein.
Die gute Anbindung an das Berliner Verkehrsnetz ermöglicht eine schnelle Erreichbarkeit der Berliner Innenstadt, während die ruhige Wohngegend ein entspanntes und grünes Lebensumfeld schaffen.
Zahlreiche Einkaufsmöglichkeiten, Cafés und Restaurants sorgen für eine hohe Lebensqualität. Die Kombination aus historischer Architektur, grünen Parks und einem lebendigen Gemeinschaftsleben macht Köpenick zu einem attraktiven Wohnort für Menschen jeden Alters.
Entdecken Sie die Vorzüge dieses charmanten Bezirks und finden Sie Ihr neues Zuhause in Köpenick!
Grundriss
Dachgeschoss
>
>
Dachgeschoss
>
>
Adresse
12555 Berlin
Interessante Orte
Preis- und Lageinformationen
Preistrend für Bestandsimmobilien in Köpenick (Köpenick)