Neu bei Fischer & Schäfer Immobilien, Ihrem Immobilienmakler für Dortmund, Ruhrgebiet, Balve & Sauerland:
Bei diesem Angebot handelt es sich um ein interessantes Grundstück in Balve-Beckum.
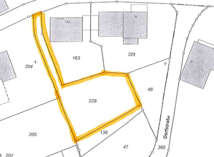
Das Grundstück hat eine Fläche von insgesamt ca. 600 m².
Die Kaufpreis entspricht dem aktuellen Bodenrichtwert von 75,00 Euro pro m².
Das Grundstück liegt nicht im Geltungsbereich eines rechtsverbindlichen Bebauungsplanes und ist dem planungsrechtlichen Innenbereich nach § 34 BauGB zuzuordnen. Danach ist ein Bauvorhaben grundsätzlich zulässig, wenn es sich nach Art und Maß der baulichen Nutzung, der Bauweise und der Grundstücksfläche, die überbaut werden soll, in die Eigenart der näheren Umgebung einfügt und die Erschließung gesichert ist. Die Anforderungen an gesunde Wohn- und Arbeitsverhältnisse müssen gewahrt bleiben und das Ortsbild darf nicht beeinträchtigt werden.
Unter Berücksichtigung der vorhandenen Umgebungsbebauung könnte sich ein Einfamilienhaus realisieren lassen. Eine entsprechende Nutzungsmöglichkeit ist durch den Erwerber mit dem zuständigen Planungsamt zu prüfen.
Laut schriftlicher Aussage des Bauamtes vom Märkischen Kreis bestehen gegen eine Bebauung aus planungsrechtlicher Sicht grundsätzlich keine Bedenken. Wir empfehlen eine Bauvoranfrage zur verbindlichen Klärung der Bebaubarkeit.
Grundsätzlich könnten sich die Eigentümer des Flurstücks 229 auch optional vorstellen, eine weitere Zuwegung für das zu vermarktende Grundstück (Flurstück 228) über ihr Grundstück zu ermöglichen und eine Zuwegungsbaulast eintragen zu lassen oder den entsprechenden Grundstücksteil zu veräußern.
Interessantes Grundstück (ca. 600m²) in Balve-Beckum im Sauerland / Märkischer Kreis zu verkaufen
58802 Balve
Die vollständige Adresse der Immobilie erhalten Sie vom Anbieter.
Auf Karte anzeigen
Die vollständige Adresse der Immobilie erhalten Sie vom Anbieter.
Finanzierungszertifikat
In nur zwei Minuten zu Ihrem persönlichen Finanzierungszertifkat.
Infos
| Vermarktungsart | Kaufen |
|---|---|
| Grundstücksfläche | 600 m2 |
Kosten
| Miete pro Jahr |
45.000 € |
|---|---|
| Provision |
3,57 % vom Kaufpreis inkl. MwSt. |
Finanzierungsrechner:
Kaufpreis:
600.000 €
Eigenkapital:
600.000 €
Monatliche Rate
0 €
Effektiver Jahreszins
0 %
Sollzinsbindung
10 Jahre
Beschreibung des Objekts
Lage
Das Grundstück befindet sich in ruhiger Lage im sauerländischen Balve-Beckum / Märkischer Kreis.
Zu unterstreichen ist die beliebte und sehr gefragte Wohngegend mit Dorfcharakter.
Die Nachbarschaft ist geprägt von überwiegend Ein- und Zweifamilienhäusern.
Beckum ist ein Dorfteil der Stadt Balve, dort leben aktuell ca. 1.200 Einwohner.
Insgesamt leben in Balve und den eingeschlossenen Ortsteilen wie Balve-Garbeck, Balve-Langenholthausen, Balve-Mellen, Balve-Volkringhausen, Balve-Eisborn etc. gut 11.000 Einwohner.
Balve ist unter anderem bekannt durch das überregional bedeutende Reitturnier "Balve Optimum".
Zudem verfügt die Stadt Balve über ein weiteres Alleinstellungsmerkmal, die Balver Höhle, mit diversen Kultur- und Eventangeboten.
Die Umgebung bietet vielseitige Erholungs- und Freizeitmöglichkeiten wie zum Beispiel den Sorpesee (nur ca. zehn Minuten entfernt) oder auch diverse Wander- und Radwege.
Das Stadtzentrum Balve mit verschiedenen Einkaufsmöglichkeiten sowie Ärzte und Apotheken sind mit dem PKW in wenigen Minuten erreichbar.
Kindergärten sowie Schulen befinden sich in Balve-Beckum sowie in Balve.
Mit öffentlichen Verkehrsmitteln (Bus oder Bahn) haben Sie Anschluss an die nächst größeren Städte wie Menden, Hemer, Iserlohn etc.
Die Bahnhaltestelle "Sanssouci" erreichen Sie fußläufig in rund fünfzehn Minuten (ca. 1,5 km).
Auch eine Bushaltestelle ist ebenfalls nur ca. 500 m entfernt.
Dortmund ist mit dem Auto per Auto und Bahn in knapp 60 Minuten zu erreichen.
Sonstige Angaben
Die Maklerprovision beträgt 3,57 % inkl. Mehrwertsteuer.
Zu Besichtigungsterminen bitten wir Sie, Ihren Personalausweis / Reisepass mitzubringen, da wir zur Erfassung Ihrer Personaldaten vom Gesetzgeber gemäß Geldwäschegesetz verpflichtet sind. Vielen Dank für Ihre Unterstützung.
Haftungsausschluss:
Trotz regelmäßiger Prüfung von Daten, Bildern und Informationen übernehmen wir keine Gewähr für die Richtigkeit der Angaben, da das Exposé anhand der Unterlagen und Informationen des Verkäufers erstellt wurde. Ein Zwischenverkauf bleibt vorbehalten.
Weitere interessante Objekte finden Sie auf der Webseite von Fischer & Schäfer Immobilien, Ihrem Immobilienmakler in Dortmund, Ruhrgebiet, Balve, Sundern, Neuenrade, Menden, Hemer, Iserlohn, Sauerland und Nordrhein-Westfalen, für Verkauf / Ankauf von Haus, Grundstück, Wohnung, Gewerbe-, Geschäfts-, Ferien-, und anderen Immobilien, unter www.fs-immobilien24.de
Aktuell suchen wir für ausgewählte Interessenten / im Kundenauftrag folgende Immobilien:
Wir suchen im Kundenauftrag folgende Immobilien:
1. Einfamilienhaus in Herdecke
2. Einfamilienhaus in Dortmund-Gartenstadt, Kirchhörde oder Lücklemberg
3. Einfamilienhaus in Dortmund-Holzen
4. Einfamilienhaus in Dortmund-Barop, Hombruch und Witten
5. Eigentumswohnung in Dortmund, südliche Stadtmitte
6. Eigentumswohnung mit Fahrstuhl, ca. 100 m², in Dortmund-Stadtmitte und Dortmund-Süd
7. Penthouse mit Fahrstuhl, ab ca. 200 m², in Dortmund-Stadtmitte und Dortmund-Süd
8. Eigentumswohnung in Dortmund-Stadtmitte oder Körne
9. Eigentumswohnung in Dortmund-Dorstfeld, Hombruch, Oespel sowie Umgebung
10. Baugrundstück für ein Mehrfamilienhaus in Dortmund-Süd
11. Grundstück für eine Gewerbeimmobilie in Dortmund an der B1 oder B54, ab 2.500 m²
12. Grundstück für eine Gewerbeimmobilie in Dortmund-Mitte, mindestens 2.500 m²
13. Gewerbeimmobilie zum Kauf für ein produzierendes Gewerbe, bis ca. 3.000 m², in Iserlohn, Hemer oder Menden
14. Gewerbefläche zur Miete für eine Praxis / Physiotherapie in Balve
15. Mehrfamilienhäuser ab ca. 350 m² Wohnfläche in Dortmund, Witten, Bochum, Unna, Schwerte, Iserlohn, Hemer, Menden, Arnsberg, Neheim, Sundern, Balve & Umgebung
16. Mehrfamilienhaus in der westlichen Dortmunder Nordstadt und Dortmund-Hafen
17. Investitions- und Gewerbeobjekte sowie Mehrfamilienhäuser
18. Gepflegtes Wohnhaus auf Sylt, vorzugsweise in Wenningstedt oder Kampen, ab 120 m², bis 1.500.000,00 Euro
19. Ferienhaus / Finca mit Meerblick auf Mallorca, vorzugsweise in Palma, Son Vida, Andratx oder Cala Ratjada
In diesem Zusammenhang möchten wir auf unsere interessante Tippgeberprovision verweisen.
Informationen finden Sie auf unserer Internetseite unter: www.fs-immobilien24.de