Auf dem 1.014 m² großen Grundstück liegt bereits eine genehmigte Planung für ein hochwertiges Mehrfamilienhaus mit 5 Wohneinheiten und insgesamt ca. 382 m² Wohnfläche vor.
Das durchdachte Konzept kombiniert zeitgemäße Architektur mit gehobenem Wohnkomfort und bietet ideale Voraussetzungen für ein renditestarkes Neubauprojekt.
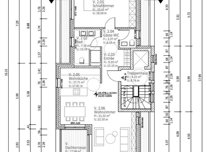
Die geplanten Einheiten reichen von kompakten Zwei-Zimmer-Wohnungen bis hin zu einer großzügigen Maisonette und einer exklusiven Dachgeschosswohnung mit großer Südterrasse – jeweils mit lichtdurchfluteten Grundrissen, Loggien oder Terrassen sowie barrierefreiem Zugang über einen Aufzug.
Besonders interessant für Kapitalanleger:
• hohe Sonderabschreibungsmöglichkeiten beim Bau eines QNG zertifizerten Gebäude
• KfW-Förderkredite - Zinsgünstige Finanzierung
• hohes Wertsteigerungspotenzial für Gebäude mit QNG Standard
• flexible Exit-Strategie - Einzelveräußerung der Wohnungen möglich
• Verkauf nach 10 Jahren steuerfrei möglich (bei Privatvermögen - §23 ESTGB)
• geringes Vermarktungsrisiko - hohe Nachfrage nach Wohnraum
Baugrundstück mit Baugenehmigung | Rendite trifft auf Qualität
22589 Hamburg
Die vollständige Adresse der Immobilie erhalten Sie vom Anbieter.
Auf Karte anzeigen
Die vollständige Adresse der Immobilie erhalten Sie vom Anbieter.
Finanzierungszertifikat
In nur zwei Minuten zu Ihrem persönlichen Finanzierungszertifkat.
Infos
| Vermarktungsart | Kaufen |
|---|---|
| Grundstücksfläche | 1.014 m2 |
Kosten
| Miete pro Jahr |
1.090.000 € |
|---|---|
| Provision |
6,25 % inkl. ges. MwSt. |
Finanzierungsrechner:
Kaufpreis:
600.000 €
Eigenkapital:
600.000 €
Monatliche Rate
0 €
Effektiver Jahreszins
0 %
Sollzinsbindung
10 Jahre
Beschreibung des Objekts
Lage
Das Baugrundstück befindet sich in einer ruhigen und zugleich hervorragend angebundenen Wohnstraße zwischen den begehrten Stadtteilen Hochkamp und Blankenese im Bereich Iserbrook, Gemarkung Dockenhuden. Die Umgebung zeichnet sich durch eine harmonische Bebauung mit gepflegten Einfamilien- und kleinen Mehrfamilienhäusern aus, eingebettet in großzügige Gärten mit altem Baumbestand. Bildungseinrichtungen, darunter Kindergärten sowie Grund- und weiterführende Schulen, sind bequem erreichbar und machen die Lage besonders attraktiv für Familien. Die Verkehrsanbindung ist sehr gut, verschiedene Buslinien und die S-Bahnstationen Blankenese sowie Hochkamp sorgen für eine schnelle und komfortable Erreichbarkeit des Hamburger Stadtzentrums, das in etwa 30 Minuten erreichbar ist. Diese Lage bietet beste Voraussetzungen für ein attraktives und nachhaltig vermietbares Wohnprojekt.
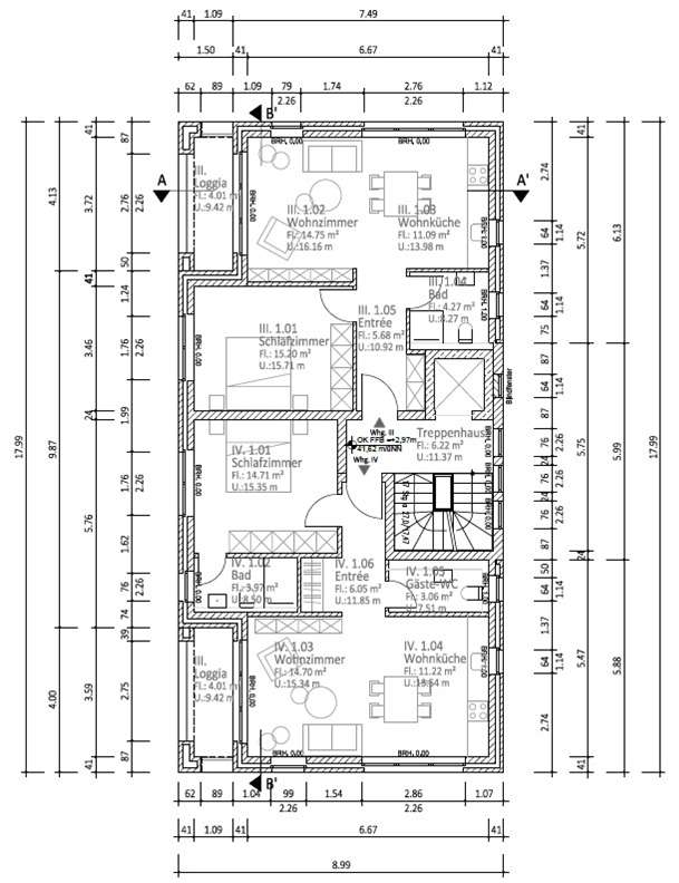
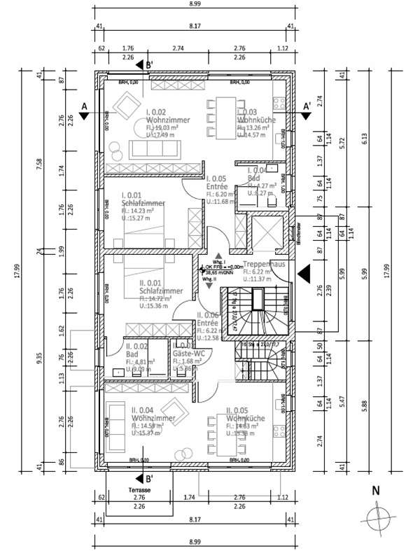
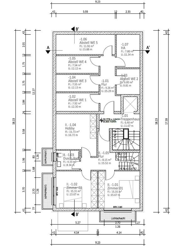
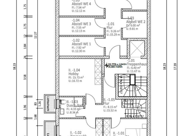
Grundriss
Erdgeschoss
>
>
Obergeschoss
>
>
Staffelgeschoss
>
>
Untergeschoss
>
>
Freiflächenplan
>
PDF
Download
>