Dieses ehemalige Katholische Gymnasium und unter Denkmalschutz stehende Mehrfamilienhaus vereint historischen Charme mit einer attraktiven Kapitalanlage.
Mit einer Wohnfläche von ca. 503 m² auf einem ca. 472 m² großen Grundstück bietet das laufend instand gehaltene Objekt eine solide Substanz und eine langfristige Wertbeständigkeit.
Die Immobilie umfasst vier vermietete Wohneinheiten, die sich auf ein Vorder- und ein Hinterhaus verteilen und eine vielseitige Nutzung ermöglichen.
Das Gebäude verfügt über ein Kellergeschoss mit einem zentralen Kellerflur und vier Kellerräumen, die der Erdgeschosswohnung zur alleinigen Nutzung zur Verfügung stehen.
Die Erdgeschosswohnung kann durch den Hausflur sowie durch einen separaten Eingang auf der Rückseite betreten werden. Im Erdgeschoss des Vorderhauses befinden sich ein Schlafzimmer, ein Wohnzimmer, ein Kinderzimmer, eine Küche, ein Gäste-WC sowie mehrere Flure, die zu einem weiteren Schlafzimmer und einem Badezimmer führen. Ein Innenhof mit Terrasse und Garten steht dem Erdgeschossmieter ebenfalls zur Verfügung. Im Zwischengeschoss des Vorderhauses, das der Erdgeschosswohnung zugeordnet ist, befinden sich ein weiteres Schlafzimmer und ein Abstellraum.
Das Erdgeschoss des Hinterhauses umfasst eine separate Wohneinheit mit einer Küche, einem Wohnzimmer, einem Schlafzimmer und einem Gäste-WC. Eine Terrasse sowie ein Garten gehören ebenfalls zu dieser Einheit. Das erste Obergeschoss des Hinterhauses beherbergt ein Schlafzimmer, ein Kinderzimmer und ein Badezimmer, das im Jahr 2017 vollständig modernisiert wurde.
Im 1. Obergeschoss des Vorderhauses befinden sich ein Gäste-WC, eine Abstellkammer, eine Küche, ein Esszimmer, ein Wohnzimmer sowie mehrere Flure, die zu einem weiteren Bad, einem Kinderzimmer und einem Schlafzimmer führen.
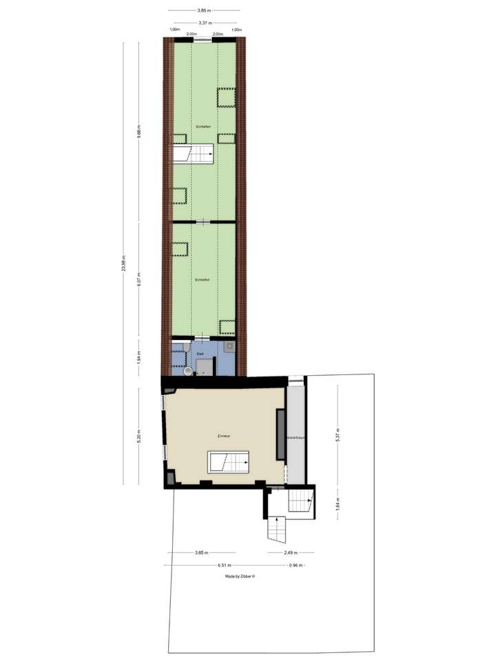
Das Dachgeschoss des Vorderhauses bietet zusätzlichen Wohnraum mit einem großen Wohnzimmer, einem Schlafzimmer, einem Kinderzimmer, einer Küche, einem Badezimmer sowie einer Abstellkammer.
Auf der Rückseite des Hauses befinden sich zwei Stellplätze sowie ein Gartenhaus, das im Jahr 2021 erneuert wurde.
Durch eine Neuvermietung und zwei Mietanpassungen, beträgt die neue Jahreskaltmiete nun 35.040 €, wobei in der Zukunft noch weiteres Steigerungspotenzial besteht.
Die laufenden Instandhaltungsmaßnahmen, wie z. B. die Instandsetzung der Dächer in den Jahren 2018 und 2019 sowie die Fenstersanierung im Jahr 2019, sorgen für den Erhalt der wertvollen Substanz und machen die Immobilie zu einer attraktiven und nachhaltigen Investition. Weitere durchgeführte Modernisierungen stellen wir Ihnen auf Anfrage gerne zur Verfügung.
Dieses denkmalgeschützte Mehrfamilienhaus zeichnet sich durch seine historische Architektur, die großzügige Wohnfläche und die stabile Mieterstruktur aus.
Faktor 13,6 im Denkmalschutz! Das Objekt im Zentrum von Rheinberg-Orsoy in der Nähe des Rheins!
47495 Rheinberg
Die vollständige Adresse der Immobilie erhalten Sie vom Anbieter.
Auf Karte anzeigen
Die vollständige Adresse der Immobilie erhalten Sie vom Anbieter.
Finanzierungszertifikat
In nur zwei Minuten zu Ihrem persönlichen Finanzierungszertifkat.
Infos
| Haustyp | Mehrfamilienhaus |
|---|---|
| Wohnfläche ca. | 503 m2 |
| Nutzfläche | 137 m2 |
| Grundstücksfläche | 472 m2 |
| Zimmer | 19 |
| Schlafzimmer | 12 |
| Badezimmer | 4 |
| Garage/Stellplatz | Außenstellplatz |
| Anzahl Garage/Stellplatz | 2 |
Kosten
| Kaufpreis |
478.000 € |
|---|---|
| Provision |
3,57 % inkl. MwSt. |
Finanzierungsrechner:
Kaufpreis:
600.000 €
Eigenkapital:
600.000 €
Monatliche Rate
0 €
Effektiver Jahreszins
0 %
Sollzinsbindung
10 Jahre
Bausubstanz & Energieausweis
| Baujahr | 1766 |
|---|---|
| Bauphase | Haus fertig gestellt |
| Denkmalschutzobjekt | Ja |
| Objektzustand | Modernisiert |
| Heizungsart | Etagenheizung |
| Wesentliche Energieträger | Gas |
| Energieausweis | laut Gesetz nicht erforderlich |
Beschreibung des Objekts
Ausstattung
Raumausstattung EG - Wohnung:
- aktuelle Bodenbeläge: Holzdielen, Holzdielen mit Parkett, Fliesen
- Gäste-WC
- Bad mit Badewanne und Dusche
- Fenster Vorderseite: Fenster aus Holz mit zweifacher Einfachverglasung tlw. mit Sprossen
- Fenster Rückseite: Fenster aus Kunststoff mit zweifach Verglasung
Raumausstattung 1. OG - Wohnung:
- aktuelle Bodenbeläge: Holzdielen mit Parkett, Fliesen
- Gäste-WC mit Waschmaschinenanschluss
- Bad mit Badewanne und Dusche
- Fenster Vorderseite: Fenster aus Holz mit zweifacher Einfachverglasung tlw. mit Sprossen
- Fenster Rückseite: Fenster aus Kunststoff mit zweifach Verglasung
Raumausstattung DG - Wohnung:
- aktuelle Bodenbeläge: Holzdielen, Holzdielen mit Parkett, Fliesen
- Bad mit Badewanne und Dusche
- Fenster: Fenster und Dachflächenfenster aus Kunststoff mit zweifach Verglasung
Raumausstattung Anbau - Wohnung:
- aktuelle Bodenbeläge: Holzdielen, Holzdielen mit Kork, Fliesen
- Gäste-WC
- Bad mit Dusche
- Fenster: Fenster aus Holz mit zweifach Verglasung; Dachflächenfenster aus Kunststoff oder Holz mit zweifach Verglasung
Besondere / Sonstige Einrichtungen:
- Keller für die EG-Wohnung
- Terrasse für die EG- Wohnung und Wohnung im Anbau
- Gartenhaus
- 2 Stellplätze
Technische Gebäudeausstattung:
- Gasetagenheizungen (Anbau und 1. OG von 2023, DG von 2019, EG von 2018)
- Warmwasser dezentral über die Heizung
Lage
Willkommen in Rheinberg-Orsoy, einem ruhigen Stadtteil der charmanten Stadt Rheinberg am Niederrhein. Dieses Mehrfamilienhaus liegt in einer Wohn- und Geschäftsstraße, die für eine angenehme Atmosphäre bekannt ist.
Naturnah und dennoch bestens angebunden – Orsoy besticht durch seine unmittelbare Nähe zum Rhein und den weitläufigen Grünflächen der Umgebung. Ob für einen Spaziergang am Rheinufer, eine Fahrradtour oder einfach zur Erholung im Grünen – hier lässt sich das Leben in vollen Zügen genießen. Gleichzeitig profitieren Sie von einer gut ausgebauten Infrastruktur und kurzen Wegen zu allen wichtigen Einrichtungen des täglichen Bedarfs.
Trotz der idyllischen Lage sind Einkaufsmöglichkeiten, Schulen, Kindergärten und Freizeiteinrichtungen bequem erreichbar. Supermärkte, Bäckereien, Apotheken sowie Restaurants und Cafés befinden sich in der näheren Umgebung und laden zum entspannten Verweilen ein.
Trotz der ruhigen Lage haben Sie eine gute Anbindung an die umliegenden Städte wie Moers und Duisburg. Die Fähre, die nach Duisburg-Walsum fährt, ist in kürzester Zeit erreicht. Die Autobahnen A42 und A57 sind schnell erreichbar und ermöglichen eine zügige Verbindung nach Duisburg, Moers, Düsseldorf und darüber hinaus. Der öffentliche Nahverkehr ist durch die 913 die Sie nach Moers-Hülsdonk - DU-Baerl - Orsoy - Rheinberg - Annaberg bringt.
Insgesamt bietet dieses Mehrfamilienhaus in Rheinberg-Orsoy eine perfekte Mischung aus ruhigem Wohnen in naturnaher Umgebung und urbaner Infrastruktur. Hier genießen Sie die Vorzüge einer freundlichen Nachbarschaft in einer der schönsten Lagen am Niederrhein.
Sonstige Angaben
Selektive - Ihr Mehrwertmakler
Als besonderen Service bieten wir für Kaufinteressenten individuelle und unabhängige Finanzierungsberatungen an. Aus einer Vielzahl von Kreditgebern suchen wir für Sie das günstigste Angebot heraus und stellen Ihnen ein persönliches Konzept zusammen. Unsere Beratung ist für Sie selbstverständlich gebührenfrei.
Sie sind bereits Eigentümer einer Immobilie? Wir beraten Sie gerne und unverbindlich über Ihre Möglichkeiten. Ein Immobilienwertgutachten nach § 194 BauGB kann für Sie von unserem zertifizierten Gutachter erstellt werden. Besuchen Sie unsere Homepage www.selektive.de oder wenden Sie sich gleich an Ihren Immobilienprofi unter der Tel. 02841 88 99 60.
Als erstes etabliertes Maklerbüro am Niederrhein konnten wir den Qualitätsnachweis für IVD- Immobilienmakler und Hausverwalter die Verbandszertifizierung in Anlehnung an die DIN ISO 9000 ff erlangen. Seit 1994 sind wir Ihr verantwortungsbewusster Partner in Immobilienfragen.
Alle Angaben zum Objekt erfolgen im Namen unseres Auftraggebers und dienen einer ersten Information. Für die Richtigkeit und Vollständigkeit wird keine Haftung übernommen.
Grundriss
Komplettansicht Grundstück mit
>
>
Edgeschoss Vorderhaus + Anbau
>
>
1. OG Anbau
>
>
1. Obergeschoss
>
>
Dachgeschoss
>
>
Kellergeschoss
>
>
Adresse
47495 Rheinberg
Interessante Orte
Preis- und Lageinformationen
Preistrend für Bestandsimmobilien in Rheinberg