Die Baugrundstücke können auch einzeln erworben werden. Größe der einzelnen Baugründe :
Grundstück 1 / 800 qm ,
Grundstück 2 / 800 qm
Grundstück 3 / 945 qm
Preis pro Quadratmeter 720 € VB
Die ruhig gelegenen Baugrundstücke stellen eine Baulücke dar, mitten in einem gepflegten Wohngebiet im Norden der Stadt Mühldorf. Das Grundstück darf z. B. mit einem Ein- oder Zweifamilienhäusern, DHH oder Reihenhäusern bebaut werden. Es ist kein Bebauungsplan vorhanden. Das Bauvorhaben muss sich nach Art, Maß und Nutzung einfügen( § 34 Baugesetzbuch). Es besteht kein Bauzwang. Das Grundstück ist erschlossen. Bahnhof und Innenstadt sind in wenigen Fahrminunten oder auch zu Fuß gut zu erreichen.
Der Autobahnanschluss A 94 München Passau liegt in der Nähe
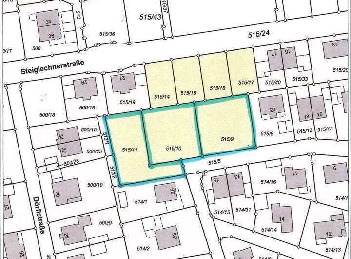
Verkauft werden 3 zusammenhängende Grundstücke mit je einer eigenen Flurnummer und einer Gesamtfläche von
2547 qm ( 947 qm +800qm +800 qm)
Baulücke! 3 herrliche Baugründe, erschlossen, in ruhiger Umgebung im Norden von Mühldorf
84453 Mühldorf am Inn
Die vollständige Adresse der Immobilie erhalten Sie vom Anbieter.
Auf Karte anzeigen
Die vollständige Adresse der Immobilie erhalten Sie vom Anbieter.
Finanzierungszertifikat
In nur zwei Minuten zu Ihrem persönlichen Finanzierungszertifkat.
Infos
| Vermarktungsart | Kaufen |
|---|---|
| Grundstücksfläche | 2.547 m2 |
| Erschließung | Erschlossen |
| Bebaubar nach | wie Nachbarbebauung |
| Verfügbar ab | sofort |
Kosten
| Miete pro Jahr |
0 € |
|---|---|
| Provision |
3,57% |
Finanzierungsrechner:
Kaufpreis:
600.000 €
Eigenkapital:
600.000 €
Monatliche Rate
0 €
Effektiver Jahreszins
0 %
Sollzinsbindung
10 Jahre
Beschreibung des Objekts
Lage
Mühldorf am Inn ist eine sehr lebenswerte Innstadt mit ca. 22 000 Einwohnern.
Der historische Stadtplatz mit vielen Geschäften , Lokalen und dem großen kulturellem Angebot sowie seinem südländischen Flair bietet hohe Lebensqualität. Große Einkaufszentren auf der günen Wiese runden das Angebot der Innenstadt ab so bleibt kein Kundenwunsch offen. Innerhalb 1 Stunde erreicht man Städte wie München, Rosenheim, Landshut oder Salzburg ebenso den Münchner Flughafen, ob mit dem Auto oder der Bahn. Der Norden Mühldorfs bietet gerade für Familien optimale Voraussetzungen. Kindergarten,-tagesstätten, Grund-und Mittelschule sowie das Gymnasium sind in unmittelbarer Nähe. Der Bahnhof für Pendler sehr schnell erreichbar. Viele Freizeitmöglichkeiten, ob Golf, Tennis, Reiterhöfe oder die schöne Natur zum Radfahren oder Walken liegen direkt vor der Haustüre.
Autobahnanschluss A 94 oder der Bahnhof sind in 5 Fahrminuten erreicht.
Eine sehr gute Infrastruktur überzeugt.
Sonstige Angaben
Eine Besichtigung des Grundstückes ist jederzeit gerne möglich! Vereinbaren Sie einen Termin mit uns, wir sind nur einen Telefonhörer weit entfernt.
01577-5324567