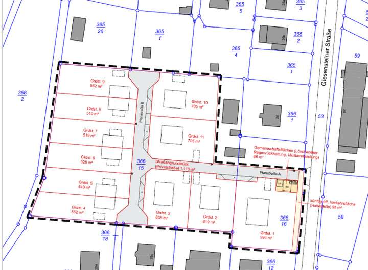
Zum Verkauf steht ein neu erschlossenes Baugrundstück in Berggießhübel in ruhiger Lage mit Blick in der sächsischen Schweiz.
In diesem Exposé finden Sie die Eckdaten zu dem Grundstück 5 - 543 m² für 105.885 € (ohne Kaufnebenkosten). Das Grundstück ist vollerschlossen und kann kurzfristig bebaut werden.
Geeignet ist das Grundstück für die Bebauung mit einer Doppelhaushälfte bei einem Quadratmeterpreis von 195 €.
Im Anhang finden Sie den Baubauungsplan für das neuerschlossene Wohngebiet inkl. der weiteren Grundstücke.
Sichern Sie sich Ihr Wunschgrundstück für die Erfüllung der eigenen Wohnträume.
Sollten Sie Fragen zur Baufinanzierung oder zur Planung Ihres Eigenheimes haben, stehen wir Ihnen gern zur Verfügung.
Grundstück (Nr. 5) für Ihr Eigenheim - Nähe Sächsischen Schweiz-Osterzgebirge *Bauträgerfrei*
Giesensteiner Str. ,
01816 Bad Gottleuba-Berggießhübel
Auf Karte anzeigen
Finanzierungszertifikat
In nur zwei Minuten zu Ihrem persönlichen Finanzierungszertifkat.
Infos
| Vermarktungsart | Kaufen |
|---|---|
| Grundstücksfläche | 543 m2 |
| Erschließung | Erschlossen |
| Empfohlene Nutzung | Doppelhaus, Einfamilienhaus |
| Bebaubar nach | Bebauungsplan |
| Verfügbar ab | sofort |
Kosten
| Miete pro Jahr |
105.885 € |
|---|---|
| Provision |
5,95% inkl. MwSt. Die Käuferprovision beträgt 5,95 % inkl. der gesetzlichen Mehrwertsteuer. |
Finanzierungsrechner:
Kaufpreis:
600.000 €
Eigenkapital:
600.000 €
Monatliche Rate
0 €
Effektiver Jahreszins
0 %
Sollzinsbindung
10 Jahre
Beschreibung des Objekts
Lage
Bad Gottleuba - Berggießhübel ist ein idyllischer Kurort in der Nähe von der Sächsischen-Schweiz. Das knapp 90 Quadratkilometer große Gemeindegebiet von Bad Gottleuba-Berggießhübel liegt etwa 45 Kilometer südöstlich vom Zentrum der sächsischen Landeshauptstadt Dresden. Es umfasst weite Teile des mittleren Gottleubatales sowie Teile der Einzugsgebiete von Bahra, Seidewitz und Bahre.
Sonstige Angaben
Courtagepassus
Die Courtage in Höhe von 5,95 % inkl. der gesetzlichen Mehrwertsteuer auf den Kaufpreis ist mit dem Zustandekommen des Kaufvertrages (notarieller Vertragsabschluss) verdient und fällig. Die Vermittelnden (Globalus Immobilien & Finanzen) und ggf. deren Beauftragter, erhalten einen unmittelbaren Zahlungsanspruch gegenüber dem Käufer (Vertrag zugunsten Dritter, § 328 BGB). Alle Angaben sind ohne Gewähr und basieren ausschließlich auf Informationen, die uns von unserem Auftraggeber zur Verfügung gestellt wurden. Wir übernehmen keine Gewähr für die Vollständigkeit, Richtigkeit und Aktualität dieser Angaben. Die Grunderwerbsteuer, Notar- und Grundbuchkosten sind vom Käufer zu tragen. Irrtum und Zwischenverkauf vorbehalten.
Für Anfragen oder einen Besichtigungstermin, füllen Sie bitte das Kontaktformular vollständig aus.
Vielen Dank!