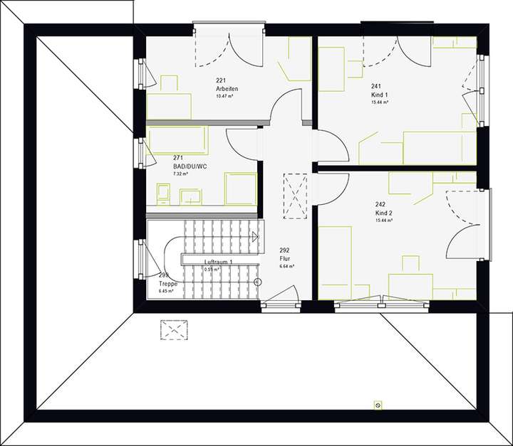
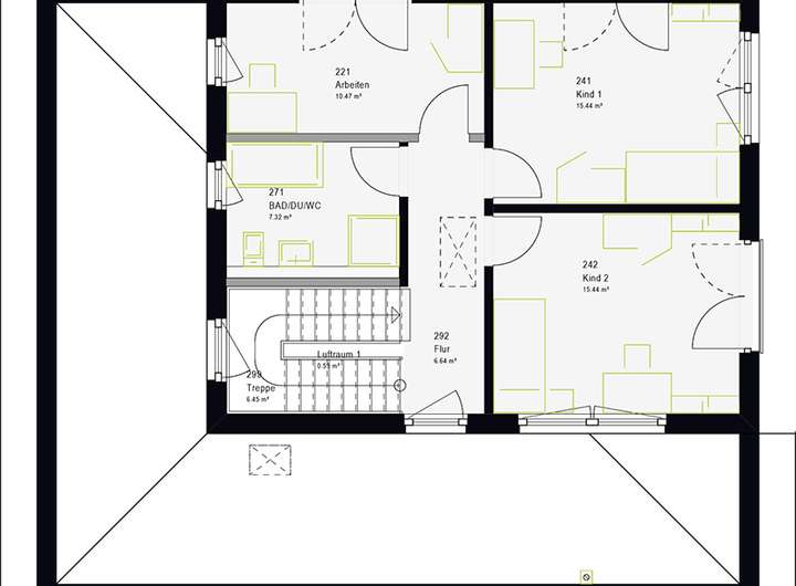
Mit einer modernen und extravaganten Architektur wird Sie das Einfamilienhaus LifeStyle17.02W auf rund 175m² Nettowohnfläche rundum überzeugen. Durch das harmonisch gestaltete Walmdach und das besondere Formenspiel der abgestuften Geschosse wird der Charme einer eleganten Stadtvilla gekonnt zum Ausdruck gebracht. Aus dem offenen Wohn-, Ess- und Küchenbereich führt der Weg durch große, 3-fach verglaste Türen hinaus in den Garten. Im Inneren unterstützen frei gestaltbare Raumzuschnitte eine kreative Raumnutzung – und sorgen mit serienmäßig höheren Wänden (275 cm) für ein atmosphärisch stimmiges Raumgefühl. Die vielen bodentiefen und großen Fenster bringen viel Licht und Sonne ins Haus. Im Obergeschoss befinden sich das Arbeitszimmer und 2 Kinderzimmer mit eigenem Bad. Ein Traum wird wahr .....
Extravagantes Wohnen in heiß begehrter Lage
96450 Coburg
Die vollständige Adresse der Immobilie erhalten Sie vom Anbieter.
Auf Karte anzeigen
Die vollständige Adresse der Immobilie erhalten Sie vom Anbieter.
Finanzierungszertifikat
In nur zwei Minuten zu Ihrem persönlichen Finanzierungszertifkat.
Infos
| Haustyp | Einfamilienhaus |
|---|---|
| Etagenzahl | 2 |
| Wohnfläche ca. | 175 m2 |
| Nutzfläche | 175 m2 |
| Grundstücksfläche | 893 m2 |
| Bezugsfrei ab | 2026 |
| Zimmer | 6 |
| Schlafzimmer | 3 |
| Badezimmer | 2 |
| Garage/Stellplatz | Außenstellplatz |
| Anzahl Garage/Stellplatz | 2 |
Kosten
| Kaufpreis |
379.500 € |
|---|---|
| Provision | Nein |
Finanzierungsrechner:
Kaufpreis:
600.000 €
Eigenkapital:
600.000 €
Monatliche Rate
0 €
Effektiver Jahreszins
0 %
Sollzinsbindung
10 Jahre
Bausubstanz & Energieausweis
| Baujahr | 2025 |
|---|---|
| Bauphase | Haus in Planung (projektiert) |
| Objektzustand | Erstbezug |
| Qualität der Austattung | Luxus |
| Heizungsart | Wärmepumpe |
| Wesentliche Energieträger | Solarheizung |
| Energieausweis | liegt vor |
| Energieausweistyp | Verbrauchsausweis |
| Energieverbrauchskennwert | 13,1 kWh/(m²*a) |
| Energieeffizienzklasse | A+ |
13,1
kWh/(m²*a)
Energieeffizienzklasse A+
- A+
- A
- B
- C
- D
- E
- F
- G
- H
- 0
- 25
- 50
- 75
- 100
- 125
- 150
- 175
- 200
- 225
- >250
Beschreibung des Objekts
Lage
Das Objekt liegt in Coburg-Creidlitz (Ortskern). In unmittelbarer Laufnähe sind mehrere Buslinien erreichbar., überregionale Ziele sind durch die nahe verkehrende Bahnlinie RB 24 mühelos zu erreichen. In näherer Umgebung finden Sie diverse Restaurants, eine hervorragende Bäckerei und gleich mehrere Supermärkte. Auch eine Grün- und Parkanlage, ein Modegeschäft, ein Friseur und eine Apotheke sind fußläufig gut zu erreichen.. Ebenfalls nicht weit entfernt finden Sie zudem mehrere Kindergärten, eine gute medizinische Versorgung, diverse Erholungs- und Sportangebote. Vielfältigste Ausgehmöglichkeiten, sowie die perfekte Infrastruktur einer Stadt gibt es schließlich im nahe gelegenen Coburg, keine 5 Fahrminuten entfernt.
Sonstige Angaben
weitere Informationen:
Deutschlands meistverkaufte Ausbauhäuser
- Über 50 Jahre Bauerfahrung
- Bezahlung des Hauses nach Montage/Abnahme
- Montage innerhalb von 2-3 Tagen
- professionelle Ausbau-Beratung vor Ort
- 33 Jahre Gewährleistung auf Grundkonstruktion
- Nachweislich gesundes Bauen: TÜV-Siegel "Toxproof"
- Nachhaltigkeitszertifikat DGNB
- Sicherheit eines deutschen Großunternehmens
- über 38.000 fertiggestellte Häuser bundesweit
Ich habe Ihr Interesse geweckt, dann rufen Sie mich einfach an. Sie erreichen mich unter 0152 29645549.
Grundriss
Grundriss-EG
>
>
Grundriss-OG
>
>
Adresse
96450 Coburg
Interessante Orte
Preis- und Lageinformationen
Preistrend für Bestandsimmobilien in Creidlitz