Bei der Gestaltung des Hauses war uns wichtig, etwas Besonderes zu schaffen, um dem Grundstück gerecht zu werden.
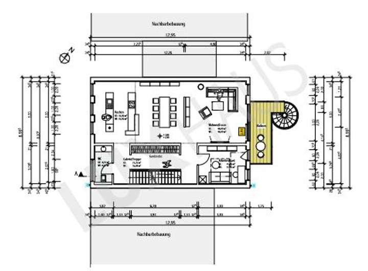
Innen ist der Mittelpunkt der sehr offene Wohn- / Koch- / Essbereich, der zugleich mit vielen Fenster versehen ist.
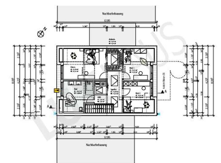
Sowohl im EG, als auch im OG wurde darauf Acht gegeben, möglichst große Fenster zu verwenden, damit alle Räume
ausreichend und darüber hinaus Tageslicht erhalten.
Der Grundriss sowie die Projektion wurde speziell für dieses Grundstück gestaltet, so dass die entsprechenden Bauvorschriften eingehalten wurden.
Anhand der individuellen Wünsche würden wir schauen, wie wir die Haus- / Grundstücksgröße bestmöglich für sie gestalten können.
Im Herzen von Köln tolles Neubau-Projekt nach Abriss - Schön geschnittene Wohnung mit Pool
50859 Köln
Die vollständige Adresse der Immobilie erhalten Sie vom Anbieter.
Auf Karte anzeigen
Die vollständige Adresse der Immobilie erhalten Sie vom Anbieter.
Finanzierungszertifikat
In nur zwei Minuten zu Ihrem persönlichen Finanzierungszertifkat.
Infos
| Haustyp | Besondere Immobilie |
|---|---|
| Etagenzahl | 3 |
| Wohnfläche ca. | 239 m2 |
| Grundstücksfläche | 900 m2 |
| Zimmer | 11 |
| Garage/Stellplatz | Außenstellplatz |
| Anzahl Garage/Stellplatz | 4 |
Kosten
| Kaufpreis |
1.500.000 € |
|---|---|
| Provision |
3,57% |
Finanzierungsrechner:
Kaufpreis:
600.000 €
Eigenkapital:
600.000 €
Monatliche Rate
0 €
Effektiver Jahreszins
0 %
Sollzinsbindung
10 Jahre
Bausubstanz & Energieausweis
| Baujahr | 2026 |
|---|---|
| Objektzustand | Erstbezug |
| Heizungsart | Wärmepumpe |
| Energieausweis | liegt vor |
| Energieausweistyp | Verbrauchsausweis |
| Energieverbrauchskennwert | 11,0 kWh/(m²*a) |
| Energieeffizienzklasse | A+ |
11,0
kWh/(m²*a)
Energieeffizienzklasse A+
- A+
- A
- B
- C
- D
- E
- F
- G
- H
- 0
- 25
- 50
- 75
- 100
- 125
- 150
- 175
- 200
- 225
- >250
Beschreibung des Objekts
Ausstattung
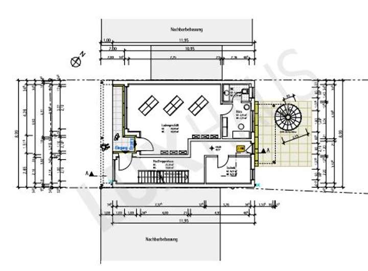
Tolle Wohnung mit Ladenlokal
Diese Projektion verbindet die Moderne mit dem Altbestand, damit das Satteldach-Haus ideal rein passt.
Attraktiv ist die Kombination aus Ladenlokal, das auch baurechtlich zulässig ist und
einer sehr großzügigen Wohnung mit Dachgauben nach vorne wie hinten,
die zugleich sehr licht-durchflutet ist.
Komplettiert wird der Entwurf mit einer schönen Außenanlage inkl. Pool.
Da noch keinerlei Baugenehmigung beantragt ist,
ist das Haus absolut individuell gestaltbar;
auch mehrere WG-Wohnungen wären durchaus denkbar.
Besichtigungstermine
Besichtigungstermine sind nach telefonischer Rücksprache
gerne nach Vereinbarung möglich.
In dem Kaufpreis sind folgende Kosten enthalten:
- Grundstückskauf (ohne Maklerprovision)
- Abrisskosten inkl. Keller & Abstützen zum Nebenhaus (Anbau)
- Haus wie im Entwurf über 2,5 Geschosse
- Poolanlage mit Terrasse
Stichworte
Zustand: Abrißobjekt, projektiert
Energiestandard: Niedrigenergie
TV: Sat-Anschluss, DVBT
Sonstiges/Wohnen: Hobbyraum
Versorgung: Eigene Stromversorgung
Sonstiges: Keller als Wohnraum nutzbar, frei werdend
Lage
Hier kann man nur sagen; LAGE - LAGE - LAGE
Ein großzügiges Grundstück nach hinten, dass keine Wünsche offen lässt.
Gerne mit Pool und geräumiger Terrasse zu planen.
Ansonsten befinden wir uns im Zentrum von Köln-Lövenich und
somit auch im Westen von Köln, mit unmittelbarer Nähe
zu Junkersdorf, sowie guter Stadtanbindung in die Kölner Innenstadt.
Adresse
50859 Köln
Interessante Orte
Preis- und Lageinformationen
Preistrend für Bestandsimmobilien in Lövenich