Raus aus der Miete. Rein ins eigene Heim. Warum solltest du deinem Vermieter seine Immobilien-Wertanlage abbezahlen? Sieh dir das SUNSHINE 144 an. Es ist wie gemacht für euch: Hier könnt ihr gemeinsam kochen, essen und abends einen Film streamen. Die Alternative: Rückzug! Ins separate Zimmer, ran an die Konsole und ungestört zocken. Es ist so ein geniales Gefühl, wenn man die hart verdiente Kohle in die eigenen vier Wände steckt und genau weiß, dass einem das Haus bald schon gehören wird. Niedrige Zinsen, staatliche Förderung, das Haus von Living Haus: Die Zeit ist reif. Jetzt. Hol dir DEIN ZUHAUSE.
## Euer Zuhause ##
99775 Ellrich
Die vollständige Adresse der Immobilie erhalten Sie vom Anbieter.
Auf Karte anzeigen
Die vollständige Adresse der Immobilie erhalten Sie vom Anbieter.
Finanzierungszertifikat
In nur zwei Minuten zu Ihrem persönlichen Finanzierungszertifkat.
Infos
| Haustyp | Einfamilienhaus |
|---|---|
| Etagenzahl | 2 |
| Wohnfläche ca. | 144 m2 |
| Grundstücksfläche | 2.470 m2 |
| Zimmer | 5 |
| Schlafzimmer | 3 |
| Badezimmer | 2 |
Kosten
| Kaufpreis |
441.140 € |
|---|
Finanzierungsrechner:
Kaufpreis:
600.000 €
Eigenkapital:
600.000 €
Monatliche Rate
0 €
Effektiver Jahreszins
0 %
Sollzinsbindung
10 Jahre
Bausubstanz & Energieausweis
| Baujahr | 2024 |
|---|---|
| Bauphase | Haus in Planung (projektiert) |
| Qualität der Austattung | Gehoben |
Beschreibung des Objekts
Ausstattung
Living Haus, da ist alles mit drin.
Grundstücks-Service
Finanzierungs-Service
Hausbau-Förderung
alle notwendigen Bauherren-Versicherungen
DGNB-Zertifizierung in Gold
der Architekt für die Baugenehmigungsplanung
Das alles brauchst du sowieso - deshalb bekommst du das bei Living Haus gleich mit dazu, ohne Zusatzkosten - Einfach alles mit drin. Und noch viel mehr.
Großartige Extra-Leistungen, die du so nirgends findest. Wie ...
unsere Living Haus Bau-Cockpit App, mit der hast du immer den Durchblick und bist auf dem aktuellen Projektstand
unser Zuhause-Paket
unser DIY-Ausbau-Coaching
unsere Ausbau-Tutorials, wir zeigen Dir wie es geht
die Bodenplatte oder der Keller
... Und sowieso inklusive: die richtige Hausbau-Beratung bei deinem Hausberater. Dabei gehen wir selbstverständlich auf alle Themen ein, die den Weg in das neue Zuhause betreffen.
Lass deiner Kreativität freien Lauf: Du nimmst den Innenausbau ja schließlich selbst in die Hand! Unser Zuhause-Paket, mit dem du wirklich ALLE Materialien direkt zu dir geliefert bekommst und sofort durchstarten kannst und eine Brise Inspiration sind die perfekte Basis für deinen individuellen Innenausbau.
Du musst dich nicht durch Bauvorschriften, Förderkataloge und technische Spezifikationen wühlen. Haben wir schon gemacht. Ergebnis: ein intelligent konfiguriertes Paket. Perfekt aufeinander abgestimmte Komponenten, die alle Vorteile vereinen.
+ Photovoltaik-Anlage
+ Batteriespeicher
+ Wärmepumpenheizung inkl. Komfortlüftung und Wärmerückgewinnung
+ Ideal gedämmte Gebäudehülle
= Dein Living Haus mit Deinem Plus an Sicherheit für die Zukunft
Melde dich, damit du und deine Familie DAS Zuhause bekommt, was ihr verdient.
Lage
Baugrundstück mit 2.470 qm liegt am südöstlichen Rand von Ellrich. Alle Versorgungsleitungen liegen in der Straße. Eine Bebauung ist gemäß §34 Baugesetzbuch möglich.
Die Stadt Ellrich befindet sich am Südrand des Harzes im äußersten Nordwesten des Freistaates Thüringen direkt an der Landesgrenze zu Niedersachsen. Sie ist ein bedeutender Verkehrsknotenpunkt und Standort der Gipsindustrie, aber auch touristisch von großem Interesse.
In unseren Tagen zählt die von dem im Harz entspringenden Fluss Zorge durchflossene Stadt etwa 4.000 Einwohner. Ellrich hat in unseren Tagen dennoch eine beachtliche Anzahl sehenswerter Bauwerke zu bieten.
Die Umgebung von Ellrich gehört zur Südharzer Gipskarstlandschaft, welche Sie auf dem abwechslungsreichen und interessanten Karstwanderweg erkunden können. Ein weiteres attraktives Betätigungsfeld für Wanderer stellt der nahe Stadtwald mit seinem Naturlehrpfad dar.
Ellrich liegt an der Bahnlinie Nordhausen-Northeim und ist über den öffentlichen Nahverkehr bequem zu erreichen.
Sonstige Angaben
Das hier angebotene Grundstück ist im obigen Preis eingerechnet, es wird ohne zusätzliche Provision an einen Living Haus-Bauherren bereitgestellt.
Zusätzliche Baunebenkosten müssen noch hinzugerechnet werden, hierüber beraten wir gern.
Wir bieten auch interessante Finanzierungsmöglichkeiten inklusive Beantragung aller Fördermittel!
Die Hausabbildungen und die Bilder der Inneneinrichtung zeigen möglicherweise Extras, die nicht im angegebenen Kaufpreis inbegriffen sind.
Gute Beratung ist der Anfang von Allem. Deshalb analysieren wir gemeinsam mit euch eure Vorstellungen, Wünsche und Bedürfnisse und finden so das für Dich und Deine Familie passende Living Haus.
Interessiert? Kontaktiere mich und vereinbare noch heute einen kostenlosen und unverbindlichen Beratungstermin.
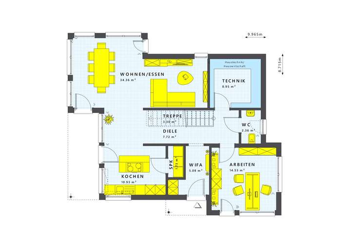
Grundriss
SUN 144 V6 EG
>
>
SUN 144 V6 DG
>
>
Adresse
99775 Ellrich
Interessante Orte
Preis- und Lageinformationen
Preistrend für Bestandsimmobilien in Ellrich