Träumen Sie von einem Eigenheim, das so einzigartig und unverwechselbar ist, wie Sie selbst? Dann schauen Sie sich doch unser SUNSHINE 154 genauer an. Es wartet darauf, von Ihnen ganz individuell designt zu werden, sodass es all´ Ihre Wohnwünsche erfüllen kann. Beim Gang durch die Diele, vorbei an der schicken, geradläufigen Treppe, zieht es den Blick hinaus in den Garten. Und je nachdem, biegen Sie rechst in den Koch-Essbereich ab - oder Sie machen es sich gleich gegenüber in der Sitzecke gemütlich. Heimkommen, ankommen, abschalten. Dafür eignet sich auch ein einladendes Plätzchen auf der Galerie im Dachgeschoss. Die Kinder? Auch sie haben hier oben ihr eigenes Reich mit Räumen zum Spielen, Lernen und Schlafen. Wie die beiden Wohngeschosse aufgeteilt sind, entscheiden Sie und Ihre Familie. Zum Beispiel: Riesenschlafzimmer oder eines mit separater Ankleide? Das SUNSHINE 154 pass t sich ganz und gar Ihrem Lifestyle an. Das gilt ebenso für die Architektur und Gestaltung. Sie werden begeistert sein, wie viele unterschiedliche Gesichter dieser Entwurf zeigen kann.
Nach Hause kommen und rundum wohlfühlen
99837 Dippach
Die vollständige Adresse der Immobilie erhalten Sie vom Anbieter.
Auf Karte anzeigen
Die vollständige Adresse der Immobilie erhalten Sie vom Anbieter.
Finanzierungszertifikat
In nur zwei Minuten zu Ihrem persönlichen Finanzierungszertifkat.
Infos
| Haustyp | Einfamilienhaus |
|---|---|
| Etagenzahl | 2 |
| Wohnfläche ca. | 153 m2 |
| Grundstücksfläche | 1.436 m2 |
| Zimmer | 5 |
| Schlafzimmer | 3 |
| Badezimmer | 2 |
Kosten
| Kaufpreis |
299.170 € |
|---|
Finanzierungsrechner:
Kaufpreis:
600.000 €
Eigenkapital:
600.000 €
Monatliche Rate
0 €
Effektiver Jahreszins
0 %
Sollzinsbindung
10 Jahre
Bausubstanz & Energieausweis
| Baujahr | 2024 |
|---|---|
| Bauphase | Haus in Planung (projektiert) |
| Qualität der Austattung | Gehoben |
Beschreibung des Objekts
Ausstattung
Living Haus, da ist alles mit drin.
Grundstücks-Service
Finanzierungs-Service
Hausbau-Förderung
alle notwendigen Bauherren-Versicherungen
DGNB-Zertifizierung in Gold
der Architekt für die Baugenehmigungsplanung
Das alles brauchst du sowieso - deshalb bekommst du das bei Living Haus gleich mit dazu, ohne Zusatzkosten - Einfach alles mit drin. Und noch viel mehr.
Großartige Extra-Leistungen, die du so nirgends findest. Wie ...
unsere Living Haus Bau-Cockpit App, mit der hast du immer den Durchblick und bist auf dem aktuellen Projektstand
unser Zuhause-Paket
unser DIY-Ausbau-Coaching
unsere Ausbau-Tutorials, wir zeigen Dir wie es geht
die Bodenplatte oder der Keller
... Und sowieso inklusive: die richtige Hausbau-Beratung bei deinem Hausberater. Dabei gehen wir selbstverständlich auf alle Themen ein, die den Weg in das neue Zuhause betreffen.
Lass deiner Kreativität freien Lauf: Du nimmst den Innenausbau ja schließlich selbst in die Hand! Unser Zuhause-Paket, mit dem du wirklich ALLE Materialien direkt zu dir geliefert bekommst und sofort durchstarten kannst und eine Brise Inspiration sind die perfekte Basis für deinen individuellen Innenausbau.
Du musst dich nicht durch Bauvorschriften, Förderkataloge und technische Spezifikationen wühlen. Haben wir schon gemacht. Ergebnis: ein intelligent konfiguriertes Paket. Perfekt aufeinander abgestimmte Komponenten, die alle Vorteile vereinen.
+ Photovoltaik-Anlage
+ Batteriespeicher
+ Wärmepumpenheizung inkl. Komfortlüftung und Wärmerückgewinnung
+ Ideal gedämmte Gebäudehülle
= Dein Living Haus mit Deinem Plus an Sicherheit für die Zukunft
Melde dich, damit du und deine Familie DAS Zuhause bekommt, was ihr verdient.
Lage
In Werra-Suhl-Tal Ortsteil Dippach steht ein großzügiges Baugrundstück in sonniger Lage zum Verkauf. Der Bauplatz liegt am östlichen Ortsrand mit herrlichem Weitblick.
1.436 m² umfasst die Fläche, welche Ihnen die perfekte Gelegenheit bietet, Ihr Eigenheim aufzubauen. Der Bauplatz ist teilerschlossen und in einem sehr gut gepflegtem Zustand.
Am Rande des Thüringer Waldes, unmittelbar an der hessisch-thüringischen Grenze liegt eingebettet in einer reizvollen Landschaft die Werratalgemeinde Dippach. Gleich hinter der Ortschaft erstreckt sich das "Hohe Rod" und bietet zahlreiche Wandermöglichkeiten zu den benachbarten Orten. Hat man erst einmal das "Hohe Rod" bestiegen, kann man einen herrlichen Blick übers Werratal genießen. Etwas weiter südöstlich macht der Auels Berg auf sich aufmerksam. Auch er war einst für unsere Vorfahren eine wichtige Verbindungsstrecke zu den Nachbarorten und steht ganz eng in Zusammenhang mit dem Spitznamen "Bärenfänger", den die Gemeinde Dippach trägt.
2 Schulen, Kindergarten, Schwimmbad, Einkaufmöglichkeiten sind vorhanden.
Rund um Dippach gibt es wunderschöne Ausflugsziele.
Sonstige Angaben
Das hier angebotene Grundstück ist im obigen Preis eingerechnet, es wird ohne zusätzliche Provision an einen Living Haus-Bauherren bereitgestellt.
Zusätzliche Baunebenkosten müssen noch hinzugerechnet werden, hierüber beraten wir gern.
Wir bieten auch interessante Finanzierungsmöglichkeiten inklusive Beantragung aller Fördermittel!
Die Hausabbildungen und die Bilder der Inneneinrichtung zeigen möglicherweise Extras, die nicht im angegebenen Kaufpreis inbegriffen sind.
Gute Beratung ist der Anfang von Allem. Deshalb analysieren wir gemeinsam mit euch eure Vorstellungen, Wünsche und Bedürfnisse und finden so das für Dich und Deine Familie passende Living Haus.
Interessiert? Kontaktiere mich und vereinbare noch heute einen kostenlosen und unverbindlichen Beratungstermin.
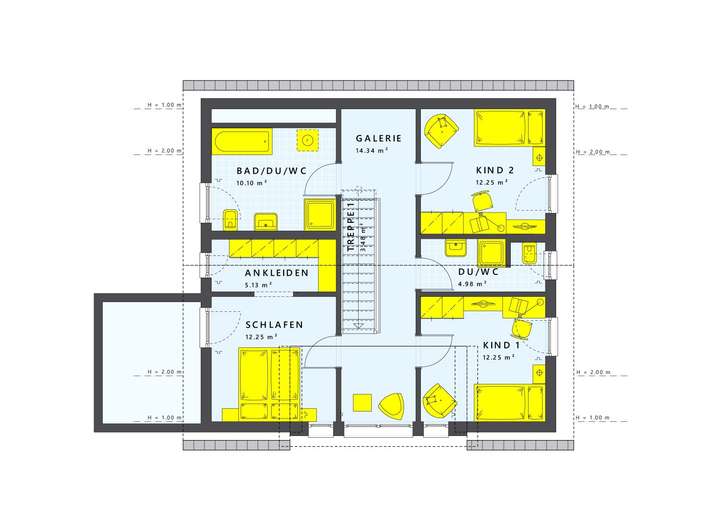
Grundriss
SUNSHINE 154 EG giebelseitiger
>
>
SUNSHINE 154 EG traufseitiger
>
>
SUNSHINE 154 DG
>
>
Adresse
99837 Dippach
Interessante Orte
Preis- und Lageinformationen
Preistrend für Bestandsimmobilien in Dippach