Exklusive Immobilie mit hochwertiger Ausstattung und großzügiger Raumaufteilung
Diese 2012 erbaute Immobilie besticht durch ihre hochwertige Bauweise und die durchdachte Raumaufteilung. Das Haus befindet sich in exzellentem Zustand und bietet einer großen Familie reichlich Platz zum Wohlfühlen.
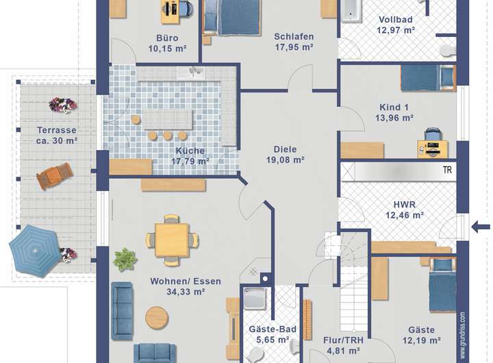
Mit insgesamt acht Zimmern bietet dieses Haus vielfältige Nutzungsmöglichkeiten – sei es als Schlafzimmer, Arbeitszimmer oder Hobbyraum. Derzeit wird die Immobilie als Einfamilienhaus genutzt, eine Aufteilung in zwei Wohneinheiten ist jedoch problemlos möglich. Im Obergeschoss sind bereits alle erforderlichen Anschlüsse für eine Küche vorhanden, und der Bau einer großzügigen Dachterrasse ist ebenfalls vorbereitet.
Der helle und freundliche Eingangsbereich sowie die großzügige Diele empfangen Sie beim Betreten des Hauses. Von hier aus sind alle Räume im Erdgeschoss bequem erreichbar. Ein praktischer Nebeneingang am Stellplatz führt über den Hauswirtschaftsraum ebenfalls ins Haus.
Die Küche ist ein wahres Highlight dieser Immobilie. Ausgestattet mit einer hochwertigen Einbauküche und einer zentralen Kochinsel, wird das Kochen hier zum puren Vergnügen. Von der Küche und dem Wohnzimmer aus gelangen Sie direkt auf die überdachte, große Terrasse mit elektrisch bedienbarer Verschattung – der perfekte Ort für gesellige Abende oder entspannte Stunden im Freien.
Das großzügige Wohnzimmer mit über 34 m² teilt sich in einen Essbereich und einen Couchbereich mit Medienwand. Hier können Sie gemütliche Abende mit Familie und Freunden verbringen.
Das Schlafzimmer im Erdgeschoss verfügt über einen direkten Zugang zu einem Badezimmer mit Badewanne und Dusche. Der Einbau einer Sauna im großen Badezimmer ist bereits vorbereitet. Die beiden weiteren Badezimmer im Haus sind ebenfalls mit bodengleichen Duschen ausgestattet und sorgen so für höchsten Komfort und Bequemlichkeit.
Lassen Sie sich dieses einmalige Angebot nicht entgehen und fordern Sie noch heute das ausführliche Exposé an.
Exklusive Immobilie in neuwertigem Zustand – Ihr Traumhaus erwartet Sie!
29640 Schneverdingen
Die vollständige Adresse der Immobilie erhalten Sie vom Anbieter.
Auf Karte anzeigen
Die vollständige Adresse der Immobilie erhalten Sie vom Anbieter.
Finanzierungszertifikat
In nur zwei Minuten zu Ihrem persönlichen Finanzierungszertifkat.
Infos
| Haustyp | Einfamilienhaus |
|---|---|
| Etagenzahl | 2 |
| Wohnfläche ca. | 228 m2 |
| Nutzfläche | 7,5 m2 |
| Grundstücksfläche | 769 m2 |
| Bezugsfrei ab | nach Vereinbarung |
| Zimmer | 8 |
| Schlafzimmer | 6 |
| Badezimmer | 3 |
| Garage/Stellplatz | Außenstellplatz |
| Anzahl Garage/Stellplatz | 2 |
Kosten
| Kaufpreis |
640.000 € |
|---|---|
| Provision |
3,57 % inkl. MwSt. |
Finanzierungsrechner:
Kaufpreis:
600.000 €
Eigenkapital:
600.000 €
Monatliche Rate
0 €
Effektiver Jahreszins
0 %
Sollzinsbindung
10 Jahre
Bausubstanz & Energieausweis
| Baujahr | 2012 |
|---|---|
| Objektzustand | Gepflegt |
| Heizungsart | Fußbodenheizung |
| Wesentliche Energieträger | Gas |
| Energieausweis | liegt vor |
| Energieausweistyp | Verbrauchsausweis |
| Energieverbrauchskennwert | 90,1 kWh/(m²*a) |
| Energieeffizienzklasse | C |
90,1
kWh/(m²*a)
Energieeffizienzklasse C
- A+
- A
- B
- C
- D
- E
- F
- G
- H
- 0
- 25
- 50
- 75
- 100
- 125
- 150
- 175
- 200
- 225
- >250
Beschreibung des Objekts
Ausstattung
•Elektrische Jalousien
•Überdachte Terrasse mit elektrisch bedienbarer Verschattung
•Kaminofen
•Fußbodenheizung
•moderne Brennwert-Gastherme mit Solarthermie-Modul und Warmwasserspeicher
Lage
Attraktive Lage in der Heideblütenstadt Schneverdingen
Diese Immobilie befindet sich in einer ruhigen Lage in der idyllischen Heideblütenstadt Schneverdingen. Diverse Einkaufsmöglichkeiten und die Stadtmitte sind in wenigen Minuten erreichbar, sodass Sie alles Wichtige in der Nähe haben.
Der Luftkurort Schneverdingen ist eine junge, aufstrebende Stadt, die ein angenehmes Wohn- und Erholungserlebnis bietet. Mit rund 19.000 Einwohnern liegt Schneverdingen etwa 55 km südlich von Hamburg und besticht durch eine reizvolle Heidelandschaft mit Mischwäldern, Bach- und Wiesentälern – ideal für Radtouren, entspannende Wanderungen oder Ausritte.
Zahlreiche Kindergärten, Grundschulen und weiterführende Schulen sorgen für ein umfassendes Bildungsangebot. Ärzte, Apotheken und Geschäfte des täglichen Bedarfs sind fußläufig erreichbar. In Schneverdingen finden Sie kleine Boutiquen, elegante Geschäfte und zahlreiche Gastronomiebetriebe. Verschiedene Vereine und Sportstätten bieten vielfältige Möglichkeiten zur aktiven Freizeitgestaltung.
Dank der ausgezeichneten Verkehrsanbindung erreichen Sie Hamburg in etwa 45 Minuten über die A1 (Anschlussstelle Dibbersen/Rade) oder die A7 (Anschlussstelle Schneverdingen/Bispingen) sowie mit der Bahn. Diese Lage macht das Haus nicht nur zu einem idealen Zuhause für Familien, sondern auch zu einer wertstabilen Investition. Entdecken Sie die perfekte Balance aus ländlicher Idylle und städtischer Erreichbarkeit in Ihrem neuen Zuhause.
Sonstige Angaben
Bitte respektieren Sie die Privatsphäre der Bewohner und führen eine Kontaktaufnahme ausschließlich über uns durch.
Bitte haben Sie Verständnis dafür, dass wir nur vollständig ausgefüllte Objektanfragen berücksichtigen können.
Für weitere Fragen stehen wir Ihnen von Mo – So von 9 bis 21 Uhr unter 0171-4485865 gern zur Verfügung.
Sie planen den Verkauf Ihrer Immobilie?
Profitieren Sie von unserer Kompetenz in allen Immobilienfragen, denn wir sind die Immobilien-Profis für den An- und Verkauf Ihrer Immobilien ...
Grundriss
Erdgeschoss
>
>
Obergeschoss
>
>
Adresse
29640 Schneverdingen
Interessante Orte
Preis- und Lageinformationen
Preistrend für Bestandsimmobilien in Schneverdingen