An Oasis Am Kleinen Wannsee – Your New Home Awaits!
This exquisite family home is situated in one of Berlin’s most sought-after locations, just a few steps from the idyllic am Kleiner Wannsee. Nestled in a quiet residential street lined with historic Villas, this property, set on a beautifully landscaped 760 sqms plot, offers the perfect blend of nature, tranquility, and exclusive living. With a total usable living space of approximately 230 sqms, including 173 sqms of living space across three floors and 54 sqms of an elegantly converted and heated basement, this home is a true gem.
The area is known for its natural beauty and peaceful ambiance, attracting nature enthusiasts as well as prominent personalities. Acquiring a property in this prime location is a rare opportunity.
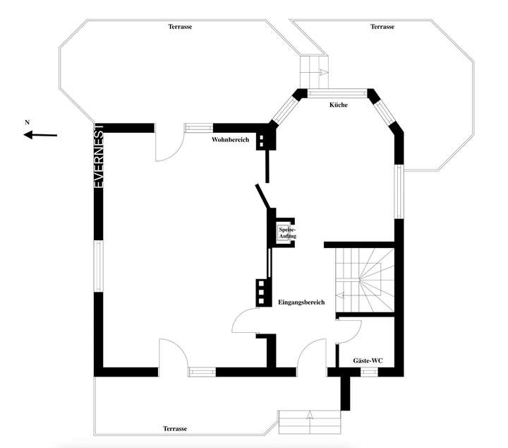
Built in 1985 and fully modernized in 1997, the villa has been meticulously maintained and was upgraded with a new heating system in 2010. Upon entering, you are welcomed by a spacious, light-filled foyer. To the left, an open-plan living and dining area invites you in, offering direct access to two terraces with breathtaking garden views. One terrace is perfect for enjoying breakfast in the morning sun, while the other provides a serene retreat in the afternoon.
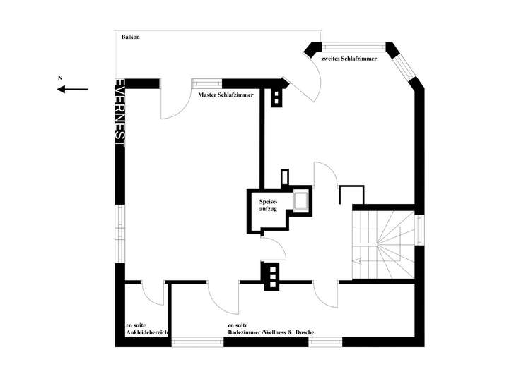
The upper floor features two generously sized bedrooms, one of which boasts an en-suite bathroom with a whirlpool tub and steam sauna, as well as an adjoining walk-in closet. Both bedrooms have access to an east-facing balcony overlooking the private garden and the beautifully landscaped neighboring properties.
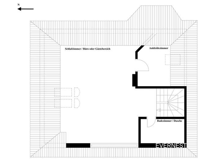
The expansive attic floor is bathed in natural light and offers versatile usage options – whether as an additional hobby room, office, or guest suite. A fully equipped bathroom further enhances the convenience of this space.
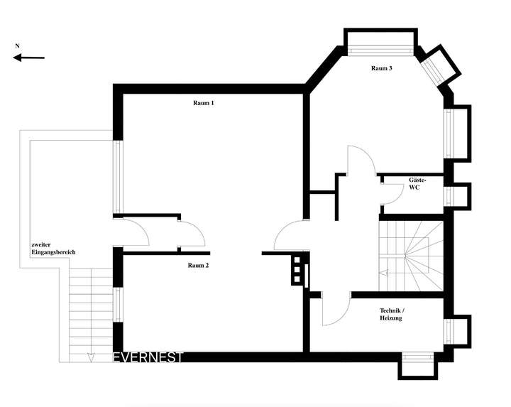
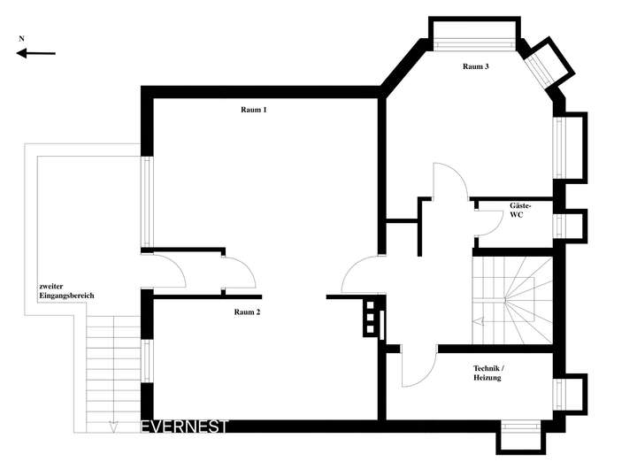
The bright, fully developed basement with its own separate entrance comprises three daylight-filled rooms, making it an excellent choice for a home office or guest area. It could also be transformed into a private wellness retreat. Additionally, a utility room with space for a washing machine and dryer completes this level.
Underfloor heating throughout the villa ensures a cozy and comfortable atmosphere. Electrically operated shutters on the ground floor, as well as a state-of-the-art alarm system, provide additional convenience and security.
With this villa, you are acquiring a highly desirable retreat in one of Berlin’s most exclusive neighborhoods. Little Wannsee offers a unique combination of nature and tranquility, while still providing easy access to the vibrant amenities of Berlin’s city center.
Family home with approx. 230 sqms usable space with an add. apartment
14109 Berlin
Die vollständige Adresse der Immobilie erhalten Sie vom Anbieter.
Auf Karte anzeigen
Die vollständige Adresse der Immobilie erhalten Sie vom Anbieter.
Finanzierungszertifikat
In nur zwei Minuten zu Ihrem persönlichen Finanzierungszertifkat.
Infos
| Haustyp | Villa |
|---|---|
| Etagenzahl | 3 |
| Wohnfläche ca. | 173 m2 |
| Nutzfläche | 54 m2 |
| Grundstücksfläche | 760 m2 |
| Zimmer | 4 |
| Schlafzimmer | 3 |
| Badezimmer | 2 |
| Garage/Stellplatz | Garage |
| Anzahl Garage/Stellplatz | 1 |
Kosten
| Kaufpreis |
1.850.000 € |
|---|---|
| Provision |
3.57 % inkl. MwSt. Bei Abschluss eines notariellen Kaufvertrages ist eine Käuferprovision vom Käufer in Höhe von 3.57 % inkl. MwSt. aus dem Kaufpreis fällig. |
Finanzierungsrechner:
Kaufpreis:
600.000 €
Eigenkapital:
600.000 €
Monatliche Rate
0 €
Effektiver Jahreszins
0 %
Sollzinsbindung
10 Jahre
Bausubstanz & Energieausweis
| Baujahr | 1985 |
|---|---|
| Letzte Sanierung | 2010 |
| Objektzustand | Modernisiert |
| Qualität der Austattung | Gehoben |
| Heizungsart | Gas-Heizung |
| Wesentliche Energieträger | Gas |
| Energieausweis | liegt vor |
| Energieausweistyp | Verbrauchsausweis |
| Energieeffizienzklasse | D |
Energieeffizienzklasse D
- A+
- A
- B
- C
- D
- E
- F
- G
- H
- 0
- 25
- 50
- 75
- 100
- 125
- 150
- 175
- 200
- 225
- >250
Beschreibung des Objekts
Ausstattung
* Family home in a quiet residential street lined with historic Villas
* Just a few steps from the idyllic Am Kleinen Wannsee
* Spacious 760 sqms plot with a beautifully landscaped garden offering high privacy
* Approx. 230 sqms total usable space
* Approx. 173 sqms of living space across three floors
* Plus approx. 54 sqms of high-quality finished basement with a private entrance
* Built in 1985, extensively modernized in 1997, continuously maintained
* A new heating system installed in 2010
* Bright entrance area, open-plan living/dining area with direct access to two terraces
* Two terraces: One for sunny mornings, the other for relaxing afternoons
* Upper floor: Two spacious bedrooms with east-facing balcony access
* Master suite with a luxurious en suite bathroom featuring a whirlpool tub
* Plus a wellness shower with a steam sauna function and a walk-in dressing area
* Top floor: Versatile space suitable as a hobby room, office, or additional bedroom, with its own
bathroom
* Basement: Three bright rooms, ideal as an office, guest, or wellness area, plus a utility room
* High-quality finishes: Natural stone granite flooring, marble tiles, and custom-built wardrobes
* Underfloor heating throughout the house, electric shutters on the ground floor
* Comprehensive alarm system for comfort and security
* Exclusive living quality: The perfect balance between nature, tranquility, and proximity to
Berlin’s city center
* This Villa is a true gem in one of Berlin’s most sought-after residential locations!
Lage
The property is located on a quiet residential street characterized by elegant Villas and single-family homes, just a stone’s throw from Am Kleinen Wannsee and the picturesque Pohlesee. The adjacent forest, with its scenic hiking trails, is only about a 15-minute walk away, while numerous attractive swimming spots on Großer Wannsee invite you to relax and enjoy the water. Renowned sailing clubs are also within easy walking or cycling distance.
As early as the Imperial era, wealthy Berliners retreated to stately Villas along the shores of the Havel River, Großer Wannsee, and Kleiner Wannsee. To this day, this exclusive neighborhood, with its historic villa colony, remains one of Berlin’s most coveted residential areas, impressing with its picturesque setting. Bordering directly on the up-and-coming Brandenburg state capital of Potsdam, the area offers a unique combination of tranquility, nature, and high quality of life. Water sports enthusiasts and nature lovers alike will find a true paradise with countless recreational opportunities.
For families, the surrounding area provides excellent infrastructure, with kindergartens, primary schools, and high schools in close proximity and easily accessible. Outstanding transport connections add to the convenience of living here: The A 115 motorway is just minutes away via the B 1, which runs through Wannsee. The Wannsee regional train station offers direct S-Bahn connections to Berlin and Potsdam via the S1 (Wannsee – Berlin) and S7 (Potsdam – Berlin) lines. The Königstraße (B 1), the area’s main thoroughfare, leads directly to Clayallee and Hohenzollerndamm, making it possible to reach City West in just about 30 minutes.
The main train station in Potsdam is the nearest long-distance railway hub, and the well-developed bus network (114, 116, 118, 318) ensures excellent integration into public transport. The BER Airport is also just 40 minutes away via the city motorway, making this location a perfect starting point for both urban and international connections.
This exclusive setting on Am Kleiner Wannsee offers a picturesque environment, maximum privacy, excellent access to the capital, and outstanding quality of life.
Grundriss
Layout Groundfloor
>
>
Layout first floor
>
>
Layout Attic
>
>
Layout Souterrain
>
>
Adresse
14109 Berlin
Interessante Orte
Preis- und Lageinformationen
Preistrend für Bestandsimmobilien in Wannsee (Zehlendorf)