Willkommen in diesem außergewöhnlichen Haus in Otterndorf, das mit seinem Charme und seiner Eleganz beeindruckt. Auf einer großzügigen Fläche von 451 Quadratmetern bietet dieses Anwesen eine perfekte Kombination aus historischem Flair und modernem Komfort. Das ursprüngliche Baujahr des Hauses liegt im Jahr 1907 – im Jahr 1930 wurde es jedoch sehr aufwendig umgebaut und modernisiert, sodass es heute mit einer durchdachten Raumaufteilung und gehobener Ausstattung überzeugt. Mit insgesamt 6,5 Zimmern, darunter 5 Schlafzimmer und 2 Badezimmer, ist dieses Haus ideal für Familien und Paare, die Wert auf Raum und Exklusivität legen. Beim Betreten des Hauses werden Sie von einem Gefühl der Wärme und Geborgenheit empfangen. Die Räume sind hell und großzügig geschnitten, mit einem edlen Holz-, Fliesen- und Marmorboden, der den luxuriösen Charakter des Hauses unterstreicht. Ein Highlight ist der elegante Kamin, der an kühleren Tagen für eine behagliche Atmosphäre sorgt. Der Keller bietet zusätzlichen Stauraum und vielfältige Nutzungsmöglichkeiten. Der Außenbereich ist ebenso beeindruckend mit einem gepflegten Garten, der zum Entspannen und Verweilen einlädt. Ein Balkon bietet die Möglichkeit, die frische Luft zu genießen und die Umgebung zu betrachten. Das Haus verfügt über eine Garage und Gasheizung, die für zusätzlichen Komfort sorgen. Die Bauweise verleiht dem Haus einen einzigartigen Charakter, während die hochwertige Ausstattung außergewöhnlichen Wohnkomfort gewährleisten. Erleben Sie die perfekte Symbiose aus Tradition und Moderne in diesem exklusiven Anwesen in Otterndorf. Dieses Haus bietet eine einmalige Gelegenheit, luxuriöses Wohnen in einer charmanten Umgebung zu genießen. Lassen Sie sich von der Eleganz und dem Stil dieses einzigartigen Hauses verzaubern und machen Sie es zu Ihrem neuen Zuhause.
Elegantes historisches Anwesen mit modernem Komfort in Otterndorf
21762 Otterndorf
Die vollständige Adresse der Immobilie erhalten Sie vom Anbieter.
Auf Karte anzeigen
Die vollständige Adresse der Immobilie erhalten Sie vom Anbieter.
Finanzierungszertifikat
In nur zwei Minuten zu Ihrem persönlichen Finanzierungszertifkat.
Infos
| Haustyp | Einfamilienhaus |
|---|---|
| Etagenzahl | 2 |
| Wohnfläche ca. | 214 m2 |
| Grundstücksfläche | 595 m2 |
| Zimmer | 6,5 |
| Schlafzimmer | 5 |
| Badezimmer | 2 |
| Anzahl Garage/Stellplatz | 2 |
Kosten
| Kaufpreis |
499.000 € |
|---|---|
| Provision |
siehe Sonstiges |
Finanzierungsrechner:
Kaufpreis:
600.000 €
Eigenkapital:
600.000 €
Monatliche Rate
0 €
Effektiver Jahreszins
0 %
Sollzinsbindung
10 Jahre
Bausubstanz & Energieausweis
| Baujahr | 1907 |
|---|---|
| Objektzustand | Neuwertig |
| Wesentliche Energieträger | Gas |
| Energieausweis | liegt vor |
| Energieausweistyp | Bedarfsausweis |
| Energieverbrauchskennwert | 343,0 kWh/(m²*a) |
| Energieeffizienzklasse | H |
343,0
kWh/(m²*a)
Energieeffizienzklasse H
- A+
- A
- B
- C
- D
- E
- F
- G
- H
- 0
- 25
- 50
- 75
- 100
- 125
- 150
- 175
- 200
- 225
- >250
Beschreibung des Objekts
Ausstattung
Dielenboden
Fliesen
Mamor
Vollunterkellert
Kamin
Lage
Otterndorf, ein malerisches Städtchen an der Nordseeküste, bietet eine exquisite Kombination aus natürlicher Schönheit und gehobenem Lebensstil, die anspruchsvolle Käufer anzieht. Die Immobilie befindet sich in einer Region, die für ihre lebhafte, doch dennoch gut angebundene Lage bekannt ist. Die Nähe zur Elbmündung verleiht dem Ort einen einzigartigen maritimen Charme, während die historische Altstadt von Otterndorf mit ihren gut erhaltenen Fachwerkhäusern und romantischen Gassen eine Atmosphäre von zeitloser Eleganz ausstrahlt. Die Infrastruktur in Otterndorf ist hervorragend. Der Bahnhof Otterndorf ist nur etwa 5 Minuten zu Fuß entfernt und bietet regelmäßige Verbindungen nach Cuxhaven und Hamburg, was es zu einem idealen Ausgangspunkt für Pendler und Reisende macht. Die Autobahn A27 ist ebenfalls in kurzer Fahrzeit erreichbar, was den Zugang zu weiter entfernten Zielen erleichtert. Freizeitmöglichkeiten sind in Hülle und Fülle vorhanden: Genießen Sie entspannte Spaziergänge entlang der grünen Deiche oder besuchen Sie das nahegelegene Wattenmeer, ein UNESCO-Weltnaturerbe. Für Kulturliebhaber bieten sich das historische Museum Otterndorf und verschiedene saisonale Veranstaltungen als Highlights an. Ein besonders reizvolles Merkmal der Umgebung ist der Otterndorfer See, der sich perfekt für Wassersportarten und erholsame Nachmittage in der Natur eignet. Diese Mischung aus Ruhe und Aktivität macht Otterndorf zu einem unvergleichlichen Wohnort. Die exklusive Lage und die Fülle an Annehmlichkeiten machen diese Immobilie zu einem begehrten Juwel. Hier verschmelzen Geschichte, Kultur und Natur zu einem luxuriösen Lebensstil, der seinesgleichen sucht.
Sonstige Angaben
Der Makler-Vertrag mit uns und/oder unserem Beauftragten kommt durch schriftliche Vereinbarung oder durch die Inanspruchnahme unserer Maklertätigkeit auf der Basis des Objekt-Exposés und seiner Bedingungen zustande. Die Käufercourtage in Höhe von 3,57 % auf den Kaufpreis einschließlich gesetzlicher Mehrwertsteuer ist bei notariellem Vertragsabschluss verdient und fällig. Die Höhe der Bruttocourtage unterliegt einer Anpassung bei Steuersatzänderung. Die EuV Wohnen GmbH (Lizenznehmer der
Engel & Völkers Residential GmbH) und ggf. deren Beauftragte
erhalten einen unmittelbaren Zahlungsanspruch gegenüber dem
Käufer (Vertrag zugunsten Dritter, § 328 BGB). Grunderwerbssteuer, Notar- und Gerichtskosten trägt der Käufer.
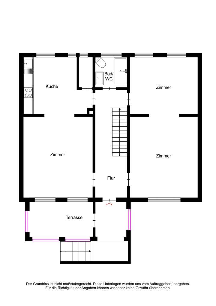
Grundriss
Erdgeschoss
>
>
Obergeschoss
>
>
Kellergeschoss
>
>
Adresse
21762 Otterndorf
Interessante Orte
Preis- und Lageinformationen
Preistrend für Bestandsimmobilien in Otterndorf