Da sind sie noch, die großen, silbernen Zeiten und ihr neues Zuhause steht dabei täglich im Blickpunkt. Als Teil eines bezaubernden, mittelalterlichen Ensembles aus Torturm, Wachhaus und Stadtmauer. Ihr zukünftiger Wohntraum am Ring der historischen Stadtbefestigung, welcher zur Ortsidentität gehört und nicht nur von Ihnen, sondern auch von der Bevölkerung und den Besuchern des Silberbergwerkstädtchens, bewundert und geliebt wird.
ZWEIFAMILIENHAUS IM ORTSKERN VON NEUBULACH
Erbaut wurde das Gebäude im Jahr 1958 auf einem 143 qm großen Grundstück, direkt an der historischen Stadtmauer des Ortes. Auf 3 Etagen finden Sie ca. 209 qm Wohn- und ca.109 qm. Nutzfläche mit 8 Zimmern und 2 Badezimmern. Eine Garage und weitere separate Räume zur gewerblichen Nutzung stehen im EG zur Verfügung.
Geheizt wird im Haus mit einer Gas-Heizung. Eine Ballustrade zum Stadtgraben hin, kann als kleiner Balkon genutzt werden.
Das Objekt wurde in den Jahren 2019 bis 2020 aufwendig umgebaut sowie saniert und verfügt über Ausbaureserven im DG und EG. Der Umbau ist nicht abgeschlossen. Eine interessante Option bietet sich hier durch die Möglichkeit, den bewohnbaren Teil des Gebäudes während weiterer Umbaumaßnahmen bereits für Wohnzwecke zu nutzen.
Besonders ansprechend gestalten sich die modernisierten Räume im Gebäudeteil oberhalb der Stadtmauer. Hier genießen Sie zeitgemäße Exklusivität, ein stilvolles Ambiente, sowie viel Licht und Weite. Ein ausgesprochener und nun allerdings, öffentlich bekannter Geheimtipp.
Der Preis für dieses schöne Objekt - Verhandlungsbasis: 480.000,-- EURO -
oder machen Sie ein Angebot.
Finanzierungszertifikat
In nur zwei Minuten zu Ihrem persönlichen Finanzierungszertifkat.
Infos
| Etagenzahl | 2 |
|---|---|
| Wohnfläche ca. | 209 m2 |
| Nutzfläche | 109 m2 |
| Grundstücksfläche | 143 m2 |
| Zimmer | 8 |
| Schlafzimmer | 3 |
| Badezimmer | 2 |
| Anzahl Garage/Stellplatz | 1 |
Kosten
| Kaufpreis |
480.000 € |
|---|---|
| Provision |
3% zuzüglich der gesetzlichen Mehrwertsteuer |
Finanzierungsrechner:
Kaufpreis:
600.000 €
Eigenkapital:
600.000 €
Monatliche Rate
0 €
Effektiver Jahreszins
0 %
Sollzinsbindung
10 Jahre
Bausubstanz & Energieausweis
| Baujahr | 1958 |
|---|---|
| Letzte Sanierung | 2020 |
| Objektzustand | Saniert |
| Heizungsart | Gas-Heizung |
| Wesentliche Energieträger | Gas |
| Energieausweis | liegt vor |
| Energieausweistyp | Bedarfsausweis |
Beschreibung des Objekts
Ausstattung
Das Objekt: Im Jahr 1958 wurde das Gebäude auf einem 143 qm großen Grundstück an der mittelalterlichen Stadtmauer des Ortes erstellt. Das ebenerdig liegende Untergeschoss besitzt ca. 109 qm Nutzfläche. Im linkerhand liegenden Hausteil befindet sich im OG eine abgeschlossene Wohnung mit ca. 93 qm Wohnfläche. Der im oberen, rechten Hausbereich befindliche, renovierte Teil des Objektes besitzt ca. 114 qm Wohnfläche.
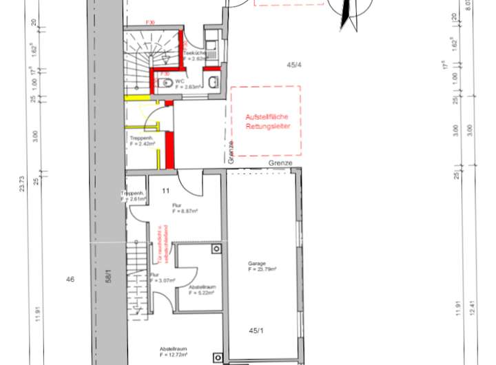
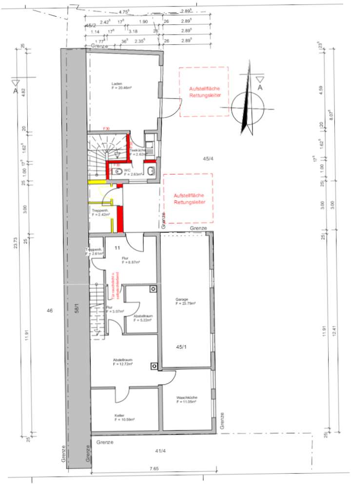
Das EG: Nach dem Betreten des Hauses befinden Sie sich in einem ca. 8 qm großen Windfang, der in das Treppenhaus und die Nutzräume des Gebäudeteils leitet, Linkerhand führt ein Treppenaufgang in das linke Obergeschoss. Ein weiterer rechts liegender Treppenaufgang in den oberen, rechten Hausteil. Zum rückwärtigen Teil des Gebäudes hin finden Sie im weiteren den Heizraum sowie zwei Kellerräume. Die Garage befindet sich im EG des linken Hausteils. Einen großen Lagerraum können Sie zum Silbertor hin nutzen.
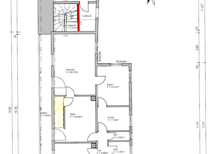
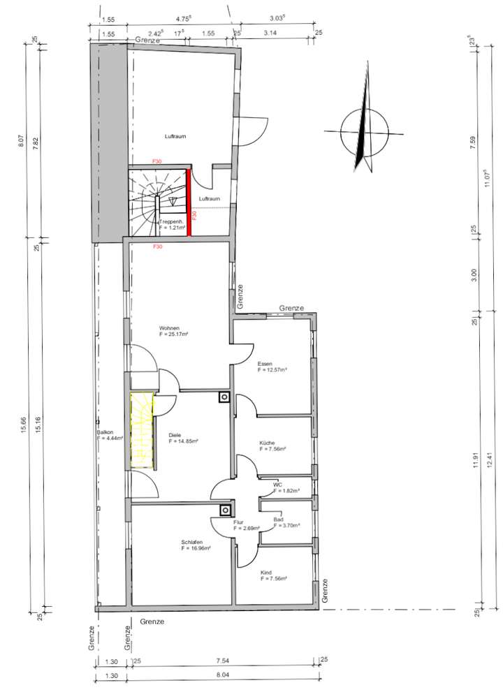
OG linke Haushälfte: Der Treppenaufgang vom UG her, führt Sie direkt in die Diele des Obergeschosses. Von dort aus gelangen Sie in den zur Straße hin liegenden, vorderen Wohnbereich. Es folgen links das Esszimmer, die Küche, ein WC und das Badezimmer. Ein an der Rückseite des Gebäudes liegendes Schlaf- und ein Kinderzimmer runden das Raumangebot auf dieser Wohnebene ab.
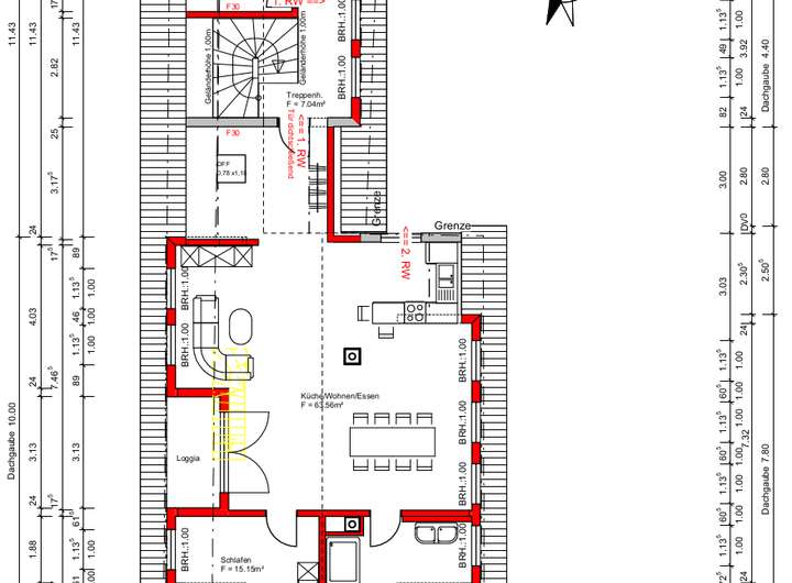
OG rechte Haushälfte: Beim Betreten der Geschossebene über der Stadtmauer werden Sie vor allem immer wieder eins sein: Begeistert. Genießen Sie Raum, Licht und Großzügigkeit in vollen Zügen. Nach einer ähnlichen Immobilie können Sie anderweitig lange suchen. Eine faszinierende, Wohn- und Essebene mit Platz für eine Küchenzeile und herrlichen Ausblicken nach draußen sowie zwei weitere Zimmer und das Bad greifen fast nahtlos ineinander über und warten nur auf Ihre Wohnpräferenzen. Hier treffen Historie und Moderne harmonisch aufeinander.
Umbauten/Renovierung:
Dachsanierung & -umbau:
• Errichtung von zwei neuen großen Dachgauben (Ostseite)
• Errichtung einer neuen großen Dachgaube inkl. überdachter Loggia
Westseite)
• vollständige Zwischen- & Aufsparrendämmung nach KfW-Anforderung
• vollständige Neueindeckung mit Biberschwanzziegeln
• Einbau von vier Dachfenstern
Innenausbau:
• neuer Trockenbau/ Innenausbau im DG
• neuer Trockenestrich mit aufwändiger zementgebundener Ausgleichs- &
Trittschalldämmung im DG
• Neuerrichtung des Treppenhauses und einer Treppenanlage vom EG ins DG
Heizung & Sanitär:
• Neuinstallation einer Gas-Brennwertheizanlage inkl. Wasserspeicher,
Zirkulationspumpe etc.
• Neuinstallation der Heiz-, Wasser- und Abwasserleitungen für DG
• drei getrennte Heiz- und Wasserkreisläufe
Elektrik:
• neue elektrische Installationen inkl. Datenleitungen im DG
Fassade:
• Fassade außer Gebäudesockel vollständig neu gestrichen, teilweise neu
verputzt
• Holzfenster von außen neu lackiert
Flächen:
• Grundfläche: 143 qm
• Erdgeschoss: 109,13 qm
• Obergeschoss: 94,09 qm
• Dachgeschoss: 114,60 qm
• gewerblich nutzbare Fläche mit großer Raumhöhe im EG
• Balkon im OG
• überdachte Loggia im DG
• Garage im EG
Umbaukosten für die Handwerker gesamt, ca. 260.000,00 EUR
Eine interessante Option bietet sich durch die Möglichkeit, den bewohnbaren Teil des Gebäudes während weiterer Umbaumaßnahmen bereits für Wohnzwecke zu nutzen.
Lage
Der heilklimatische Kurort Neubulach liegt in der Naturpark-Region Teinachtal/Schwarzwald auf einem sonnigen Hoch-Plateau (600 m ü. d. M.), mit herrlichen Fernsichten über den Ostrand des Schwarzwaldes, bis hin zur Schwäbischen Alb.
Für seine ca. 5400 Einwohner bietet das ehemalige Bergwerkstädtchen, in 5 Teilgemeinden, alles was für eine bodenständig, intakte Infrastruktur notwendig ist. Der örtliche Einzelhandel ist überdurchschnittlich gut sortiert und wird deshalb auch gerne von den Einwohnern der umliegenden Nachbargemeinden frequentiert.
2 Arztpraxen, 1 Zahnarztpraxis, 1 Apotheke und nicht zuletzt der weit über die Grenzen des Bundeslandes hinaus bekannte Therapiestollen für Asthmakranke, garantieren eine ausgezeichnete gesundheitliche Grundversorgung. Die nahegelegenen Heilbäder, Bad-Teinach, Bad-Liebenzell und Wildbad bieten im weiteren Gelegenheit, seiner Gesundheit Gutes zu tun.
Nichtstörende Industrie, Gewerbe, Handwerk und Dienstleistungsbetriebe aller Art sorgen für gute Arbeitsbedingungen im "Städle". Der Nachwuchs kann sich entweder in der Grund- und Hauptschule mit Werkrealschule oder in einer der weiterführenden Schulen in Calw, Nagold, Wildberg, oder Altensteig auf "den Ernst des Lebens" vorbereiten.
Für sportlich aktive hat die Gemeinde: Sportplätze, Sporthallen, Tennisplätze, 1 Reitplatz, 1 Reithalle, 1 Schwimmbad, sowie eine Minigolfanlage im Angebot. Natürlich finden auch Wanderlustige und Radsportbegeisterte zahllose Möglichkeiten, die erholsame Schwarzwaldlandschaft um den Ort herum, auf ausgedehnten Wanderpfaden oder gut ausgebauten Wegenetzen zu erkunden.
Bleibt nicht zuletzt der Freizeitbereich in dem ca. 40 Gruppen und Vereine anbieten, sich auf den Gebieten Sport, Musik, Kultur- und Heimatpflege aktiv zu beteiligen. Die heimische Gastronomie wartet in ihren gemütlichen Gaststätten mit einem überwiegend gutbürgerlich bis gehobenem Speisenangebot auf.
Über gut abgestimmte Busverbindungen ist Neubulach an die Bahnhöfe in Calw und Nagold - in der Weiterführung bis Pforzheim und Horb, sowie die im Bereich der Stuttgarter SSV liegende S-Bahn-Haltestelle Gärtringen, an die Großräume Stuttgart und Böblingen-Sindelfingen angeschlossen. Die regionalen Ballungs- und Wirtschaftsräume sind hiermit auch für nicht motorisierte Einwohner bequem und kurzfristig zu erreichen.
Im gepflegten innerörtlichen Bereich des Bergwerkstädtchens, liegt ihr Zuhause direkt an der historischen Stadtmauer und im weiteren eingebettet in die herrliche Natur des umliegenden Schwarzwaldes. Sie brauchen nur wenige Schritte zu gehen und befinden sich inmitten von Feldern, Wiesen und Wäldern. Eine Landschaftsidylle mit wunderschönen Fernblicken auf die umgebenden Schwarzwaldhöhen und die schwäbische Alb. Der ideale Platz um den Stress des Alltags zu vergessen und neue Energien zu tanken.
Die Ladengeschäfte, darunter ein EDEKA,- ein ROSSMANN-, ein ELEKTRO- ein NETTO- sowie der Wochenmarkt; die beiden Banken die zwei Arztpraxen und die Apotheke können Sie, bequem und in kurzer Zeit zu Fuß erreichen. Für größere Einkäufe mit dem PKW finden Sie im Ort aber auch genügend Parkmöglichkeiten.
Sonstige Angaben
Ein Finanzierungsnachweis ist erwünscht.
Grundriss
Grundriss EG
>
>
Grundriss OG links
>
>
Grundriss OG rechts
>
>
Adresse
Obere Torstraße 11, 75387 Neubulach
Interessante Orte
Preis- und Lageinformationen
Preistrend für Bestandsimmobilien in Neubulach