Wir freuen uns Ihnen die Möglichkeit zu bieten, Ihnen dieses außergewöhnliche Architektenhaus in der idyllischen Lage von Neubiberg vorzustellen, welches mit Bedacht gestaltet wurde und sich ideal für Familien eignet. Gestaltet in der einzigartigen Form eines Pianos, strahlt das Haus nicht nur architektonische Raffinesse aus, sondern auch historischen Charme. Ursprünglich im Jahr 1949 erbaut und als Arztpraxis mit Einliegerwohnung genutzt, wurde das Gebäude im Jahr 1982 bis auf die Grundmauern vollständig saniert und durch einen großzügigen Garagenanbau erweitert. Mit einer beeindruckenden Grundstücksfläche von ca. 790 m² bietet es viel Platz für Sie und Ihre Familie.
Ihr neues Zuhause erstreckt sich über ca. 287 m² Wohnfläche verteilt auf zwei Wohngeschosse, sieben Zimmer und zwei Badezimmer. Im Kellergeschoss befinden sich zwei Kellerräume sowie eine Waschküche ebenso wie ein mit original Zirbenholz verkleideter Raum.
Schon beim Betreten des Hauses werden Sie von einem einladenden und großzügigen Eingangsbereich empfangen, den Sie entweder über eine Treppe oder eine Rampe erreichen. Linkerhand befindet sich die Garderobe, ausgestattet mit einem deckenhohen Einbauschrank, der viel Platz für Ihre Kleidung bietet. Zusätzlich lässt sich hier ein Schuhschrank perfekt integrieren.
Rechterhand des Eingangsbereichs eröffnet sich die derzeitige Küche, welche mit praktischen Fliesen versehen und vollständig ausgestattet ist, wie mit einem Herd, einer Dunstabzugshaube, einer Spülmaschine und allen notwendigen Elektrogeräten. Hier haben Sie die Möglichkeit Ihre Küche nach Ihren ganz eigenen Vorstellungen zu realisieren und Ihre Wünsche umzusetzen. Die Küche bietet eine direkte Verbindung in den Essbereich, der durch eine praktische Schiebetür abgetrennt werden kann. Hier finden ein Esstisch und passende Sitzgelegenheiten für gemeinsame Abende mit der Familie mühelos Platz. Ein großes Fenster durchflutet den Raum mit reichlich Tageslicht und schafft eine helle Atmosphäre. Im Esszimmer befindet sich zusätzlich ein im Jahr 2010 installierter Außenaufzug, der einen barrierefreien Zugang direkt zum Obergeschoss ermöglicht. Bei Bedarf kann dieser wieder zurück gebaut werden.
An den Essbereich schließt sich die gemütliche Bauernstube an, welche derzeit mit einer traditionellen Eckbank und einem passenden Tisch mit zusätzlichen Sitzgelegenheiten ausgestattet ist. Aufgrund des großartigen Tageslichteinfalls, der perfekten Raumaufteilung und dem direkten Zugang zur Küche lässt dieses sich ebenso perfekt als Esszimmer nutzen.
Angrenzend befand sich ursprünglich die Garage des Hauses, die zum jetzigen Büro umfunktioniert wurde. Hier können Sie in einer entspannten Atmosphäre konzentriert arbeiten. Ein großes, einzigartiges Rundbogenfenster mit Doppeltüren lässt viel Tageslicht in den Raum einfallen und bietet einen idyllischen Blick auf den großen Garten. Zudem haben Sie die Möglichkeit auf der nach Süden ausgerichteten Terrasse die Sonne zu genießen und am Morgen entspannt Ihren Kaffee zu trinken.
Das Herzstück des Hauses bildet der lichtdurchflutete Wohnbereich mit einer Größe von ca. 41 m². Durch den perfekten Schnitt können Sie Ihre persönliche Einrichtung ideal integrieren und nach Ihren Vorstellungen realisieren. Ein offener Kamin sorgt an kühlen Tagen für wohlige Wärme und lädt dazu ein, den Abend entspannt am Feuer ausklingen zu lassen, während Sie den Blick in Ihren Garten genießen. Bodentiefe Fenster führen Sie hinaus auf Ihre große Terrasse sowie in das grüne Refugium - den weitläufigen, sehr gepflegten Garten mit einem alten Baumbestand. Der Garten ist absolut ruhig gelegen und bietet den perfekten Ort zum Entspannen und die Natur zu genießen. Hohe Büsche und eine umlaufende Mauer bieten Ihnen wertvolle Privatsphäre.
Gute Infrastruktur trifft auf ruhige Lage - Exklusives Architektenhaus mit 790 m² Grundstücksfläche
85579 Neubiberg
Die vollständige Adresse der Immobilie erhalten Sie vom Anbieter.
Auf Karte anzeigen
Die vollständige Adresse der Immobilie erhalten Sie vom Anbieter.
Finanzierungszertifikat
In nur zwei Minuten zu Ihrem persönlichen Finanzierungszertifkat.
Infos
| Haustyp | Einfamilienhaus |
|---|---|
| Etagenzahl | 1 |
| Wohnfläche ca. | 287 m2 |
| Nutzfläche | 188 m2 |
| Grundstücksfläche | 790 m2 |
| Zimmer | 7 |
| Schlafzimmer | 3 |
| Badezimmer | 2 |
| Anzahl Garage/Stellplatz | 2 |
Kosten
| Kaufpreis |
1.500.000 € |
|---|---|
| Provision |
siehe sonstige Angaben. |
Finanzierungsrechner:
Kaufpreis:
600.000 €
Eigenkapital:
600.000 €
Monatliche Rate
0 €
Effektiver Jahreszins
0 %
Sollzinsbindung
10 Jahre
Bausubstanz & Energieausweis
| Baujahr | 1949 |
|---|---|
| Objektzustand | Gepflegt |
| Heizungsart | Zentralheizung |
| Wesentliche Energieträger | Öl |
| Energieausweis | liegt vor |
| Energieausweistyp | Bedarfsausweis |
| Energieverbrauchskennwert | 337,0 kWh/(m²*a) |
| Energieeffizienzklasse | H |
337,0
kWh/(m²*a)
Energieeffizienzklasse H
- A+
- A
- B
- C
- D
- E
- F
- G
- H
- 0
- 25
- 50
- 75
- 100
- 125
- 150
- 175
- 200
- 225
- >250
Beschreibung des Objekts
Ausstattung
Zurück im Flur befindet sich linkerhand eines der beiden Badezimmer des Hauses. Dieses ist mit einer Dusche ausgestattet und zahlreichen Einbauten sorgen für viel Stauraum.
Die anschließende Doppelgarage des Hauses ermöglicht kurze Wege für Ihre Einkäufe und kann auf direktem Weg über das Haus betreten werden. Ein weiterer Zugang ist über den Garten möglich. Zwei Fahrzeuge können mühelos in der Garage untergebracht werden. Ein elektrisches Garagentor sorgt für zusätzlichen Komfort.
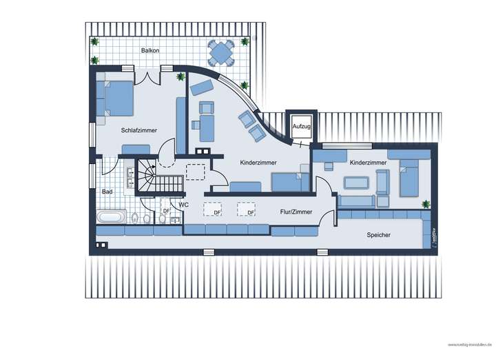
Eine Holztreppe im Flur führt Sie in das erste Obergeschoss des Hauses. Neben des Treppenaufgangs betreten Sie das Schlafzimmer, das durch ein Bett, sowie deckenhohe Einbauschränke perfekt ergänzt wird. Eine bodentiefe Terrassentür führt Sie hinaus auf Ihren Balkon mit Südausrichtung und beschert Ihnen einen weitläufigen Blick in Ihren eigenen Garten. Das Bad-en-Suite bietet einen idealen Ort, um sich auf den Tag vorzubereiten. Es verfügt über ein großes Waschbecken mit passenden Einbauten, einer Toilette sowie eine großzügige Eckbadewanne. Ein weiteres WC liegt angrenzend zum Badezimmer und ist mit einer Tür separiert.
Das erste der beiden Kinderzimmer, befindet sich zwischen dem Eingang zum Schlafzimmer und dem Treppenaufgang. Aufgrund seines geschickt gestalteten Grundrisses sind Ihren Einrichtungsideen keine Grenzen gesetzt. Sowohl ein Bett als auch weitere Möbelstücke lassen sich ideal in den Raum integrieren. Der Außenaufzug des Hauses führt Sie auf direktem Weg in diesen Raum.
Das zweite Kinderzimmer befindet sich ebenfalls auf dieser Etage und lässt sich über den Flur erreichen. Dieses Zimmer wirkt durch seine beiden großen Doppelfenster besonders freundlich und bietet dank seines hervorragenden Grundrisses vielfältige Einrichtungsmöglichkeiten.
Ein Speicherraum sowie ein weiterer Speicherraum oberhalb des Kinderzimmers eröffnen viel Stauraum und Ablagefläche für Ihre Haushaltsutensilien.
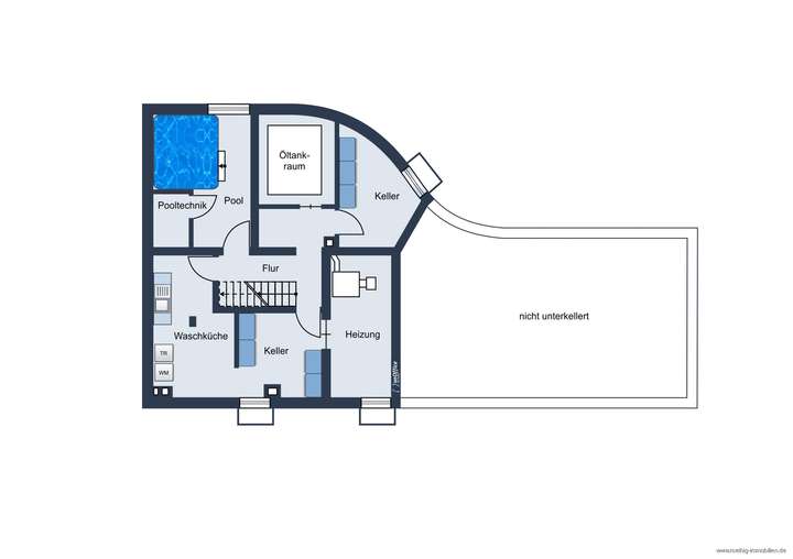
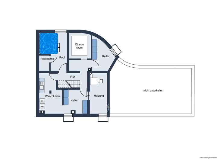
Weiteren Stauraum und Nutzflächen finden Sie im Untergeschoss des Hauses. Linkerhand erreichen Sie die Waschküche, die mit Anschlüssen für Waschmaschine und Trockner ausgestattet ist. Diese schließt direkt an den ersten der beiden Kellerräume an. Gegenüber dem Kellerraum befindet sich der Heizungsraum, in dem sich die Ölzentralheizung befindet, die im Jahr 2006 ausgetauscht wurde. Zusätzlich befindet sich im Untergeschoss der Öltankraum sowie angrenzend an diesem der zweite Kellerraum, der zahlreiche Nutzungsmöglichkeiten bietet und viel Abstellfläche offeriert.
Neben dem Treppenabgang befindet sich der mit original Zirbenholz verkleidete Raum, der mit einem Whirlpool ausgestattet ist. Nach einer technischen Überholung ist es möglich diesen wieder in Betrieb zu nehmen. Alternativ können Sie sich hier Ihren eigenen Fitnessraum oder eine kleine Wellnessoase erschaffen.
Haben wir Ihr Interesse an diesem außergewöhnlichen Anwesen in absolut ruhiger Traumlage geweckt?
Das perfekt für Familien geeignete Architektenhaus präsentieren wir Ihnen gerne im Rahmen einer persönlichen Besichtigung.
HIGHLIGHTS IM ÜBERBLICK:
+ einzigartiges Architektenhaus
+ 790 m² Grundstücksfläche
+ gepflegter Garten
+ großzügiger Wohnbereich mit offenem Kamin
+ barrierefreies Wohnen mit Aufzug
+ Doppelgarage
+ absolut ruhige Lage
+ ausgezeichnete Verkehrsanbindung
+ exzelltene Infrastruktur
+ uvm.
Lage
Neubiberg, eine Gemeinde im Landkreis München, liegt angrenzend an die Stadtteile Neuperlach, Waldperlach und an die Nachbargemeinden Ottobrunn, Putzbrunn und Unterhaching. Die Gemeinde ist in die Ortsteile Unterbiberg und Neubiberg unterteilt. Um 1049 wurde das Dorf „Villa Piburc“ erstmals als Schenkung an das Kloster Tegernsee erwähnt. Um 1900 ließen sich Siedler aus München und Umgebung in Neubiberg nieder.
Heute ist Neubiberg als „Universitätsgemeinde“ bekannt, da die Universität der Bundeswehr hier ansässig ist. Damit ist Neubiberg die einzige Universitätsgemeinde Deutschlands. Viele international agierende Unternehmen wie die Infineon Technologies AG oder die Intel Mobile Communications GmbH machten Neubiberg zum modernen Wirtschaftsstandort. Die Gemeinde zählt aktuell etwa 14.200 Einwohner.
Ein Highlight für Naturliebhaber, Erholungssuchende und Familien ist der Landschaftspark Hachinger Tal mit seinen rund 126 Hektar, der sowohl naturbelassene Sport- und Erlebnisbereiche bietet. Weitere Freizeitmöglichkeiten bietet die in nur 10 Minuten mit dem Auto erreichbare Jochen Schweizer Arena.
In unmittelbarer Nähe dazu liegt das Gewerbegebiet Brunnthal mit zahlreichen Einkaufsmöglichkeiten wie IKEA, METRO oder Käfer Delikatessen, eleganten Fitnessstudios wie das body & soul sowie den Hagebaumarkt. Außerdem ist man dank der guten Autobahnverbindungen, schnell an den schönsten, bayerischen Seen, wie dem Starnberger See oder dem Tegernsee.
Alle Geschäfte des täglichen Bedarfs sind in der unmittelbaren Umgebung des Hauses vorhanden. Unter anderem befinden sich die Supermärkte „Rewe“, „Edeka“, Drogerien sowie Ärzte und Apotheken nur wenige Minuten mit dem Auto entfernt. Für das morgendliche Frühstück ist mit nahe gelegenen Bäckereien ebenfalls schnell gesorgt.
Die Immobilie liegt in einer familienfreundlichen Lage mit Kindergärten, Grundschulen und weiterführenden Schulen in fußläufiger Entfernung. Zwei Kindertagesstätten, ebenso wie die Grundschule Neubiberg erreichen Sie in unter 5 Minuten zu Fuß. Das Gymnasium Neubiberg sowie die staatliche Realschule Neubiberg lassen sich in unter 10 Fahrradminuten erreichen. Auch zahlreiche Spielplätze befinden sich in der näheren Umgebung.
Die Anbindung an die öffentlichen Verkehrsmittel ist hervorragend. Die nächstgelegene S-Bahn-Station „Neubiberg“ ist ideal zu Fuß erreichbar und bietet mit der Linie S7 eine direkte Verbindung in die Münchner Innenstadt. Die U-Bahn-Station Neuperlach-Süd ist nur etwa 5 Fahrradminuten entfernt und ermöglicht den Anschluss an die U5. Zusätzlich sorgen acht Buslinien (199, 210, 211, 212, 217, 221, 222 und 229) für eine optimale Erreichbarkeit wichtiger Verkehrsknotenpunkte.
Die Verkehrsanbindungen zur Autobahn A8 und A99 (Ostumgehung München) mit Anschlussmöglichkeiten zur A94, Wasserburg, Nürnberg und zum Flughafen München sind ebenfalls ausgezeichnet. Der Flughafen München liegt ca. 40 Autominuten entfernt.
Sonstige Angaben
Bei diesem Objekt ist nicht vorgesehen, dass der Käufer mit uns eine eigenständige Provisionsvereinbarung trifft, sofern dieser als Verbraucher (§ 14 BGB) zu qualifizieren ist. Der Verkauf erfolgt nur an denjenigen, der sich bereit erklärt, einen Teil der vom Verkäufer zugesagten Provision zu übernehmen (maximal 50% vgl. § 656d BGB). Dieser Anteil beträgt 3,57% inkl. Mehrwertsteuer.
Erläuterungen zum Ablauf des Bieterverfahrens:
Der Verkauf erfolgt im Bieterverfahren. Das Bieterverfahren ist keine Auktion. Der Verkäufer ist frei in seiner Entscheidung, ob er das Angebot annimmt. Auch sind Sie als Käufer nach Abgabe des Angebotes bis zum Notartermin frei. Sie sind durch die Abgabe des Angebotes nicht gebunden. Es handelt sich um eine Kaufabsichtserklärung Ihrerseits zu dem von Ihnen genannten Kaufpreisangebot.
Wenn Sie dieses schöne Architektenhaus kaufen wollen, geben Sie ein schriftliches Gebot ab. Dieses Gebot soll dem maximalen Preis entsprechen, den Sie bereit sind, für das Objekt zu zahlen!
Sollte der Eigentümer eines der Gebote für angemessen halten, behalten wir uns vor, das Gebotsverfahren abzuschließen. Wir empfehlen daher zeitnah Angebote abzugeben. Selbstverständlich haben Sie ausreichend Zeit, um dann Ihren Angebotspreis zu kalkulieren.
Der Mindestgebotspreis für diese schöne Architektenhaus mit Doppelgarage liegt bei € 1.500.000,-.
Das Angebot ist bei uns schriftlich abzugeben. Dieses können Sie per E-Mail an office@roethig-immobilien.de, per Fax an 089/997297-38 oder mit der Post, an RÖTHIG & RÖTHIG - REM Real Estate Management GmbH & Co. KG, Pienzenauerstraße 2 in 81679 München senden. Die Gebote reichen wir an den Eigentümer weiter.
Der Eigentümer wird dann entscheiden, ob er das Angebot annimmt. Wenn dieser das Angebot annimmt, wird ein Notartermin vereinbart. Sollten Sie die Finanzierung noch nicht geklärt haben, muss dies zwischenzeitlich erfolgen.
Erst mit dem Notarvertrag sind Sie und der Verkäufer gebunden. Für Sie fallen bis zum tatsächlichen Kauf und der Beurkundung selbstverständlich keine Kosten an.
Haben Sie weitere Fragen zum Ablauf des Bieterverfahrens? Bitte kontaktieren Sie uns!
Grundriss
Grundrissskizze der Hauses - E
>
>
Grundrissskizze des Hauses - O
>
>
Grundrissskizze des Hauses - U
>
>
Adresse
85579 Neubiberg
Interessante Orte
Preis- und Lageinformationen
Preistrend für Bestandsimmobilien in Neubiberg