Das Grundstück ist bebaut mit einem Einfamilienhaus mit:
- Einlieger-/ Ferienwohnung
- ehem. Ladenlokal (kann zur Wohneinheit umgebaut werden).
Das Haus wird frei geliefert.
Das Haus wurde ca. 1950/60 in konventioneller Massivbauweise mit Teilkeller erstellt und ca. 2015 und ca. 2020 umfangreich entkernt, erweitert und modernisiert. Die Aussenwände sind mit rotem Verblendmauerwerk bzw. die Fassade im Bereich der Hauptwohnung mit Lärchenholz im Rhombusprofil verkleidet. Bei dem Dach handelt es sich um ein Satteldach und ein Flachdach. Das Satteldach ist mit anthrazitfarbenen Dachpfannen eingedeckt, die Flachdächer sind mit Dachpappe abgedichtet.
Es wurden in den letzten Jahren u. a. folgende Modernisierungen/ Erweiterungen vorgenommen:
Allgemein:
ca. 2015:
- Gaszentralheizung + Heizungsinstallation
- Dachstuhl und Dacheindeckung
- Aufstockung des Obergeschosses
- Austausch Fenster
- Elektro-Installation
- Wasserleitungen/Abwasserleitungen
- Schmutzwasserleitungen außen
- Regenwasserleitung.
ca. 2015:
- Neubau der Hauptwohnung
ca. 2020:
ehem. Ladenlokal:
- vollständige Entkernung und Wiederaufbau
- Erneuerung Inventar (Ladenküche, Verkaufstresen, Regale, Sitzmöglichkeiten etc.)
- Pflasterung des Vorplatzes vor dem Ladengeschäft.
ca. 2015:
Einlieger-/ Ferienwohnung (Rohbau):
- vollständige Entkernung und Neuaufteilung der Räumlichkeiten
- Verlegung der Anschlussleitungen (Elekro, Wasser, Abwasser, Heizung, Glasfaser und Datenkabel).
Baubeschreibung allgemein:
- konventionelle Massivbauweise
- Beheizung über Gaszentralheizung
- Warmwasseraufbereitung über E-Durchlauferhitzer
- Fenster in Kunststoff (außen lichtgrau / innen weiß) mit Isolierverglasung,
- Kelleraußeneingangstür in Kunststoff, weiß, verstärkt (Einbruchschutz)
- Glasfaseranschluss
- Zisterne (ca. 7.000 l)
Für die große Familie: Einfamilienhaus mit Einlieger-/ Ferienwohnung (2015 modernisiert)
21354 Bleckede
Die vollständige Adresse der Immobilie erhalten Sie vom Anbieter.
Auf Karte anzeigen
Die vollständige Adresse der Immobilie erhalten Sie vom Anbieter.
Finanzierungszertifikat
In nur zwei Minuten zu Ihrem persönlichen Finanzierungszertifkat.
Infos
| Haustyp | Einfamilienhaus |
|---|---|
| Wohnfläche ca. | 386 m2 |
| Nutzfläche | 124 m2 |
| Grundstücksfläche | 1.083 m2 |
| Bezugsfrei ab | Kurzfristig beziehbar |
| Zimmer | 10 |
| Garage/Stellplatz | Außenstellplatz |
| Anzahl Garage/Stellplatz | 6 |
Kosten
| Kaufpreis |
499.000 € |
|---|---|
| Provision |
14.845,25 € Die an uns nach Vertragsabschluss zu zahlende Maklercourtage in Höhe von 5,95 % des Kaufpreises inkl. gesetzlicher Mehrwertsteuer ist je zur Hälfte vom Käufer (2,975 %) und vom Verkäufer (2,975 %) zu tragen. |
Finanzierungsrechner:
Kaufpreis:
600.000 €
Eigenkapital:
600.000 €
Monatliche Rate
0 €
Effektiver Jahreszins
0 %
Sollzinsbindung
10 Jahre
Bausubstanz & Energieausweis
| Baujahr | 2015 |
|---|---|
| Letzte Sanierung | 2020 |
| Objektzustand | Neuwertig |
| Qualität der Austattung | Normal |
| Heizungsart | Zentralheizung |
| Wesentliche Energieträger | Gas |
| Energieausweis | liegt vor |
| Energieausweistyp | Verbrauchsausweis |
| Energieverbrauchskennwert | 101,8 kWh/(m²*a) |
Beschreibung des Objekts
Ausstattung
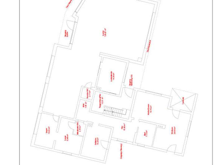
1.) Hauptwohnung (Baujahr 2015):
Wohnfläche: ca. 217,19 m²/ eigener Eingang
Aufteilung:
Erdgeschoss: Flur/ Treppenhaus
Obergeschoss: Wohn-/ Esszimmer, Schlafzimmer, Kinderzimmer 2, Kinderzimmer 3 Küche, Bad, Gäste-Bad, Technikraum, Diele/ Flur und Dachterrasse
Dachgeschoss: Kinderzimmer 1 und Büro
Ausstattung:
- offene Küche ausgestattet mit Gasherd, Elektro-Backofen, Dunstabzugshaube (Umluft) Geschirrspülmaschine, Spüle sowie diversen Ober- und Unterschränken (Anmerkung: diese Ausstattung wird nicht mitverkauft!)
- Bad mit gefliestem Duschboden und Duschabtrennung in Glas, Badewanne, 2 Waschtische und wandhängendem WC
- Gäste-Bad mit gefliestem Duschboden und Duschabtrennung in Glas, Waschtisch und wandhängendem WC
- Fußböden:
Fliesen = Bad, Gäste-Bad und Flur/ Treppenhaus
bis auf die o.a. Räumen sind alle anderen Räume mit hochwertigem Laminat ausgelegt
- integrierte Beleuchtung in den Decken
- Innentüren:
Türblätter und Zargen in weiß, endbehandelt
- hochwertige Wohnungseingangstür
- Fußbodenheizung im Obergeschoss
- Datenkabel
- vorbereitete Dachterrasse (bis auf Dachterrassengeländer und Belag) in Größe von ca. 65 m²
2.) ehem. Ladenlokal
- Modernisierung 2020
Aufteilung:
Laden, Ladenküche, Kunden-WC, Mitarbeiter-WC und 2 Lagerräume
Nutzfläche: ca. 168,53 m² im EG
Ausstattung:
- Ladenküche (Front: weiß) ausgestattet mit Gasherd, E-Backofen, Dunstabzugshaube in Edelstahl (außen), Geschirrspülmaschine, separater großer Kühlschrank, drei Spülbecken, marmorierte Küchenarbeitsplatte sowie diversen Ober- und Unterschränken und mehrere Tische und Stühle
- großer Verkaufstresen (Front in weiß mit Arbeitsplatte in Massivholz „Nussbaum-Amerikanisch“)
- Kunden-WC mit Waschbecken, wandhängendem WC
- Mitarbeiter-WC (im Bau) mit Waschbecken, wandhängendem WC
- Innentüren: Türblätter und Zargen in weiß, endbehandelt, zur Küche Schiebetür in Glas
- große Fensterfront zum Straßenbereich in Kunststoff (außen lichtgrau / innen weiß) mit Sicherheitsglas.
3.) Einlieger-/ Ferienwohnung (im Rohbau):
Der Ausbau der Einlieger-/ Ferienwohnung im Erdgeschoss ist vorbereitet:
- Rohbau
- Strom-, Wasser- , Abwasseranschlüsse, Heizungsrohre und Glasfaserkabel bis in die Wohnung verlegt
Aufteilung:
Erdgeschoss: Wohnzimmer, Schlafzimmer, Küche/ Esszimmer, Bad, Flur und Veranda mit Terrasse
Wohnfläche: ca. 75,27 m² im EG/ eigener Eingang
Teilkeller:
Aufteilung: Lager 1 – 4, Hobbyraum, Waschraum, Heizungsraum, Flur, Kelleraußeneingang
Lage
Lage:
In 21354 Bleckede-Walmsburg, einer kleinen Gemeinde in der Elbtalaue direkt an der Elbe gelegen, mit ca. 500 Einwohnern. Walmsburg ist der südlichste Ortsteil der Stadt Bleckede im Landkreis Lüneburg. Lüneburg ist in ca. 37 Autominuten und Bleckede in ca. 13 Autominuten bequem zu erreichen.
Bleckede-Walmsburg und die nähere Umgebung verfügen u.a. über:
- gute Einkaufsmöglichkeiten in Bleckede
- ärztliche Nahversorgung (Ärzte und Apotheke) in Bleckede
- Kindergärten sind u.a. in den benachbarten Orten Alt Garge und Barskamp, ca. 5 Km entfernt
- Grundschule in Barskamp, die weiterführenden Schulen in Bleckede sind über Schulbusse und öffentliche Verkehrsmittel gut zu erreichen
- öffentliche Verkehrsmittel: Busverbindungen nach Bleckede und Lüneburg (Bahnanschluss). Die nächstgelegene Bushaltestelle ist nur ca. 100 m vom Objekt entfernt
- vielfältiges Freizeitangebot in Bleckede (Sportplatz, Sporthalle, Tennisplatz, Yachthafen etc.) und Waldbad in Altgarge.
Das Wohnhaus liegt in zentraler Ortslage.
Sonstige Angaben
BITTE HABEN SIE VERSTÄNDNIS DAFÜR, DASS WIR IHRE ANFRAGE NUR BEANTWORTEN KÖNNEN, WENN SIE IHRE ADRESSE UND TELEFONNUMMER ANGEBEN!
Bei aller Sorgfalt können wir keine Gewähr dafür übernehmen, dass alle Angebotsdaten richtig sind und das Objekt im Augenblick des Zugangs dieser Offerte noch verfügbar ist.
Grundriss
Grundriss Erdgeschoss
>
>
Grundriss Obergeschoss
>
>
Grundriss Dachgeschoss
>
>
Grundriss Kellergeschoss
>
>
Adresse
21354 Bleckede
Interessante Orte
Preis- und Lageinformationen
Preistrend für Bestandsimmobilien in Bleckede